1. AnbieterArrow Icon
  2. Lehner HausArrow Icon
  3. Homestory 271
Slide 1
Slide 2
Slide 3
Slide 4
no description
Lehner HausHomestory 271
homeBungalow
livingArea131 m²
energyStandardEffizienzhaus 55
Preis anfragen
Katalog bestellen

Homestory 271

Schön & wohnlich: Bungalow nach eigenem Geschmack

In einem Teil des barrierefreien Hauses Kochen, Arbeiten und Essen, von dort auf kurzem Weg in den gemütlichen Wohnbereich oder den privatesten Teil, für das Waschen und Schlafen. Das ist einfach und sehr praktisch. Zum Beispiel für ein Paar der Generation 50 plus. Oder jüngere Menschen. Denn was will man mehr, als in aller Ruhe im eigenen Zuhause ein bisschen arbeiten und ansonsten das Leben genießen.

Hausdaten

Hausart Icon
HausartEinfamilienhaus
Bauweise Icon
BauweiseHolz-Tafelbau
Baustil Icon
BaustilBungalow
Wohnfläche Icon
Wohnfläche131 m²
Dachform Icon
DachformWalm-/Zeltdach
Energiestandard Icon
EnergiestandardEffizienzhaus 55
Immobilientyp Icon
ImmobilientypKundenhaus
Dachneigung Icon
Dachneigung23°
Heizungsart Icon
HeizungsartWärmepumpe (Luft, Wasser, oder beides)
Pfeil nach unten linksWir schaffen Platz für Ihre Träume

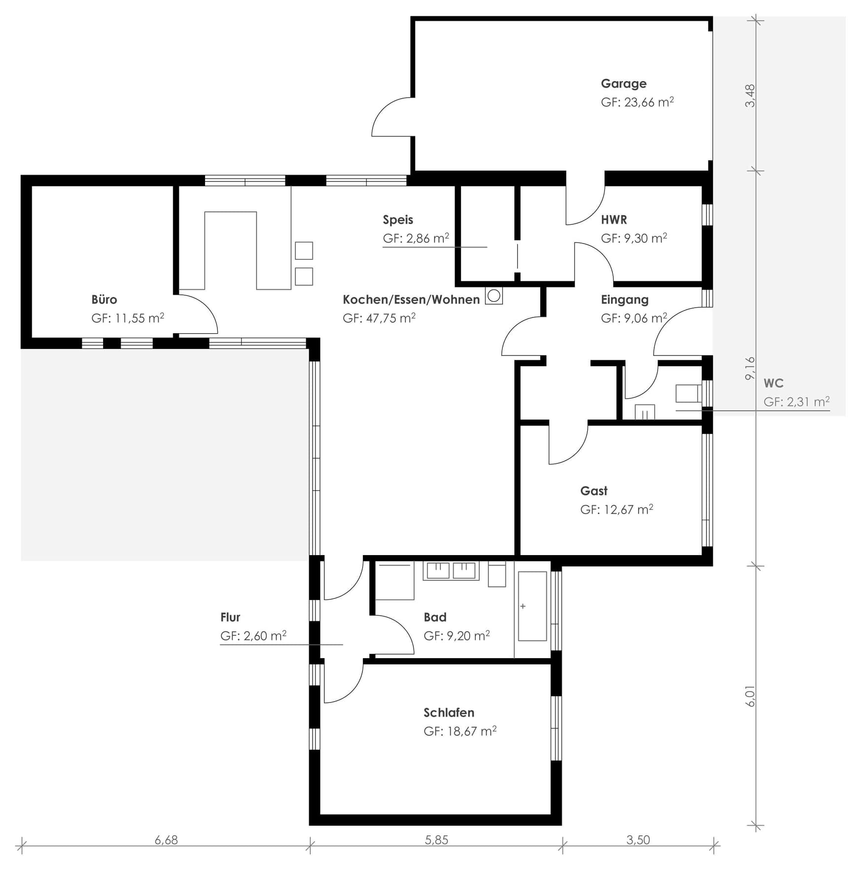
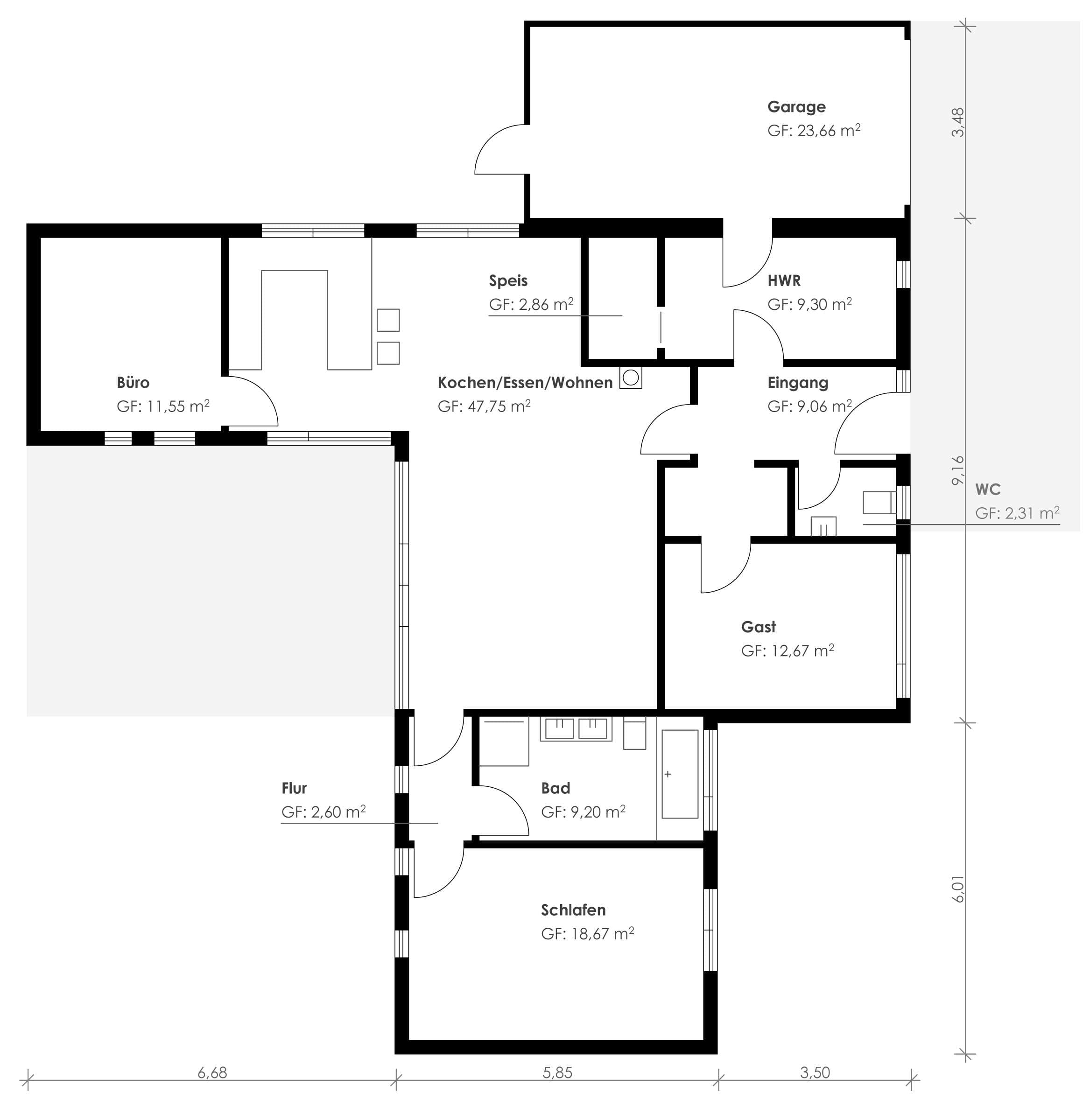
Grundriss

no description
Homestory 271 Grundriss (EG)

Kataloge

Lehner Haus: Hauskatalog
Lehner Haus

Lehner Haus: Hauskatalog


House and TreeParksHouse and PinMusterhausHouse on HandAnbieter