1. AnbieterArrow Icon
  2. Lehner HausArrow Icon
  3. Homestory 255
Slide 1
Slide 2
Slide 3
Slide 4
no description
Lehner HausHomestory 255
homeVillen
livingArea395 m²
energyStandardEffizienzhaus 40
Preis anfragen
Katalog bestellen

Homestory 255

Wohnen ist Lebensqualität: Traumhaus der Extraklasse in Traumlage

Die Bauherren wollten in traumhafter Lage ihr Traumhaus bauen. Das Ziel: ein weißes Haus mit klarer Linienführung, lichtdurchflutet, geöffnet für einen Fernblick in die es herrlich umgebende Baumlandschaft bis zum nahe gelegenen Schloss, davor ein weiter Garten mit großem Teich. Diese und andere Wünsche sollte ein Baupartner ganz nach der individuellen Planung der Bauherren ohne jede Einschränkung erfüllen.

Hausdaten

Hausart Icon
HausartEinfamilienhaus
Bauweise Icon
BauweiseHolz-Tafelbau
Anzahl Räume Icon
Anzahl Räume12
Baustil Icon
BaustilVillen
Fassade Icon
FassadePutz
Außenmaße Icon
Außenmaße14 m x 12 m
Wohnfläche Icon
Wohnfläche395 m²
Dachform Icon
DachformSattel-/Giebeldach
Energiestandard Icon
EnergiestandardEffizienzhaus 40
Immobilientyp Icon
ImmobilientypKundenhaus
Dachneigung Icon
Dachneigung32°
Hauseigenschaften Icon
HauseigenschaftenGästezimmer
Hausdämmstoff Icon
HausdämmstoffHolzfaser- und Zellulosedämmstoffe
Heizungsart Icon
HeizungsartWärmepumpe (Luft, Wasser, oder beides)
Pfeil nach unten linksWir schaffen Platz für Ihre Träume

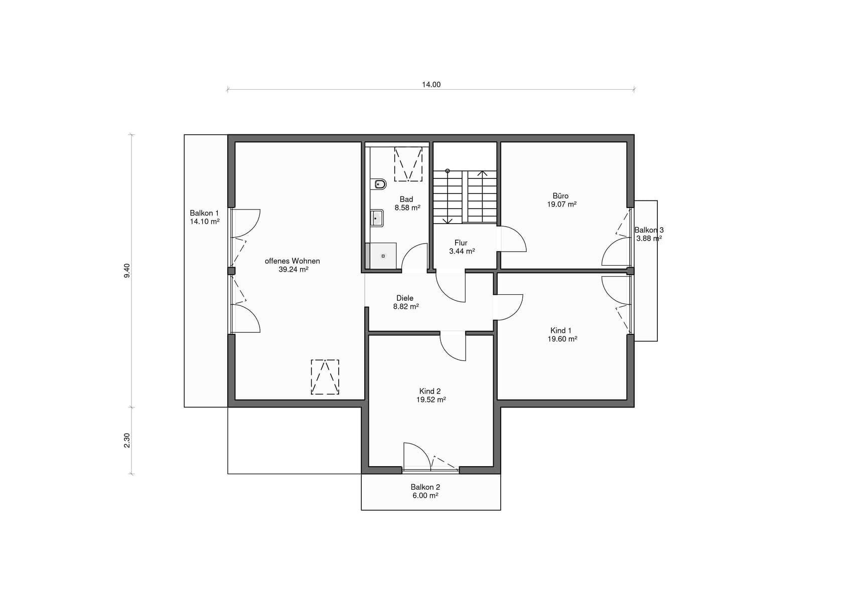
Grundriss

no description
Homestory 255 Grundriss (EG)
no description
Homestory 255 Grundriss (DG)

Kataloge

Lehner Haus: Hauskatalog
Lehner Haus

Lehner Haus: Hauskatalog


House and TreeParksHouse and PinMusterhausHouse on HandAnbieter