1. AnbieterArrow Icon
  2. Lehner HausArrow Icon
  3. Homestory 244
Slide 1
Slide 2
Slide 3
Slide 4
Slide 5
no description
Lehner HausHomestory 244
homeVillen
livingArea162 m²
energyStandardEffizienzhaus 55
Preis anfragen
Katalog bestellen

Homestory 244

Individuelle Villa: Jedem ein Zuhause ganz nach Wunsch

Das flache Walmdach und der vorgesetzte, von Säulen getragene Balkon mit Quergiebel erinnern an frühere bürgerliche Villen größerer Städte. Mit Lehner Haus bauen Sie Ihre Architektur nach Wunsch. Ob nun Stadtvillen oder Wohnhäuser im Toskana-Stil, kleinere oder größere Ein- oder Mehrfamilienhäuser im modernen traditionellen oder auch im Bauhausstil, - Bauherren werden von Lehner Haus kaum Grenzen gesetzt.

Hausdaten

Hausart Icon
HausartEinfamilienhaus
Bauweise Icon
BauweiseHolz-Tafelbau
Baustil Icon
BaustilVillen
Wohnfläche Icon
Wohnfläche161.65 m²
Dachform Icon
DachformWalm-/Zeltdach
Energiestandard Icon
EnergiestandardEffizienzhaus 55
Immobilientyp Icon
ImmobilientypKundenhaus
Dachneigung Icon
Dachneigung23°
Heizungsart Icon
HeizungsartWärmepumpe (Luft, Wasser, oder beides)
Pfeil nach unten linksWir schaffen Platz für Ihre Träume

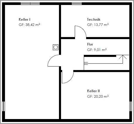
Grundriss

no description
Homestory 244 Grundriss (Keller)
no description
Homestory 244 Grundriss (EG)
no description
Homestory 244 Grundriss (DG)

Unser Team vor Ort

Gerhard StraubFachberater*in bei Lehner Haus
no description
Wir beraten Sie gerne!Arrow Icon

Kataloge

Lehner Haus: Hauskatalog
Lehner Haus

Lehner Haus: Hauskatalog


House and TreeParksHouse and PinMusterhausHouse on HandAnbieter