1. AnbieterArrow Icon
  2. Lehner HausArrow Icon
  3. Homestory 233
Slide 1
Slide 2
Slide 3
Slide 4
Slide 5
no description
Lehner HausHomestory 233
homeKubushäuser im Bauhausstil
livingArea217 m²
energyStandardEffizienzhaus 55
Preis anfragen
Katalog bestellen

Homestory 233

Moderner Kubus. Individuell. Effizient. Für die Familie

Ein Teil der Fassade aus Lärchenholz, die andere aus schieferfarbenem Metall, an der südlichen und südwestlichen Seite auf beiden Etagen des Kubus geschützte Terrassen, im unteren Hausbereich die Garagen, die Innenräume mit geölter Kiefer ausgelegt, dezent sichtbares Holz, ein großer Kamin. Und dazu eine energieeffizienteHaustechnologie. Der  individuelle Entwurf kann sich schon auf den ersten Blick sehen lassen.

Hausdaten

Hausart Icon
HausartEinfamilienhaus
Bauweise Icon
BauweiseHolz-Tafelbau
Baustil Icon
BaustilKubushäuser im Bauhausstil
Wohnfläche Icon
Wohnfläche216.74 m²
Dachform Icon
DachformFlachdach
Energiestandard Icon
EnergiestandardEffizienzhaus 55
Immobilientyp Icon
ImmobilientypKundenhaus
Heizungsart Icon
HeizungsartWärmepumpe (Luft, Wasser, oder beides)
Pfeil nach unten linksWir schaffen Platz für Ihre Träume

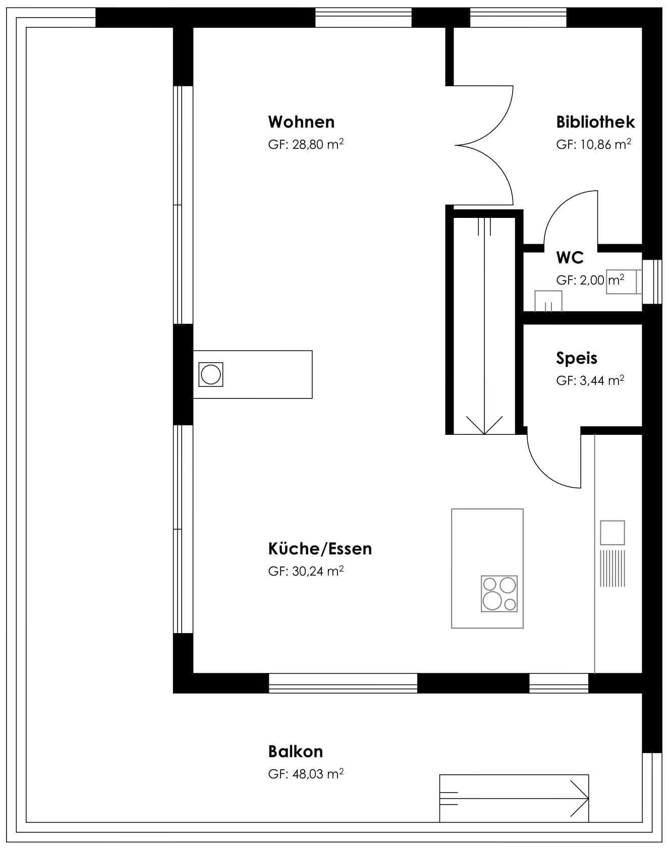
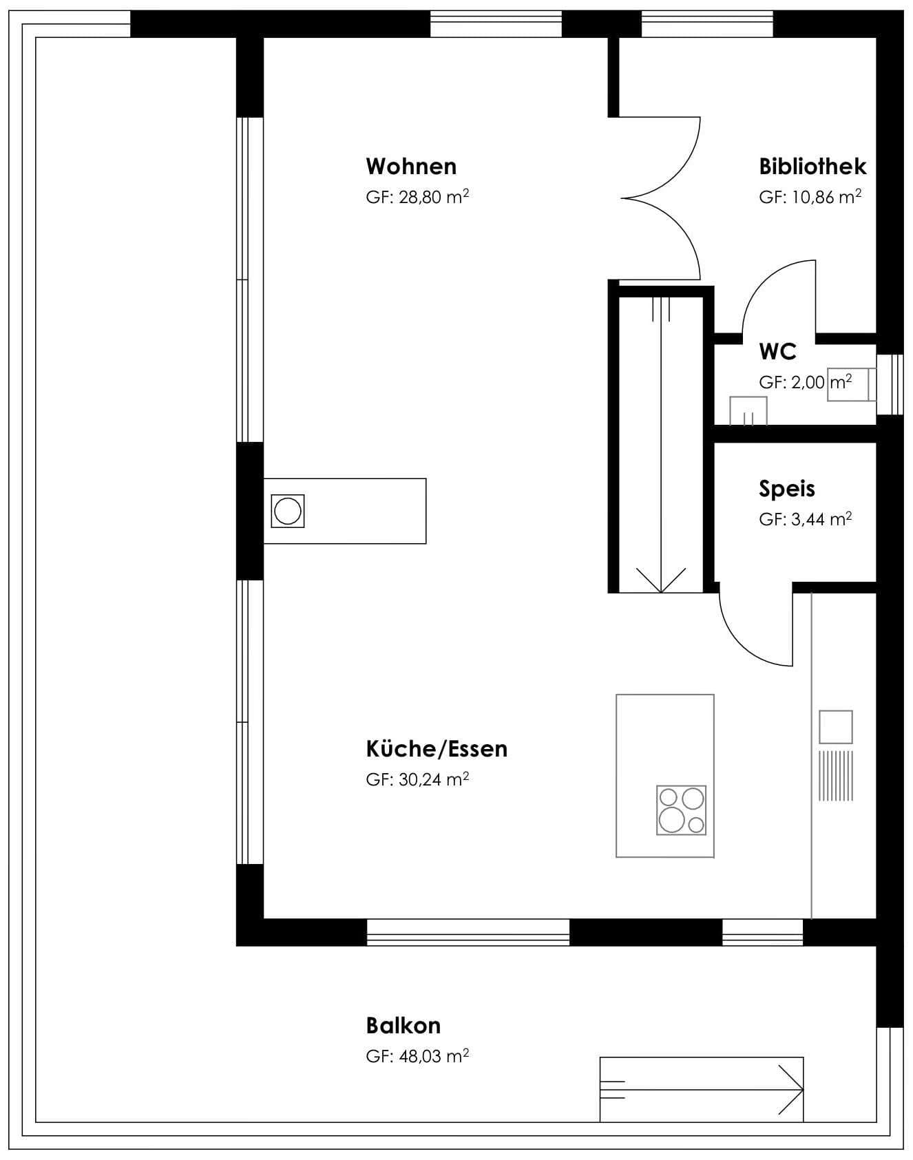
Grundriss

no description
Homestory 233 Grundriss (EG)
no description
Homestory 233 Grundriss (OG)
no description
Homestory 233 Grundriss (DG)

Kataloge

Lehner Haus: Hauskatalog
Lehner Haus

Lehner Haus: Hauskatalog


House and TreeParksHouse and PinMusterhausHouse on HandAnbieter