1. AnbieterArrow Icon
  2. Lehner HausArrow Icon
  3. Homestory 203
Slide 1
Slide 2
Slide 3
Slide 4
Slide 5
no description
Lehner HausHomestory 203
homeKlassische Familienhäuser
livingArea205 m²
energyStandardEffizienzhaus 55
Preis anfragen
Katalog bestellen

Homestory 203

Das moderne Einfamilienhaus: Sparsam, schön & aus Holz

Man sieht es seiner Fassade nicht an: Ein modernes Einfamilienhaus in Holzbauweise, dabei denkt man entweder an ein Blockhaus oder aber einen Fachwerkbau. Die überwiegende Verarbeitung des Naturstoffes wird oft nach außen hin nicht mehr sofort sichtbar. Aber in seinem Inneren bietet dieses energieeffiziente Familienhaus die ganze Gemütlichkeit, Gesundheit und Wohnlichkeit eines Hauses aus gutem Holz.

Hausdaten

Hausart Icon
HausartEinfamilienhaus
Bauweise Icon
BauweiseHolz-Tafelbau
Baustil Icon
BaustilKlassische Familienhäuser
Wohnfläche Icon
Wohnfläche205 m²
Dachform Icon
DachformSattel-/Giebeldach
Energiestandard Icon
EnergiestandardEffizienzhaus 55
Immobilientyp Icon
ImmobilientypKundenhaus
Dachneigung Icon
Dachneigung18°
Heizungsart Icon
HeizungsartWärmepumpe (Luft, Wasser, oder beides)
Pfeil nach unten linksWir schaffen Platz für Ihre Träume

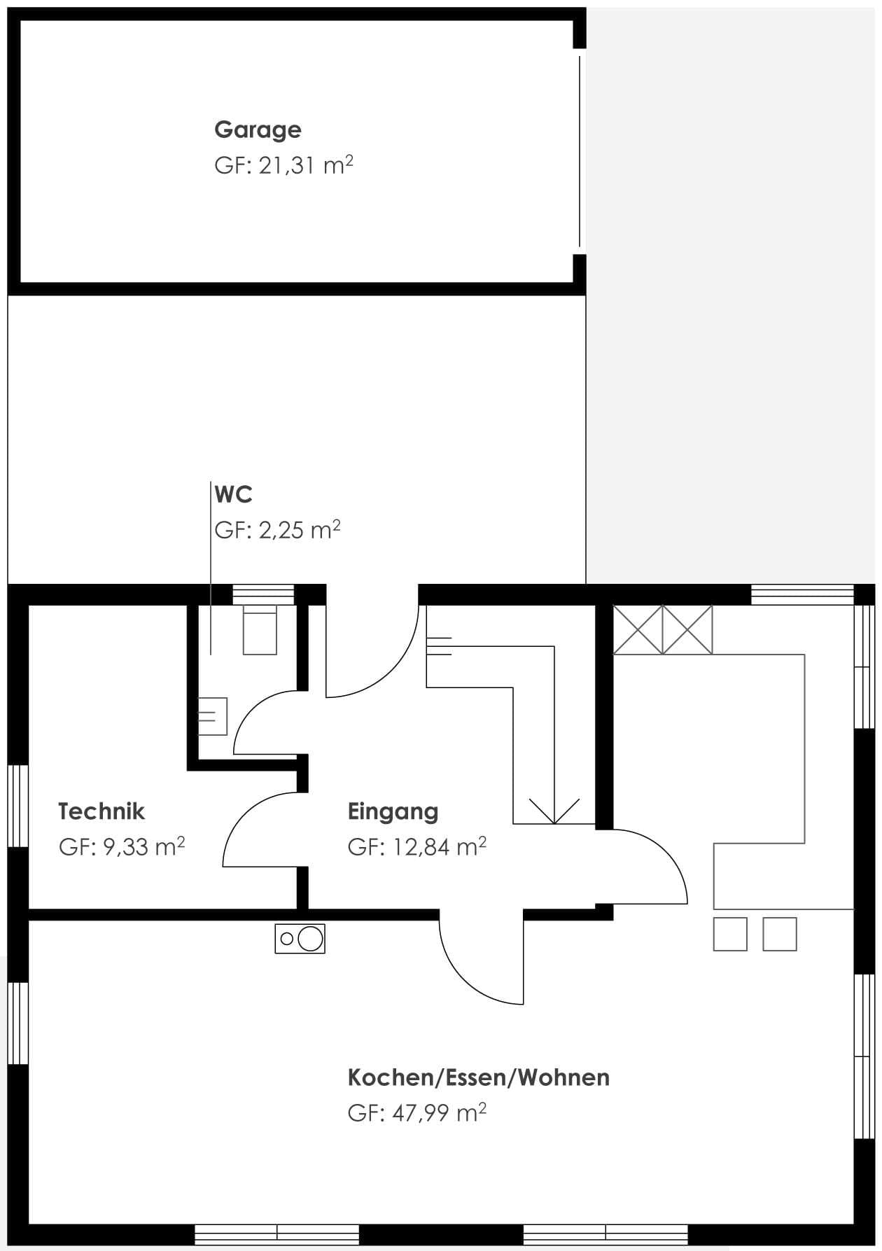
Grundriss

no description
Homestory 203 Grundriss (EG)
no description
Homestory 203 Grundriss (DG)

Unser Team vor Ort

Gerhard StraubFachberater*in bei Lehner Haus
no description
Wir beraten Sie gerne!Arrow Icon

Kataloge

Lehner Haus: Hauskatalog
Lehner Haus

Lehner Haus: Hauskatalog


House and TreeParksHouse and PinMusterhausHouse on HandAnbieter