1. AnbieterArrow Icon
  2. Lehner HausArrow Icon
  3. Homestory 175
Slide 1
Slide 2
Slide 3
Slide 4
Slide 5
no description
Lehner HausHomestory 175
homeVillen
livingArea244 m²
energyStandardEffizienzhaus 55
Preis anfragen
Katalog bestellen

Homestory 175

Die eigene Villa nach Maß: Schnell und professionell gebaut

Gesunde Materialien, atmende Wände, moderne Wärmepumpe, Lüftungsanlage mit energieeffizienter Wärmerückgewinnung, - Holzfertigbau ist eine solide Sache wegen des auffallend guten und gesunden Raumklimas sowie eines kaum zu übertreffenden Wohngefühls. Ein weiteres erstklassiges Argument für ein solches gesundes Effizienzhaus ist die nicht zu überbietende Kürze der Bauzeit von der Planung bis zum Einzug.

Hausdaten

Hausart Icon
HausartEinfamilienhaus
Bauweise Icon
BauweiseHolz-Tafelbau
Baustil Icon
BaustilVillen
Wohnfläche Icon
Wohnfläche243.78 m²
Energiestandard Icon
EnergiestandardEffizienzhaus 55
Immobilientyp Icon
ImmobilientypKundenhaus
Dachneigung Icon
Dachneigung20°
Heizungsart Icon
HeizungsartWärmepumpe (Luft, Wasser, oder beides)
Pfeil nach unten linksWir schaffen Platz für Ihre Träume

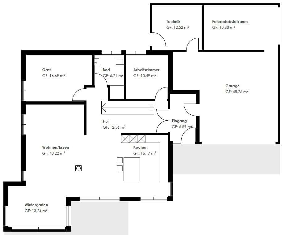
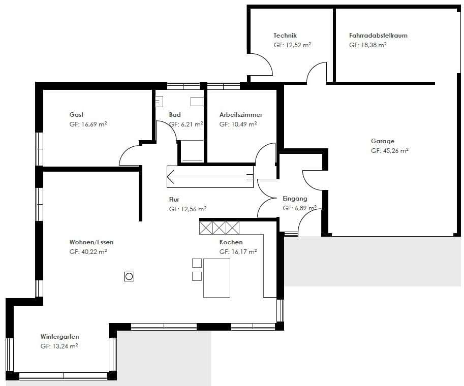
Grundriss

no description
Homestory 175 Grundriss (EG)
no description
Homestory 175 Grundriss (DG)

Unser Team vor Ort

Hans OttFachberater*in bei Lehner Haus
no description
Wir beraten Sie gerne!Arrow Icon

Kataloge

Lehner Haus: Hauskatalog
Lehner Haus

Lehner Haus: Hauskatalog


House and TreeParksHouse and PinMusterhausHouse on HandAnbieter