1. AnbieterArrow Icon
  2. HUF HAUSArrow Icon
  3. MODUM 7 Beispiel 3
Slide 1
Slide 2
Slide 3
Slide 4
Slide 5
Slide 6
HUF HAUS Logo 500 px.jpg
HUF HAUSMODUM 7 Beispiel 3
homeFachwerkhäuser
livingArea185 m²
energyStandardEffizienzhaus 55
Preis anfragen
Katalog bestellen

MODUM 7 Beispiel 3

Smartes Fachwerkhaus für die Familie

Smarte Technik und edles Design: Wer die Welten aus Architektur und Technik bestmöglich verbinden möchte und dabei Wert auf unsichtbaren Komfort legt, ist bei HUF HAUS genau richtig. Denn das markante Fachwerkhaus ist vor allem eines, ein maßgeschneidertes Architektenhaus, das exakt den Wünschen seiner Bewohner entspricht. So wie dieses HUF Haus aus der Baureihe MODUM. Sowohl die Beleuchtung als auch die Musik über eingebaute Lautsprecher und die Beschattung arbeiten automatisiert und können bequem über verschiedene Endgeräte gesteuert werden. Im gesamten Haus befinden sich Touchpanels, die beispielsweise Aufschluss über die aktuellen Energiedaten sowie das Wetter geben. 

Selbst E-Mails lassen sich hierüber lesen und beantworten. Praktische Szenenabläufe verbinden unterschiedliche Komponenten miteinander, sodass beim Verlassen des Hauses alle Lampen zentral ausgeschaltet werden und die Jalousien im Bereich des Hebe-Schiebe-Elements nach unten fahren.

Die Deutsche Gesellschaft für Nachhaltiges Bauen (DNGB) hat diesem HUF Haus eine Gold-Zertifizierung verliehen, da es höchste Ansprüche an Nachhaltigkeit und Energieeffizienz erfüllt. Bereits in der Grundausstattung ist jedes HUF Haus, das das Werk in Hartenfels verlässt, mit einer Auszeichnung der DGNB zertifiziert. 

Energieeffizient Leben in einem nachhaltigen Fachwerkhaus – weitere Informationen über das Familienunternehmen aus dem Westerwald erhalten Sie auf der HUF Homepage. Für eine unverbindliche Beratung kontaktieren Sie gerne unsere Fachberater vor Ort. 

Hausdaten

Hausart Icon
HausartEinfamilienhaus
Bauweise Icon
BauweiseHolz-Skelettbauweise
Baustil Icon
BaustilFachwerkhäuser
Fassade Icon
FassadePutz, Glas, Holz
Außenmaße Icon
Außenmaße13.7 m x 8.9 m
Wohnfläche Icon
Wohnfläche185.38 m²
Dachform Icon
DachformSattel-/Giebeldach
Energiestandard Icon
EnergiestandardEffizienzhaus 55
Immobilientyp Icon
ImmobilientypKundenhaus
Dachneigung Icon
Dachneigung30°
Hauseigenschaften Icon
HauseigenschaftenTerasse, Viel Glas, Gästezimmer
Heizungsart Icon
HeizungsartWärmepumpe (Luft, Wasser, oder beides)
Pfeil nach unten linksWir schaffen Platz für Ihre Träume

Grundriss

HUF Haus MODUM 7 Grundriss_Untergeschoss.jpg
MODUM 7 Beispiel 3 Grundriss (Keller)Wohnfläche KG: 99,72 m²
HUF Haus MODUM 7 Grundriss_Erdgeschoss.jpg
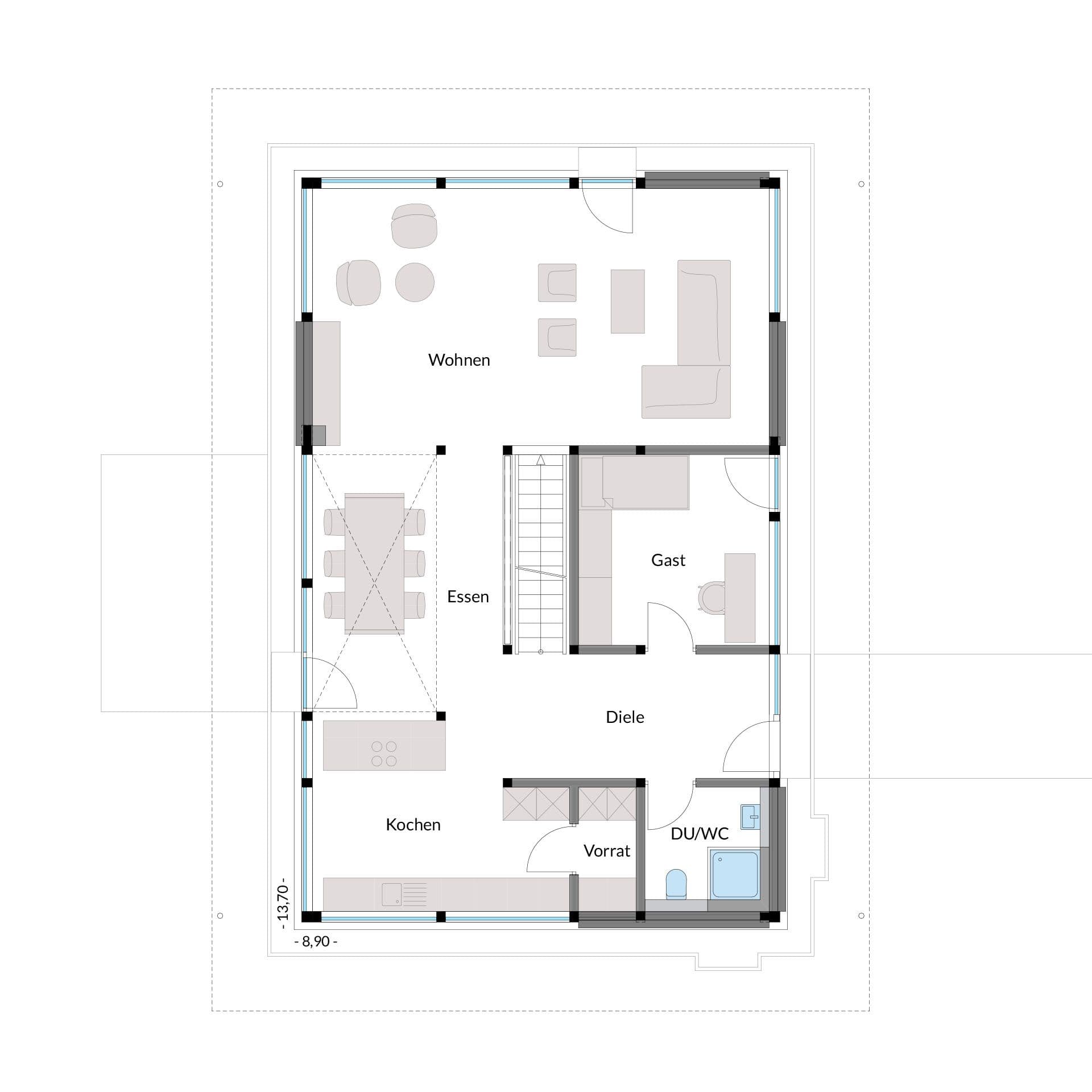
MODUM 7 Beispiel 3 Grundriss (EG)Wohnfläche EG: 99,25 m²
HUF Haus MODUM 7 Grundriss_Dachgeschoss.jpg
MODUM 7 Beispiel 3 Grundriss (DG)Wohnfläche DG: 86,13 m²

Unser Team vor Ort

Joanna HörleFachberater*in bei HUF HAUS
2208-Hörle,-Joanna-10.jpg
Wir beraten Sie gerne!Arrow Icon

Kataloge

HUF HAUS - Hauskatalog
HUF HAUS

HUF HAUS - Hauskatalog


House and TreeParksHouse and PinMusterhausHouse on HandAnbieter