1. AnbieterArrow Icon
  2. HUF HAUSArrow Icon
  3. MODUM 8 Beispiel 4
Slide 1
Slide 2
Slide 3
Slide 4
Slide 5
Slide 6
HUF HAUS Logo 500 px.jpg
HUF HAUSMODUM 8 Beispiel 4
homeFachwerkhäuser
livingArea205 m²
energyStandardEffizienzhaus 55
Preis anfragen
Katalog bestellen

MODUM 8 Beispiel 4

Erste Klasse in dritter Reihe

Dieses markante HUF Fachwerkhaus wurde in dritter Reihe auf einem sogenannten Hammergrundstück gebaut und grenzt unmittelbar an ein Naturschutzgebiet. Dieser Umstand garantiert dem Ehepaar unverbaubare Blicke ins Grüne. Dementsprechend haben die Architekten von HUF HAUS den Wohnraum mit bodentiefen Verglasungen hin zur Natur geplant, Außensitzplätze werden zur Brücke zwischen den Innen- und Außenräumen.

Dank der individuellen Umsetzung haben die Bauherren all ihre Wohnwünsche umgesetzt, von der offenen Galerie über dem Essplatz, über die Carportanlage für Auto und Motorrad, bis hin zum Wellnessbadezimmer mit Sauna.

Zu den Lieblingsplätzen der beiden gehört auch der moderne Küchenbereich mit großer Kochinsel in Betonlook und roten Farbakzenten. Gesteuert wird das HUF Haus MODUM über ein intelligentes KNX-System, das die komfortable Steuerung von Jalousien, Licht oder Multimediageräten garantiert. Voreingestellte Szenen, Abwesenheitssimulationen oder das Bedienen aus der Ferne sind technische Raffinessen, die auf Wunsch in jedem HUF Haus umgesetzt werden können.

Wenn Sie Ihr persönliches Traumhaus mit HUF HAUS planen möchten, freuen wir uns auf ein individuelles Beratungsgespräch – telefonisch, digital oder persönlich.

Hausdaten

Hausart Icon
HausartEinfamilienhaus
Bauweise Icon
BauweiseHolz-Skelettbauweise
Anzahl Räume Icon
Anzahl Räume15
Baustil Icon
BaustilFachwerkhäuser
Fassade Icon
FassadePutz, Glas, Holz
Außenmaße Icon
Außenmaße12.5 m x 10.1 m
Wohnfläche Icon
Wohnfläche204.88 m²
Dachform Icon
DachformSattel-/Giebeldach
Etagen Icon
Etagen1.5
Energiestandard Icon
EnergiestandardEffizienzhaus 55
Immobilientyp Icon
ImmobilientypKundenhaus
Dachneigung Icon
Dachneigung30°
Hauseigenschaften Icon
HauseigenschaftenGästezimmer, Erker, Terasse, Viel Glas
Hausdämmstoff Icon
HausdämmstoffHolzfaser- und Zellulosedämmstoffe
Heizungsart Icon
HeizungsartWärmepumpe (Luft, Wasser, oder beides)
Pfeil nach unten linksWir schaffen Platz für Ihre Träume

Grundriss

HUF Haus MODUM 8 Grundriss_Untergeschoss.jpg
MODUM 8 Beispiel 4 Grundriss (Keller)Wohnfläche KG: 111,91 m²
HUF Haus MODUM 8 Grundriss_Erdgeschoss.jpg
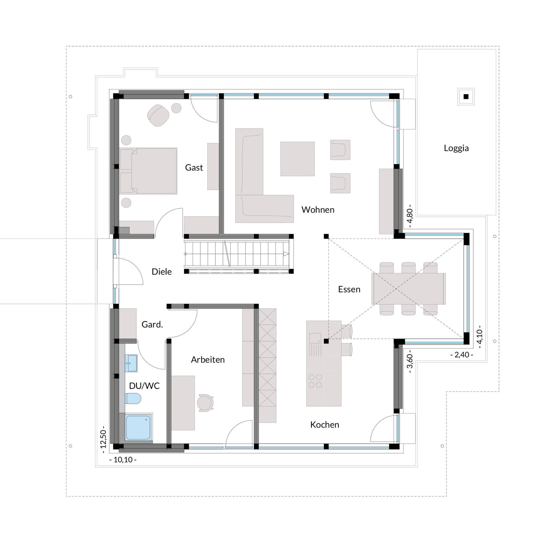
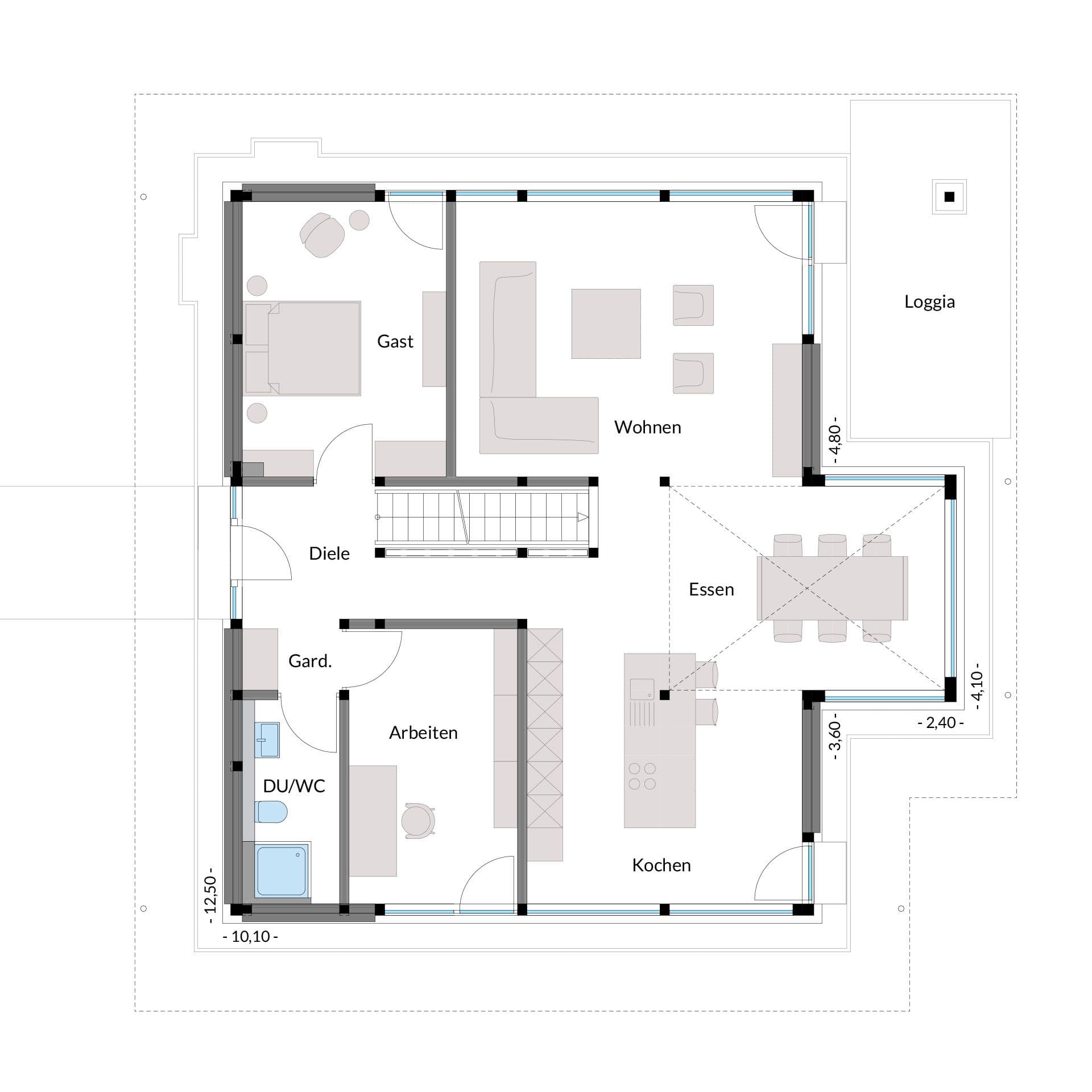
MODUM 8 Beispiel 4 Grundriss (EG)Wohnfläche EG: 111,81 m²
HUF Haus MODUM 8 Grundriss_Dachgeschoss.jpg
MODUM 8 Beispiel 4 Grundriss (DG)Wohnfläche DG: 93,07 m²

Unser Team vor Ort

Joanna HörleFachberater*in bei HUF HAUS
2208-Hörle,-Joanna-10.jpg
Wir beraten Sie gerne!Arrow Icon

Kataloge

HUF HAUS - Hauskatalog
HUF HAUS

HUF HAUS - Hauskatalog


House and TreeParksHouse and PinMusterhausHouse on HandAnbieter