1. AnbieterArrow Icon
  2. HUF HAUSArrow Icon
  3. MODUM 15 Beispiel 8
Slide 1
Slide 2
Slide 3
Slide 4
Slide 5
HUF HAUS Logo 500 px.jpg
HUF HAUSMODUM 15 Beispiel 8
homeFachwerkhäuser
livingArea305 m²
energyStandardEffizienzhaus 55
Preis anfragen
Katalog bestellen

MODUM 15 Beispiel 8

Schwebendes Fachwerkhaus am Fluss

Ein Haus auf Stelzen? Warum nicht, wenn es die Umgebung so vorgibt. Dass sich die Bauweise unmittelbar am Fluss perfekt eignet, versteht sich von selbst und auch die Fachwerkarchitektur, die für HUF so typisch ist, scheint wie geschaffen für den Genius Loci. Warum das so ist? Unter anderem, weil sich die Spiegelungen des Wassers und der großen Glasfronten gegenseitig ergänzen und scheinbar ins Unendliche fortsetzen. 

Die Verglasung erstreckt sich über zwei Stockwerke und oberhalb des Essplatzes sind es sechs Meter bis zur Decke. Um diese Besonderheit effektvoll in Szene zu setzen, existiert im Haus eine Art Lichtgalerie, die für ungewöhnliche Akzente sorgt. Elegant ist auch die Glaseinfassung der Terrasse und die liebevolle Gestaltung des Gartens, dem ebenso große Sorgfalt zukommt wie dem zentralen Gebäude. Das Erdgeschoss vermittelt das faszinierende Gefühl eines einzigen großen Raumes, der Essen, Kochen und Wohnen verbindet. 

Zugegeben: die Bibliothek und natürlich das Bad mit Dusche sind durch Türen abgetrennt, ansonsten herrschen unendliche Weiten. Im oberen Bereich gruppieren sich vier Schlafzimmer als Gäste- oder Kinderzimmer in Kombination mit drei Bädern um die Galerie. Jeder Raum hat einen eigenen Balkon, selbiges gilt auch für das großen „Masterbedroom“ mit Wellnessbad und Blick auf die Themse.

Das Holzhaus „auf Stelzen“ ist sowohl mit Smart-Home-Funktionen als auch einer Wärmepumpe ausgestattet. Die Wärme wird über eine Fußbodenheizung effizient im Haus verteilt. Durch die hervorragende Wärmedämmung der HUF Häuser erreicht man trotz großflächiger Verglasung eine hervorragende Energiebilanz.

Die Fachberater von HUF HAUS stehen Ihnen für ein umfassendes Beratungsgespräch gerne zur Verfügung. Planen Sie mit dem Experten für moderne Fachwerkhäuser Ihr individuelles Traumhaus.

Hausdaten

Hausart Icon
HausartEinfamilienhaus
Bauweise Icon
BauweiseHolz-Skelettbauweise
Anzahl Räume Icon
Anzahl Räume18
Baustil Icon
BaustilFachwerkhäuser
Fassade Icon
FassadeHolz, Putz, Glas
Wohnfläche Icon
Wohnfläche304.54 m²
Dachform Icon
DachformFlachdach
Etagen Icon
Etagen2
Energiestandard Icon
EnergiestandardEffizienzhaus 55
Immobilientyp Icon
ImmobilientypKundenhaus
Hauseigenschaften Icon
HauseigenschaftenErker, Gästezimmer, Viel Glas, Terasse
Hausdämmstoff Icon
HausdämmstoffHolzfaser- und Zellulosedämmstoffe
Heizungsart Icon
HeizungsartWärmepumpe (Luft, Wasser, oder beides)
Pfeil nach unten linksWir schaffen Platz für Ihre Träume

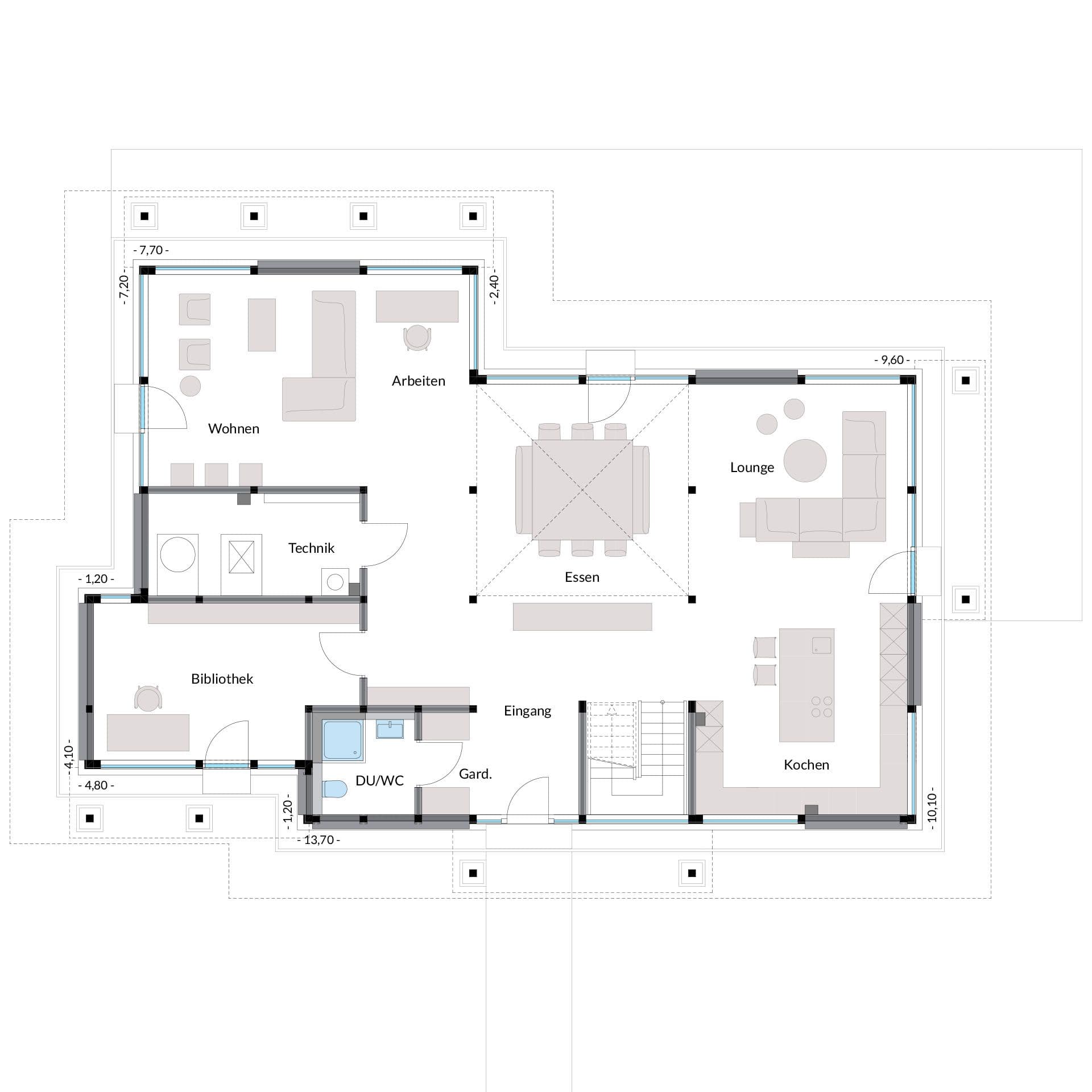
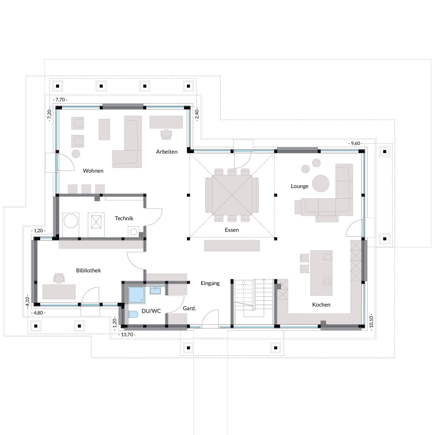
Grundriss

HUF Haus MODUM 15 Grundriss_Erdgeschoss.jpg
MODUM 15 Beispiel 8 Grundriss (EG)Wohnfläche EG: 168,87 m²
HUF Haus MODUM 15 Grundriss_Dachgeschoss.jpg
MODUM 15 Beispiel 8 Grundriss (DG)Wohnfläche DG: 135,76 m²

Unser Team vor Ort

Joanna HörleFachberater*in bei HUF HAUS
2208-Hörle,-Joanna-10.jpg
Wir beraten Sie gerne!Arrow Icon

Kataloge

HUF HAUS - Hauskatalog
HUF HAUS

HUF HAUS - Hauskatalog


House and TreeParksHouse and PinHäuser liveHouse on HandAnbieter