1. AnbieterArrow Icon
  2. HUF HAUSArrow Icon
  3. ART 3 Beispiel 1
Slide 1
Slide 2
Slide 3
Slide 4
Slide 5
Slide 6
HUF HAUS Logo 500 px.jpg
HUF HAUSART 3 Beispiel 1
homeFachwerkhäuser
livingArea310 m²
energyStandardEffizienzhaus 55
Preis anfragen
Katalog bestellen

ART 3 Beispiel 1

Ein HUF Haus ist wie gemacht für die Natur

Die Idee, das Entree in die Mitte der mit großem Dachüberstand geschützten Traufseite des Hauses zu platzieren, bildete die Grundlage für die symmetrische Gliederung im Inneren, nach der das Haus in zwei gleich große „Giebeltrakte“ aufgeteilt wurde. Während im Erdgeschoss die beiden Trakte durch das offene Foyer harmonisch verschmelzen, sind sie im Obergeschoss durch das innenarchitektonische Highlight einer optisch „frei schwebenden“ Brücke verbunden. Somit entsteht bereits beim Betreten des Hauses eine Blickfreiheit, die selbst für die ohnehin offene HUF Haus Bauweise eine Besonderheit darstellt. Geradezu magnetisch wird das Auge durch die Mittelachse bis in den parkähnlich angelegten Garten auf der anderen Seite geführt, um mit dem nächsten Augenblick Galerie, Brücke und Raumhöhe bis in den Dachfirst zu erfassen.

Ebenfalls beeindruckend ist der weitreichende Blick über die Felder, Wiesen und Wälder bis zum Horizont, an dem die sanfte Hügelkette des hohen Westerwaldes in mystischem blau-grün zu einer Wandertour lockt. Die herrlichen Sonnenauf- und untergänge durchfluten das Haus im Takt der Natur und produzieren eine Dynamik von Licht und Farben, wie man sie selbst mit modernster Technik nie erreichen würde. Die Natur kann’s eben besser – zumindest tagsüber. Deshalb wird an den langen Herbst- und Winterabenden mithilfe energiesparender LED-Technik eine Lichtstimmung erzeugt, die außen wie innen mit der transparenten HUF Fachwerkarchitektur eine eindrucksvolle Symbiose eingeht.

Gönnen Sie sich eine Landpartie der moderneren Art – die Fachberater von HUF HAUS freuen sich auf Ihre Kontaktaufnahme!

Hausdaten

Hausart Icon
HausartEinfamilienhaus
Bauweise Icon
BauweiseHolz-Skelettbauweise
Baustil Icon
BaustilFachwerkhäuser
Fassade Icon
FassadeGlas, Holz, Putz
Außenmaße Icon
Außenmaße13.6 m x 9.4 m
Wohnfläche Icon
Wohnfläche309.64 m²
Dachform Icon
DachformSattel-/Giebeldach
Etagen Icon
Etagen2.5
Energiestandard Icon
EnergiestandardEffizienzhaus 55
Immobilientyp Icon
ImmobilientypKundenhaus
Dachneigung Icon
Dachneigung28°
Hauseigenschaften Icon
HauseigenschaftenViel Glas, Erker, Gästezimmer, Keller, Terasse, Balkon
Heizungsart Icon
HeizungsartWärmepumpe (Luft, Wasser, oder beides)
Pfeil nach unten linksWir schaffen Platz für Ihre Träume

Grundriss

HUF Haus ART 3 UG.jpg
ART 3 Beispiel 1 Grundriss (Keller)Wohnfläche KG: 112,64 m²
HUF Haus ART 3 EG.jpg
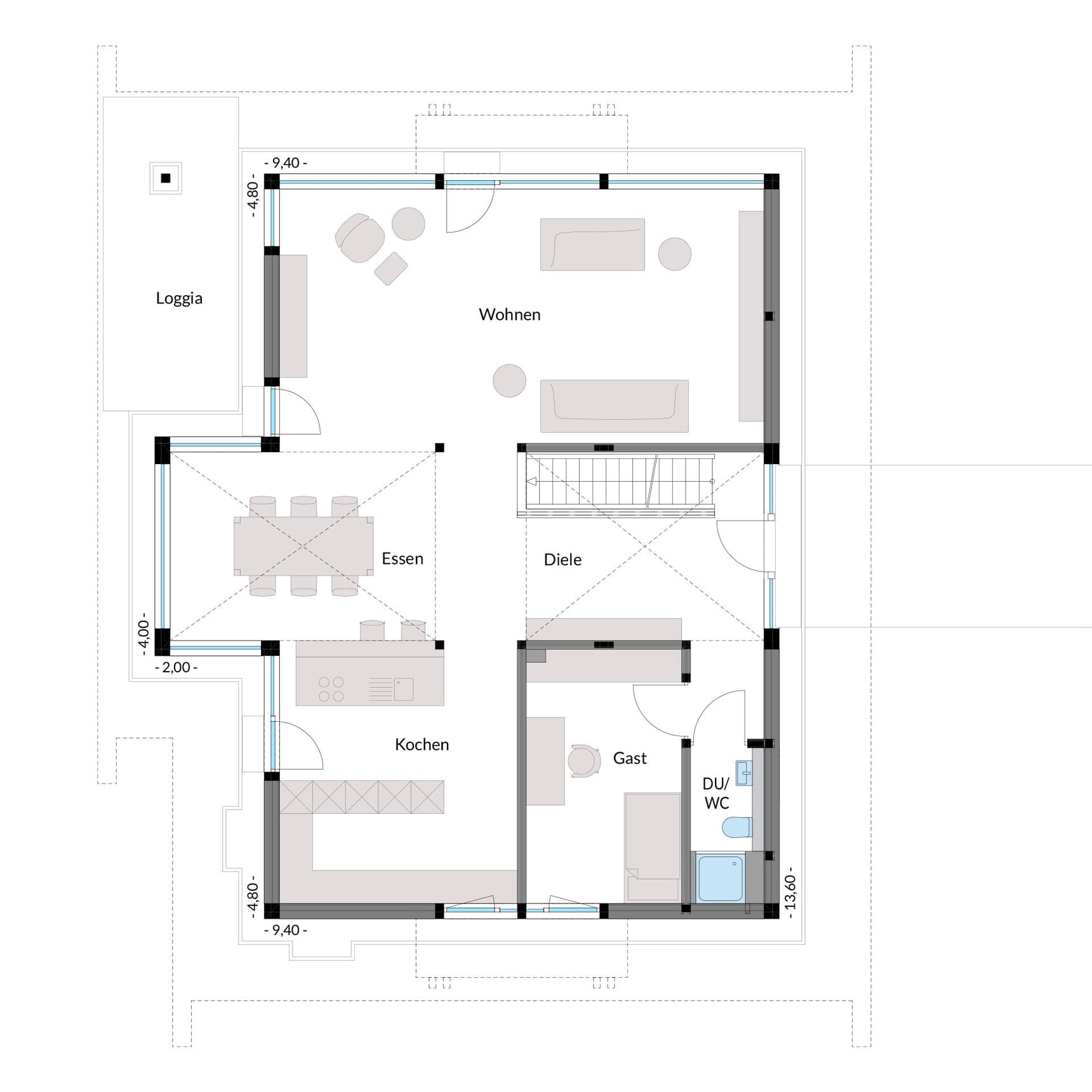
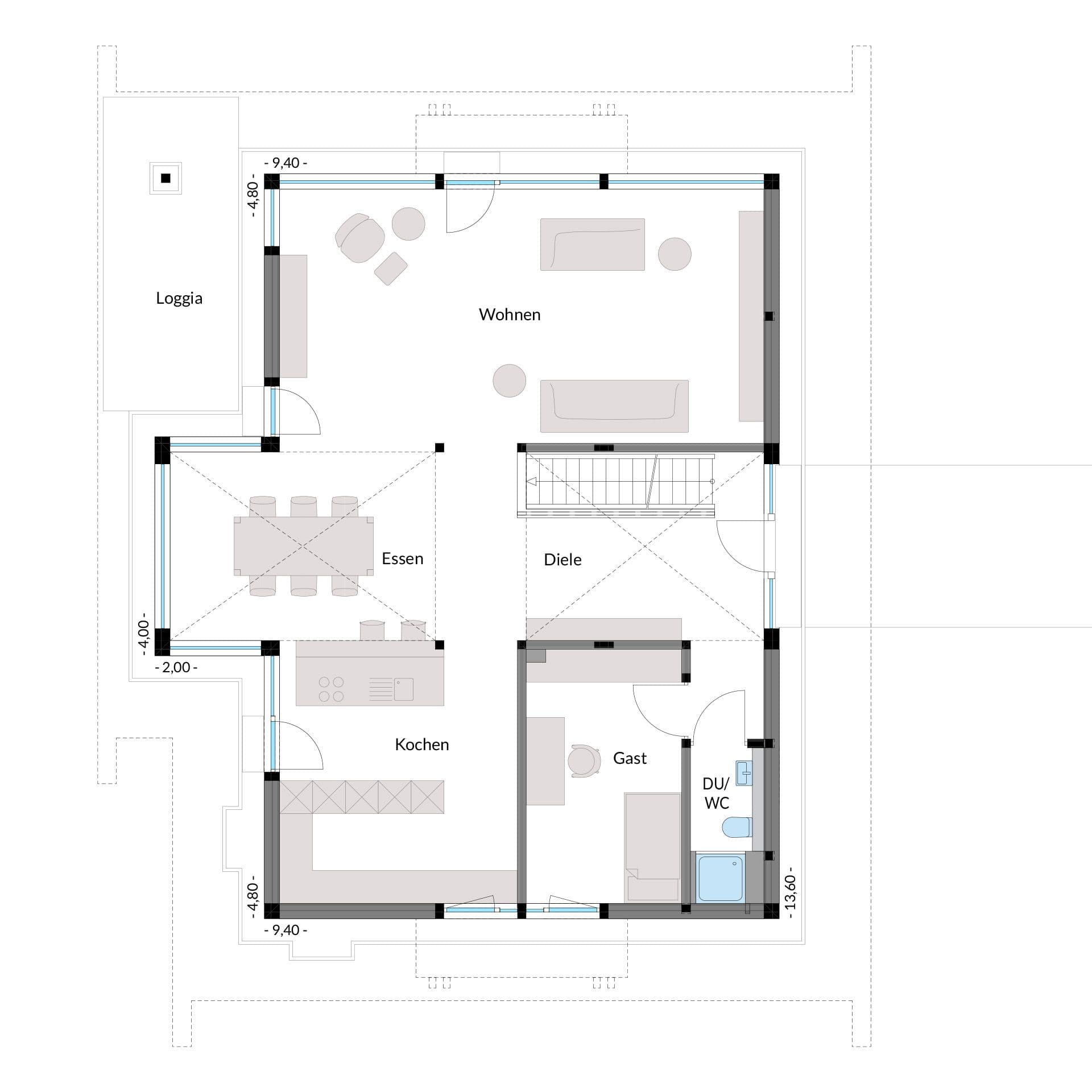
ART 3 Beispiel 1 Grundriss (EG)Wohnfläche EG: 114,35 m²
HUF Haus ART 3 DG.jpg
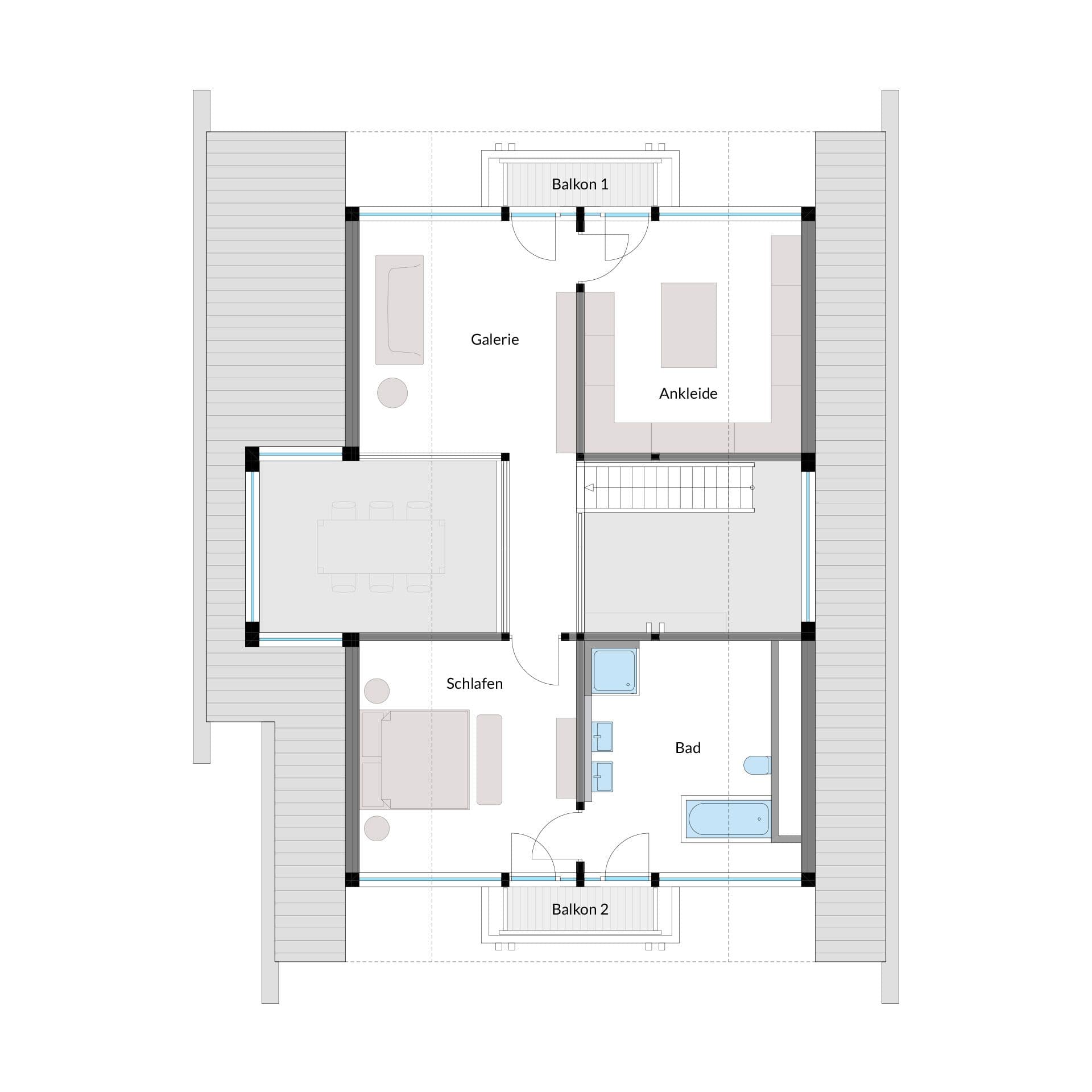
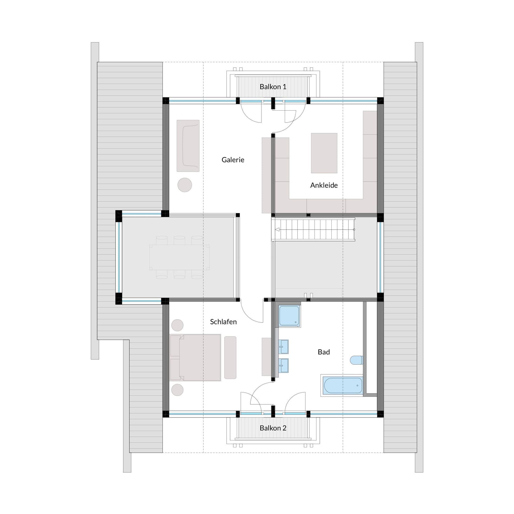
ART 3 Beispiel 1 Grundriss (DG)Wohnfläche DG: 82,65 m²

Unser Team vor Ort

Joanna HörleFachberater*in bei HUF HAUS
2208-Hörle,-Joanna-10.jpg
Wir beraten Sie gerne!Arrow Icon

Kataloge

HUF HAUS - Hauskatalog
HUF HAUS

HUF HAUS - Hauskatalog


House and TreeParksHouse and PinMusterhausHouse on HandAnbieter