1. AnbieterArrow Icon
  2. HUF HAUSArrow Icon
  3. ART 3 Beispiel 5
Slide 1
Slide 2
Slide 3
Slide 4
Slide 5
Slide 6
HUF HAUS Logo 500 px.jpg
HUF HAUSART 3 Beispiel 5
homeFachwerkhäuser
livingArea211 m²
energyStandardEffizienzhaus 55
Preis anfragen
Katalog bestellen

ART 3 Beispiel 5

Designhaus mit stilsicherer Einrichtung

Individualismus pur findet sich in diesem HUF Haus ART 3: Die Eingangstür wurde in frischem Taubenblau ausgeführt und im Innenraum entdeckt man eine Fülle an Designklassikern, die selbstbewusst mit Trouvaillen und persönlichen Gegenständen ergänzt wurden. Die Bewohnerin hat ein Händchen für Inneneinrichtung, das ist in jedem der großzügigen Räume zu spüren. Zur Gartenseite hin ist das Haus komplett verglast, geschlossene Wände wurden nur dort eingesetzt, wo mehr Privatsphäre gewünscht ist. Die Natur ist besonders im gläsernen Erker zu spüren, der als perfekte Bühne für den Essplatz dient. Von hier aus blickt man direkt in die italienische Designerküche, die sowohl optisch als auch funktional ein echtes Highlight ist. Im Obergeschoss sorgt eine Galerie mit hölzerner Brücke für eine luftige Atmosphäre und leitet Bewohner oder Gäste zu den Schlafräumen bzw. Badezimmern.

Dieses Schmuckstück überzeugt durch seine inneren und äußeren Werte. Mit viel Liebe zum Detail haben die Hausbewohner das Fachwerkhaus mit Leben gefüllt und eine eigene Handschrift entwickelt. Beheizt wird das HUF Haus ART 3 über eine moderne Luft-Wasser-Wärme-Pumpe, die Wärmeverteilung erfolgt über eine integrierte Fußbodenheizung.

Das Fachwerkhaus der Extraklasse – wir freuen uns auf einen unverbindlichen Beratungstermin in einem Musterhaus in Ihrer Nähe.

Hausdaten

Hausart Icon
HausartEinfamilienhaus
Bauweise Icon
BauweiseHolz-Skelettbauweise
Anzahl Räume Icon
Anzahl Räume11
Baustil Icon
BaustilFachwerkhäuser
Fassade Icon
FassadeGlas, Holz, Putz
Außenmaße Icon
Außenmaße14.8 m x 9.4 m
Wohnfläche Icon
Wohnfläche211.31 m²
Dachform Icon
DachformSattel-/Giebeldach
Etagen Icon
Etagen2.5
Energiestandard Icon
EnergiestandardEffizienzhaus 55
Immobilientyp Icon
ImmobilientypKundenhaus
Dachneigung Icon
Dachneigung28°
Hauseigenschaften Icon
HauseigenschaftenKeller, Gästezimmer, Erker, Balkon, Terasse, Viel Glas
Hausdämmstoff Icon
HausdämmstoffHolzfaser- und Zellulosedämmstoffe
Heizungsart Icon
HeizungsartWärmepumpe (Luft, Wasser, oder beides)
Pfeil nach unten linksWir schaffen Platz für Ihre Träume

Grundriss

HUF HAUS ART 3_KG.jpg
ART 3 Beispiel 5 Grundriss (Keller)Wohnfläche KG: 123,21 m²
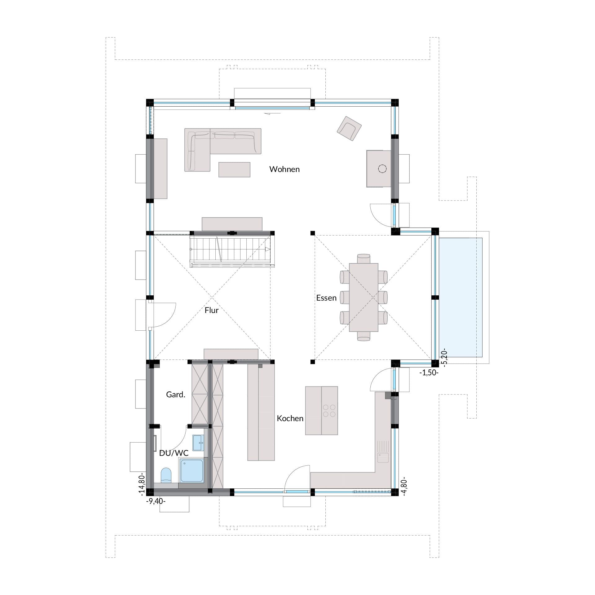
HUF HAUS ART 3_EG.jpg
ART 3 Beispiel 5 Grundriss (EG)Wohnfläche EG: 126,01 m²
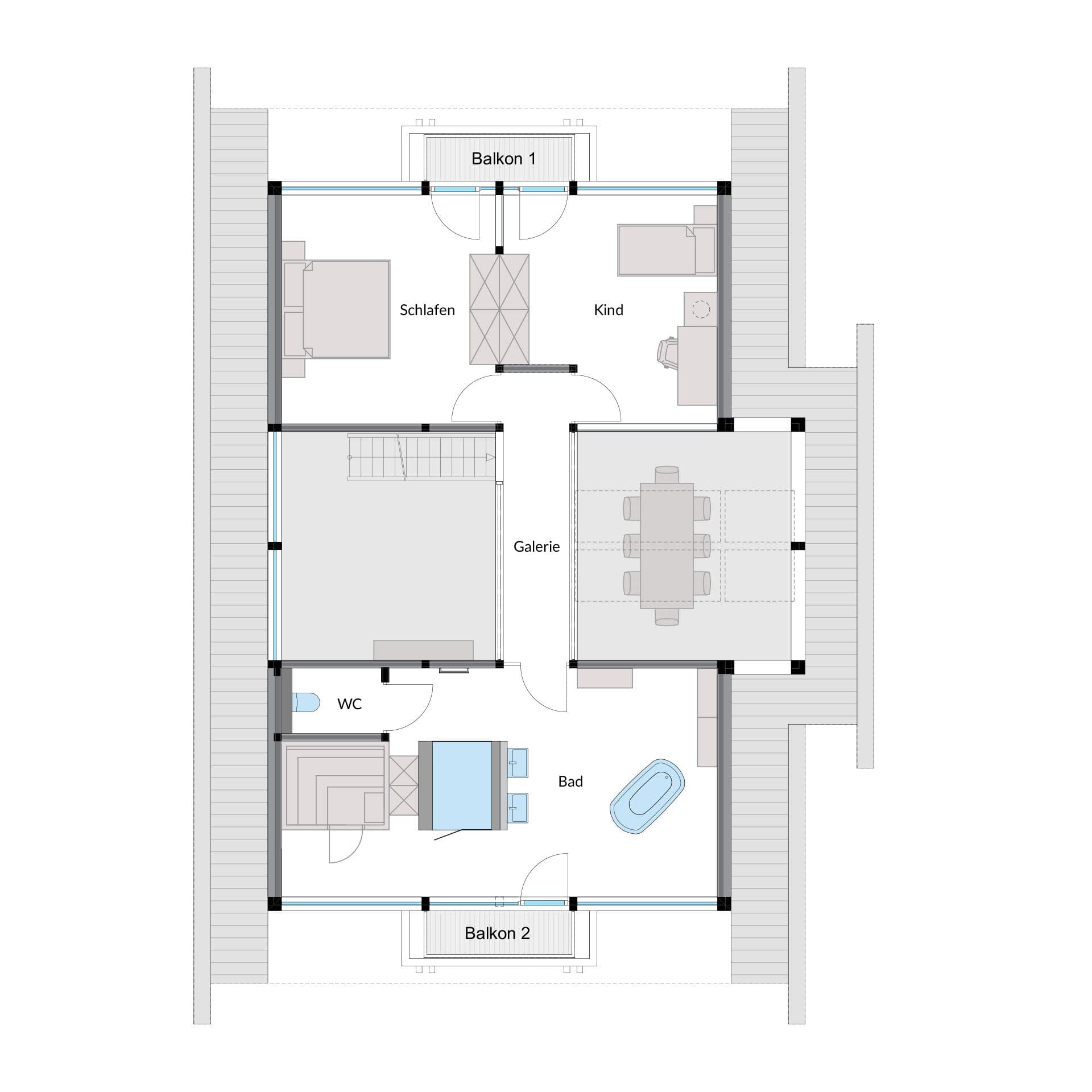
HUF HAUS ART 3_DG.jpg
ART 3 Beispiel 5 Grundriss (DG)Wohnfläche DG: 85,3 m²

Unser Team vor Ort

Joanna HörleFachberater*in bei HUF HAUS
2208-Hörle,-Joanna-10.jpg
Wir beraten Sie gerne!Arrow Icon

Kataloge

HUF HAUS - Hauskatalog
HUF HAUS

HUF HAUS - Hauskatalog


House and TreeParksHouse and PinMusterhausHouse on HandAnbieter