1. AnbieterArrow Icon
  2. BAUFRITZArrow Icon
  3. Kundenhaus Schweiger
Slide 1
Slide 2
Slide 3
Slide 4
Slide 5
Slide 6
Slide 7
Slide 8
Baufritz Logo
BAUFRITZKundenhaus Schweiger
homeLandhäuser
livingArea255 m²
energyStandardEffizienzhaus 55
Preis anfragen
Katalog bestellen

Kundenhaus Schweiger

Planen und Wohnen für besondere Bedürfnisse

Schön Wohnen ohne Barriere
 

Es gibt Lebensumstände, die neue Denkansätze erfordern: Karoline Schweiger erkrankte an Multipler Sklerose. Weil sich ihr altes Haus nicht behindertengerecht umbauen ließ, baute sie mit ihrem Mann ein gesundheitlich unbedenkliches Zuhause bei Passau. In ihrem barrierefreien Domizil von Baufritz hat sie ihre Freiheit und Selbstständigkeit zurückgewonnen!

 

Die Diagnose MS stellte das Leben von Karoline Schweiger auf den Kopf. 2009 erhielt die Physiotherapeutin die niederschmetternde Nachricht. Es dauerte lange, bis die Ärzte feststellten, warum die sympathische Niederbayerin immer so erschöpft war. „Burn out“ war der erste Versuch, die dauerhafte Müdigkeit zu erklären. Bis dann Magnetresonanztomographien keinen Zweifel mehr zuließen. Immer wieder wird sie mit Cortison behandelt, um die Krankheitsschübe so lange wie möglich hinauszuzögern. Aber es wird klar, dass Karoline Schweiger irgendwann in einem Rollstuhl sitzen wird. Zusammen mit ihrem Mann Albert und ihren beiden Kindern lebte sie in einem Haus in Kitzingen auf drei Ebenen mit Keller. Der erste Gedanke war, einen Treppenlift montieren zu lassen. Weil das Treppenauge zu klein war, fiel dieser Plan flach. Das bauerfahrene Paar dachte dann an einen Aufzug, der an der Giebelseite angebracht werden sollte. Ein verglaster Wintergarten über zwei Ebenen hätte ihn vor Wind, Regen und Kälte geschützt. Als beide den Kostenvoranschlag sahen – ca. 150. 000 Euro –, dachten sie lange über mögliche Optionen nach, und kamen zu dem Schluss neu zu bauen. Schweigers spielten mit dem Gedanken, wieder in Karolines Heimat, nordöstlich von Passau zu ziehen. Durch einen glücklichen Zufall fanden sie schnell ein optimales Grundstück mit einer Größe von 900 Quadratmetern: Ideal, um darauf ein Haus mit möglichst großer Grundfläche ohne Keller zu erstellen.

 

Für Karoline Schweiger kam nur der baubiologische Hausexperte Baufritz infrage. „Ich wollte ein gesundheitlich unbedenkliches Zuhause. Alles, was mich nicht belastet, ist gut für mich. Ich brauche meine Kräfte, um mit der Krankheit leben zu können“, erklärt die Bauherrin. Die konsequent nachhaltige Bauweise, die schadstofffreie Biodämmung aus Hobelspänen und die patentierte Elektrosmog-Schutztechnik, die bis zu 96 Prozent aller hochfrequenten Mobilfunkstrahlen abhält, waren für sie unschlagbare Vorteile.

 

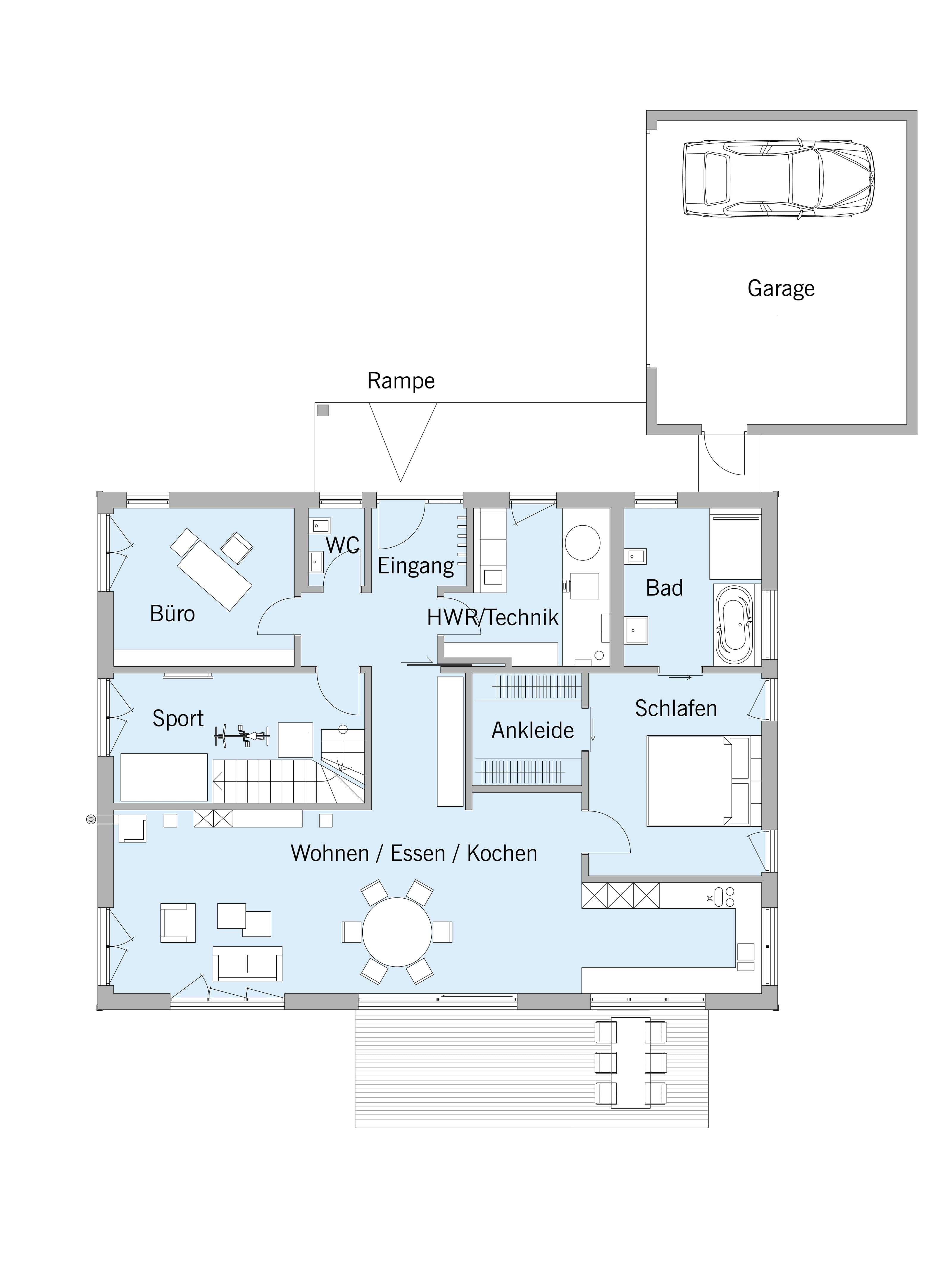
Mit ihren Wunschvorstellungen eines behindertengerechten Domizils ging das Paar zum Ökohaus-Pionier. Schon der zweite Entwurf mit einer naturbelassenen horizontalen „Credo“ Holzverschalung und einem klassischen Satteldach entsprach exakt ihren Vorgaben. Das Paar lebt jetzt auf einer Ebene mit knapp 160 Quadratmetern im Erdgeschoss, die Tochter und der Sohn, beide erwachsen, haben im Obergeschoss ihren eigenen Bereich. Die Hauseingangstür ist mit einer Breite von 1,45 m besonders großzügig gestaltet, sie lässt sich elektrisch öffnen und schließen. Der Gemeinschaftsbereich mit Küche, Esstisch und Relaxzone wurde offen geplant, und durch viele Fenster lichtdurchflutet gestaltet. Eine breite, schwellenarme Hebe-Schiebeanlage verbindet ihn mit der neun Meter breiten Terrasse. Eine exklusive Designmarkise über die komplette Breite beschattet sie.

 

 

Hausdaten

Hausart Icon
HausartEinfamilienhaus
Bauweise Icon
BauweiseHolz-Tafelbau
Anzahl Räume Icon
Anzahl Räume6
Baustil Icon
BaustilLandhäuser
Fassade Icon
FassadeHolz
Außenmaße Icon
Außenmaße15.59 m x 11.84 m
Wohnfläche Icon
Wohnfläche255 m²
Dachform Icon
DachformSattel-/Giebeldach
Etagen Icon
Etagen1.5
Energiestandard Icon
EnergiestandardEffizienzhaus 55
Immobilientyp Icon
ImmobilientypKundenhaus
Dachneigung Icon
Dachneigung25°
Kniestock Icon
Kniestock1.63 m
Heizungsart Icon
HeizungsartWärmepumpe (Luft, Wasser, oder beides)
Pfeil nach unten linksWir schaffen Platz für Ihre Träume

Grundriss

no description
Kundenhaus Schweiger Grundriss (EG)Wohnfläche EG: 158 m²
no description
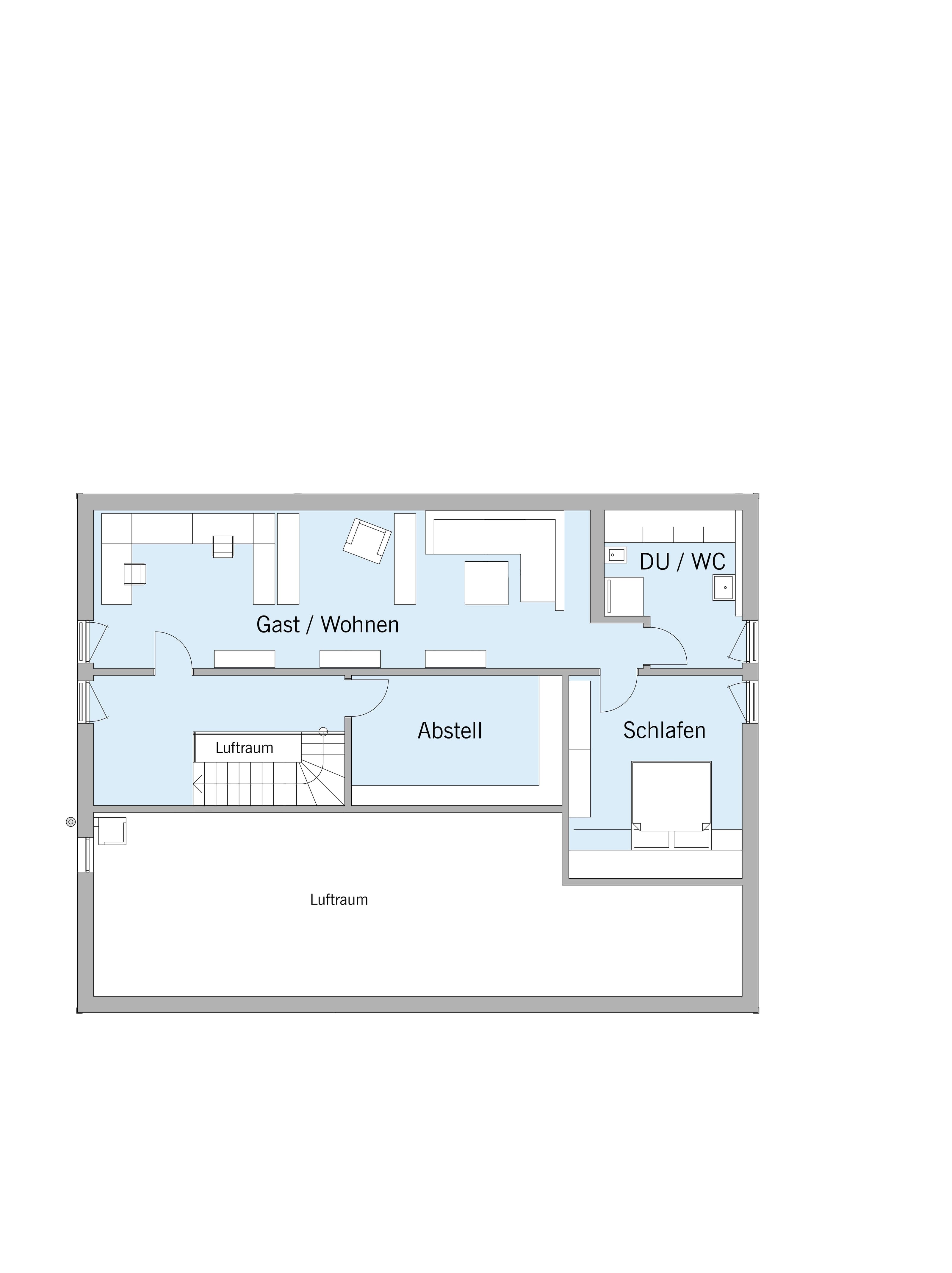
Kundenhaus Schweiger Grundriss (DG)Wohnfläche DG: 97 m²

Unser Team vor Ort

Baufritz Team ErkheimFachberater*in bei BAUFRITZ
Default Avatar
Wir beraten Sie gerne!Arrow Icon
House and TreeParksHouse and PinMusterhausHouse on HandAnbieter