1. AnbieterArrow Icon
  2. BAUFRITZArrow Icon
  3. Kundenhaus Reuter
Slide 1
Slide 2
Slide 3
Slide 4
Slide 5
Slide 6
Slide 7
Baufritz Logo
BAUFRITZKundenhaus Reuter
homeKlassische Familienhäuser
livingArea176 m²
energyStandardEffizienzhaus 55
Preis anfragen
Katalog bestellen

Kundenhaus Reuter

Heiteres Familienhaus mit klarem Anspruch an Design

Kann ein Familienhaus zugleich architektonisch überzeugen, aufgeräumt und doch gemütlich sein? Die Familie Reuter mit drei kleinen Kindern zwischen knapp einem und sechs Jahren beweist: Das geht – mit einem hohen Anspruch an Design im Inneren und ansprechender Gestaltung im Freien. Das von außen angenehm zurückhaltende Familien-Ökohaus fügt sich harmonisch in die gewachsene Wohnumgebung ein. Es gibt zwei Kinderzimmer im Dachgeschoss. Ein Arbeitszimmer im Erdgeschoss und ein Hobbyraum im Untergeschoss können zugunsten eines dritten Kinderzimmers zusammengefasst werden. Bewusst fiel die Entscheidung auf einen Keller. Auch geschickte Schranklösungen bringen Ordnung in den lebhaften Familienalltag. So gibt es beispielsweise deckenhohe Einbauten in der Garderobe und einen versteckten Abstellraum zwischen Arbeitszimmer und Garderobe. Und immer ist der Blick ins üppige Grün gegeben, wo die Bauherren viel von der ursprünglichen Vegetation bewahren konnten.

Hausdaten

Hausart Icon
HausartEinfamilienhaus
Bauweise Icon
BauweiseHolz-Tafelbau
Anzahl Räume Icon
Anzahl Räume5
Baustil Icon
BaustilKlassische Familienhäuser
Fassade Icon
FassadeHolz
Außenmaße Icon
Außenmaße15.58 m x 8.83 m
Wohnfläche Icon
Wohnfläche176 m²
Dachform Icon
DachformSattel-/Giebeldach
Etagen Icon
Etagen1.5
Energiestandard Icon
EnergiestandardEffizienzhaus 55
Immobilientyp Icon
ImmobilientypKundenhaus
Dachneigung Icon
Dachneigung22°
Kniestock Icon
Kniestock2.3 m
Mittlerer U-Wert Icon
Mittlerer U-Wert0.16 W/m²K
Heizungsart Icon
HeizungsartWärmepumpe (Luft, Wasser, oder beides)
Pfeil nach unten linksWir schaffen Platz für Ihre Träume

Grundriss

Reuter_KG_DEU.png
Kundenhaus Reuter Grundriss (Keller)Wohnfläche KG: 83 m²
Reuter_EG_DEU.png
Kundenhaus Reuter Grundriss (EG)Wohnfläche EG: 99 m²
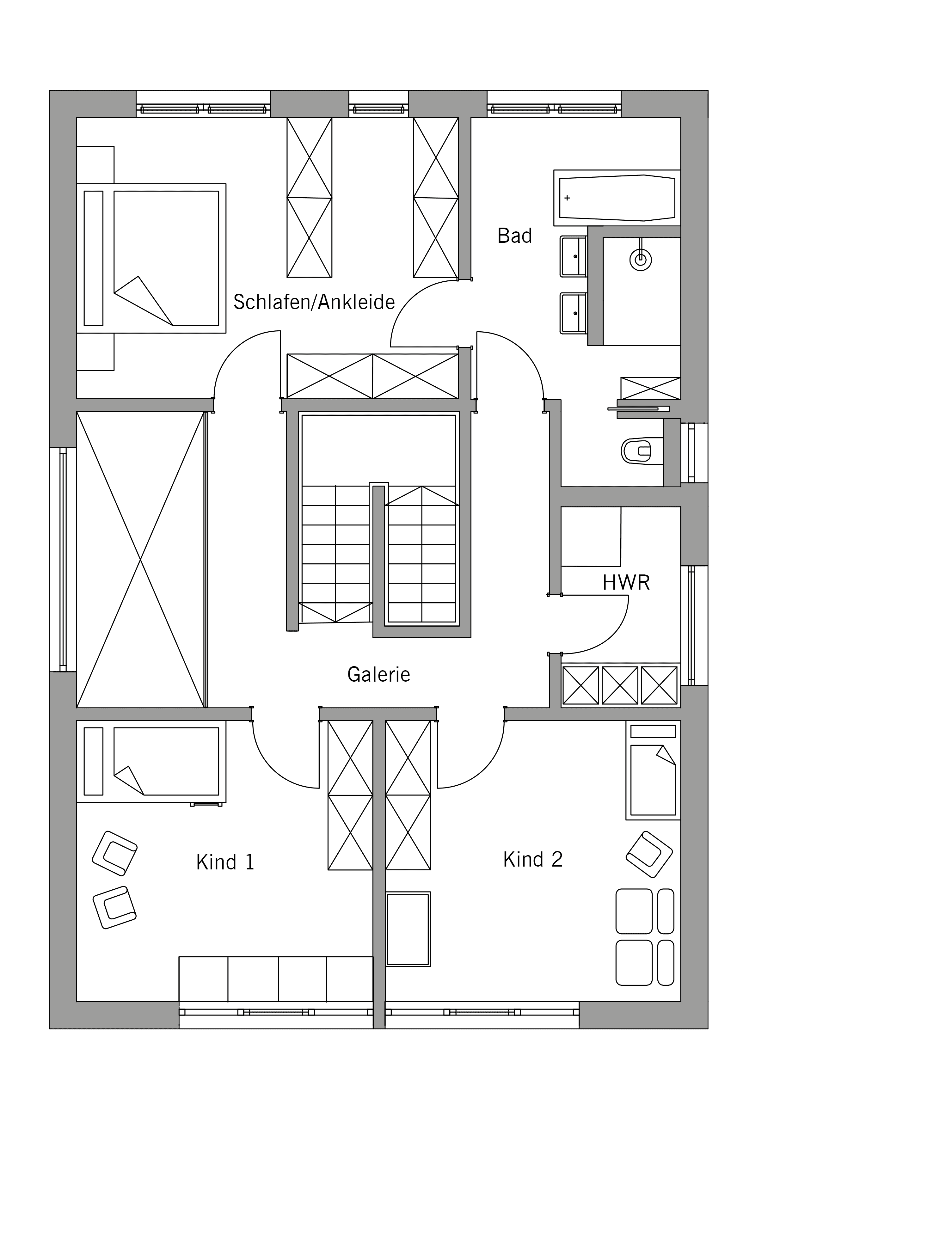
Reuter_DG_DEU.png
Kundenhaus Reuter Grundriss (DG)Wohnfläche DG: 76 m²

Unser Team vor Ort

Baufritz Team ErkheimFachberater*in bei BAUFRITZ
Default Avatar
Wir beraten Sie gerne!Arrow Icon
House and TreeParksHouse and PinMusterhausHouse on HandAnbieter