So leben, wie es den eigenen Vorstellungen entspricht, architektonisch stimmig und nachhaltig wohnlich – und vorhandene Fläche optimieren? Darauf hat das Baufritz-Musterhaus „my smart green home: Schwarzwald“ eine ganz neuartige, konfiguratorbasierte, Antwort. Digital gedacht, analog gebaut – das ist das Prinzip.
Das rundum gelungene Designerhaus in klarem Schiefergrau denkt in die Höhe. Und in die Weite. Sichtachsen vereinen das Innen mit dem Außen, Proportionen sind ausgewogen, Fensterflächen großzügig. Die Haustechnik ist konzentriert: im Energie-Wände-Modul, dem eigens von Baufritz entwickelten, komplett vorgefertigten Technikraum, der vor Ort nur noch angeschlossen wird. Die Maßgabe: das neue QNG-Siegel des Bundes auf Basis renommierter Nachhaltigkeits-Zertifizierungssysteme und eine Ausführung entsprechend Effizienzhaus 40 Plus-Standard. Bestanden ist auch die konkurrenzlos umfassende VDB-Zertifizierung.
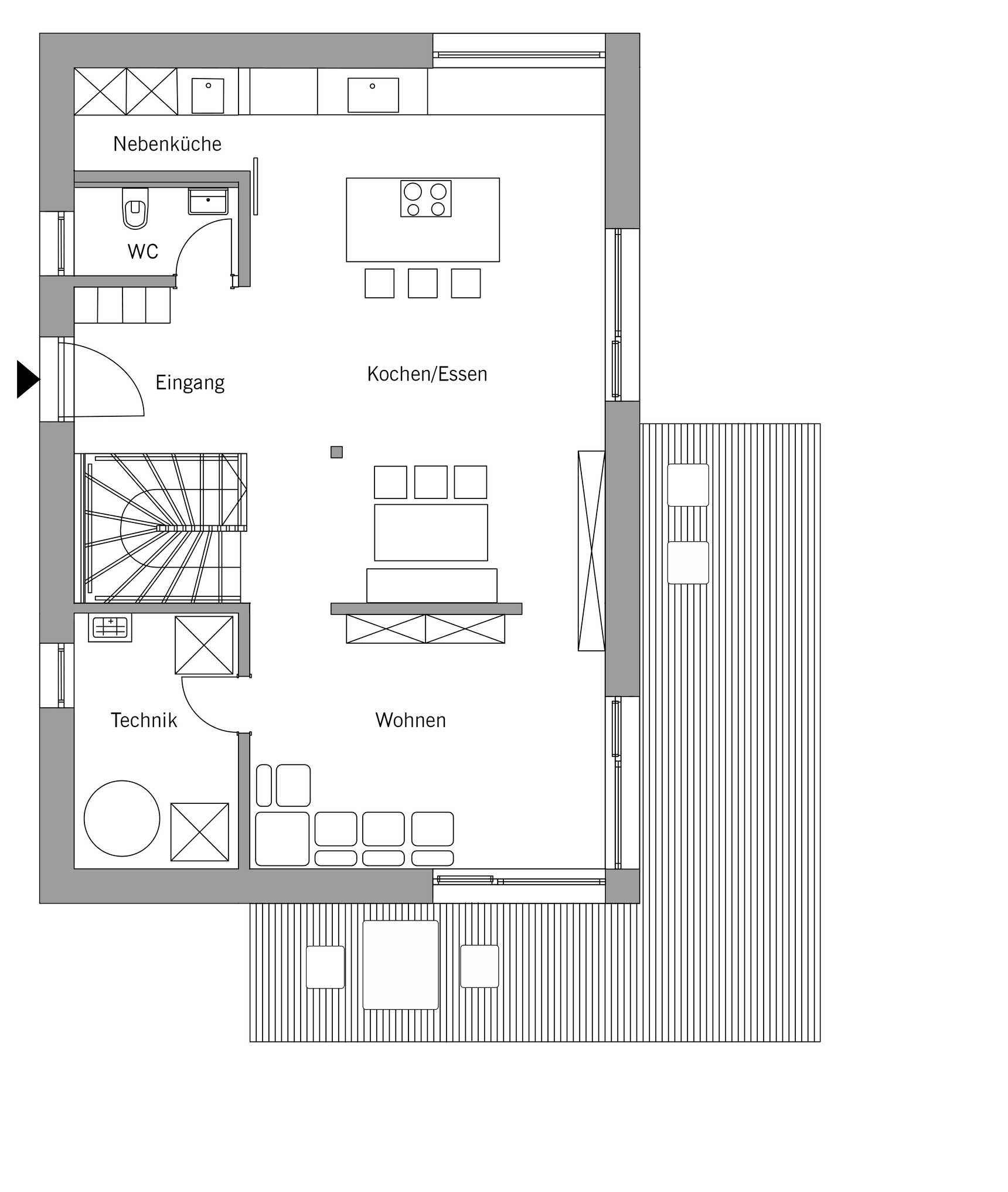
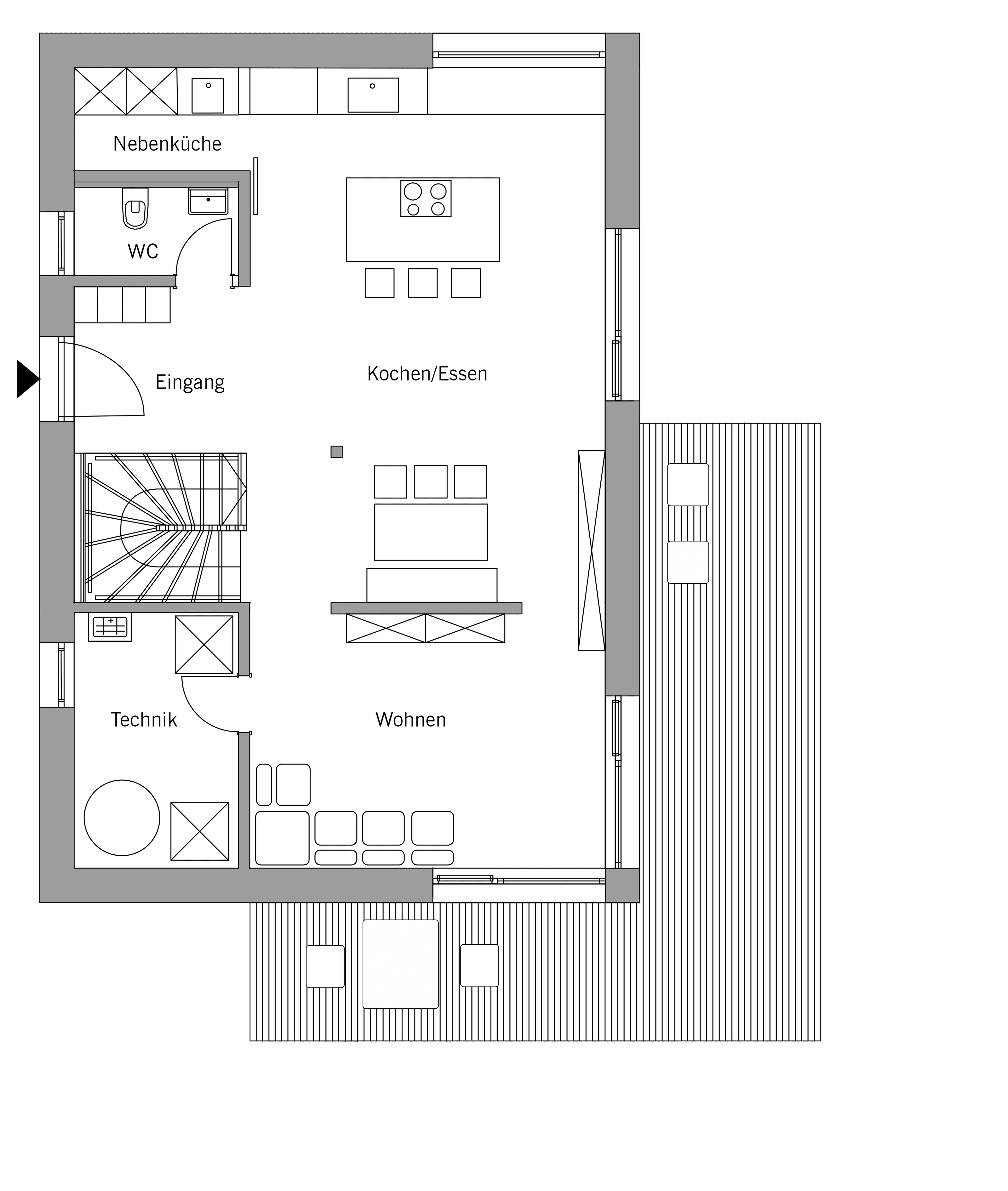
Was direkt auffällt, außen wie auch beim Betreten des Familienhauses auf rund 190 qm Wohnfläche: die spürbare Balance, die durchgängige Klarheit, viel helles Holz, eine lichte Strahlkraft, eine junge Leichtigkeit. Alles passt, das ist das Gefühl, das sich durch die Ebenen und bis ins Dachstudio zieht. Hier profitieren Bauherren von den besonderen gestalterischen Fähigkeiten der internationalen Baufritz-HausDesigner. Der Fenster-Rhythmus und die Platzierung der einzelnen Fenster in der „Scala Uno“ Holzfassade sind wohl durchdacht. Bodentiefe Fenster über Eck holen das Draußen nach Drinnen. Das Verhältnis zwischen Offenheit und Rückzug ist von Raum zu Raum durchweg harmonisch.
Sichtachsen vereinen das Innen mit dem Außen, Proportionen sind ausgewogen, Fensterflächen großzügig. Die weitläufige Garten-Terrasse stellt die schier fließende Verbindung in die Natur her. Eine Symbiose zwischen Baukörper und Außenbereich bilden auch das vorgehängte Eingangsmodul und eine hübsche Sitzbank, direkt an der Fassade angebracht. Raffiniert ist die Farbgebung: das Schiefergrau der sägerauen Holzfassade im Gleichklang mit den Fensterrahmen in Goldoliv. Dachentwässerung und Ortgang sind wie die gesamte Spenglerarbeit dunkelgrau. Auch die ganz in Schwarz gehaltene Photovoltaik-Anlage fügt sich harmonisch ins äußere Gesamtbild.
Zentraler Punkt des Hauses ist, wie wohl in vielen Familien, der einladende Esstisch – wie auch die Stühle und der Fußboden aus heller Esche. Insgesamt dominieren heimische Hölzer: Esche, Birke, lebhafte Weißtanne. Feines Detail: die dunkel vertäfelte Wand, die den stilvoll dezenten Eindruck der Außenfassade nach innen holt und zugleich als Raumteiler dient. Es fällt auf, wie Fläche konsequent smart genutzt wird. Der Küchenbereich ist um einen kleinen Barbereich ergänzt. Auf die üblichen, statischen, Hängeschränke wird zugunsten luftiger Elemente zum Einhängen verzichtet. Selbst eine Nebenküche ist Teil des Hauses. Sie führt die Küchenzeile fort, bringt Spülmaschine, Kühlschrank und viele Vorräte unter. Großer Vorteil: der durchweg aufgeräumte Eindruck, obwohl das hübsche Familienhaus ohne Keller auskommt.
Im ersten Stock befinden sich ein Elternbad sowie ein extra Kinderbad. Praktische Schübe in den Kinderzimmern helfen, Ordnung zu halten. Auch hier wird auf hellen Eschenböden und dazu noch mit Schreinermöbeln aus Birke gespielt und gelebt. Wunderschöner Rückzugsort im Obergeschoss ist eine lichtdurchflutete Leseecke mit geschickt platziertem Fenster, bequemem Sessel und Fußhocker. Das Studio im Dachgeschoss bietet zwei Heim-Arbeitsplätze und seitliche Einbauten.



(öffnet Donnerstag um 13:00 Uhr)