1. AnbieterArrow Icon
  2. BAUFRITZArrow Icon
  3. Kundenhaus Haus am Wald
Slide 1
Slide 2
Slide 3
Slide 4
Slide 5
Slide 6
Slide 7
Baufritz Logo
BAUFRITZKundenhaus Haus am Wald
homeKlassische Familienhäuser
livingArea198 m²
energyStandardEffizienzhaus 55
Preis anfragen
Katalog bestellen

Kundenhaus Haus am Wald

Hang zur Natur

Hoch oben über dem Tal thront dieses moderne Holzhaus. Weit reicht der Blick von hier über die Dächer der umliegenden Dörfer und Städte, über die Wiesen und über die angrenzenden Wälder. In dieser erhabenen Position haben die Gedanken Raum. Es ist ein Ort zum Wohlfühlen und Entspannen, ein Ort an dem zu sich selbst findet. Das spiegelt sich auch in der Gestaltung des Hauses wieder. Es braucht keine üppigen Verzierungen oder aufwendige Anbauten, vielmehr konzentrierte man sich auf das Wesentliche. Mit der schlichten silbergrauen Holzfassade, der klaren Formgebung und dem bewussten Verzicht auf Dachüberstände passt es sich perfekt in seine Umgebung ein, ohne sie dabei zu dominieren. Jede Seite zeigt ein anderes Gesicht: Während sich das Gebäude zur Straßenseite eher geschlossen präsentiert, öffnet es sich zur Hangseite mit üppigen Glasflächen. Beeindruckend ist die über zwei Etagen reichende Übereck-Verglasung, hinter der sich ein hoher Luftraum erstreckt. Rund um das Haus finden sich gemütliche Rückzugs- und Treffpunkte, die zum Entspannen im Freien einladen – etwa die überdachte Terrasse mit angrenzendem Sauna-Haus, der Naturschwimmteich oder auch die vorgelagerte Loggia, die über dem Eingang zu schweben scheint. Mit ihrem Satteldach verleiht sie dem Haus eine fast schon futuristische Anmutung. Um den Platz auf dem Grundstück optimal auszunutzen, wurde die Garage behutsam in den steilen Hang hineingeschoben.

Hausdaten

Hausart Icon
HausartEinfamilienhaus
Bauweise Icon
BauweiseHolz-Tafelbau
Anzahl Räume Icon
Anzahl Räume6
Baustil Icon
BaustilKlassische Familienhäuser
Fassade Icon
FassadeHolz
Außenmaße Icon
Außenmaße13.83 m x 8.2 m
Wohnfläche Icon
Wohnfläche198 m²
Dachform Icon
DachformSattel-/Giebeldach
Etagen Icon
Etagen2
Energiestandard Icon
EnergiestandardEffizienzhaus 55
Immobilientyp Icon
ImmobilientypKundenhaus
Dachneigung Icon
Dachneigung28°
Kniestock Icon
Kniestock2.78 m
Heizungsart Icon
HeizungsartHolzpelletheizung
Pfeil nach unten linksWir schaffen Platz für Ihre Träume

Grundriss

no description
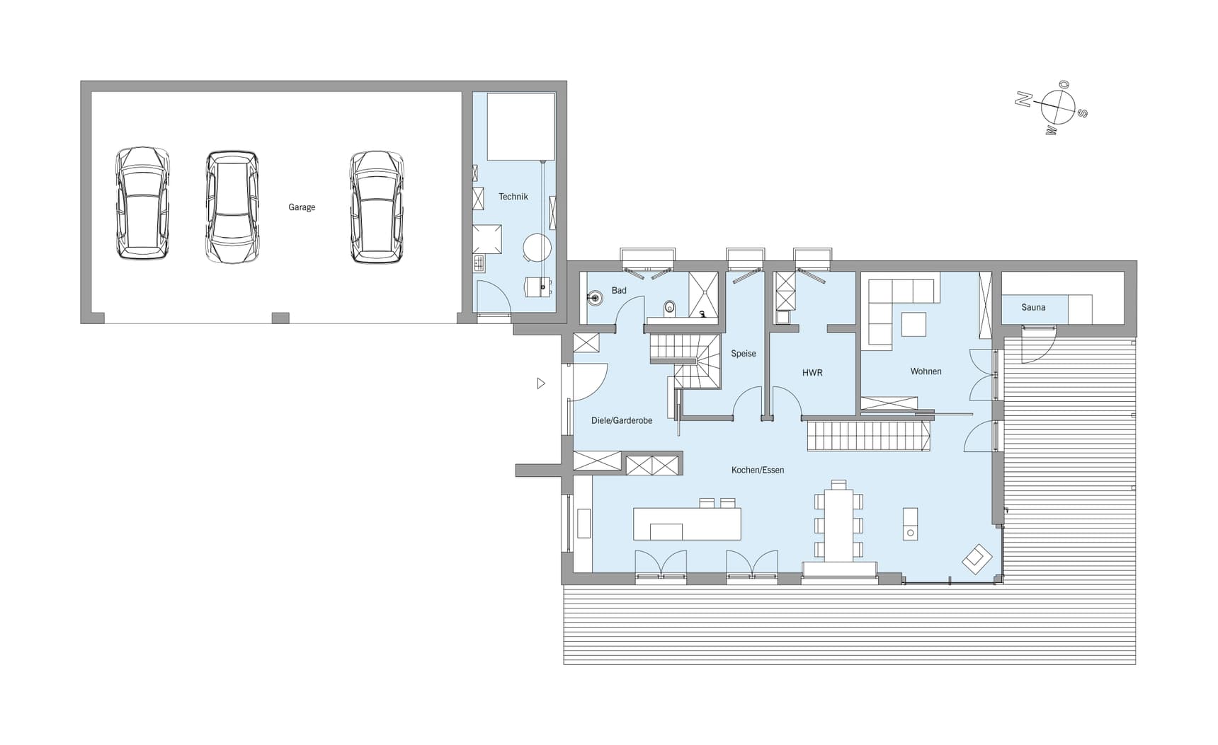
Kundenhaus Haus am Wald Grundriss (EG)Wohnfläche EG: 117 m²
no description
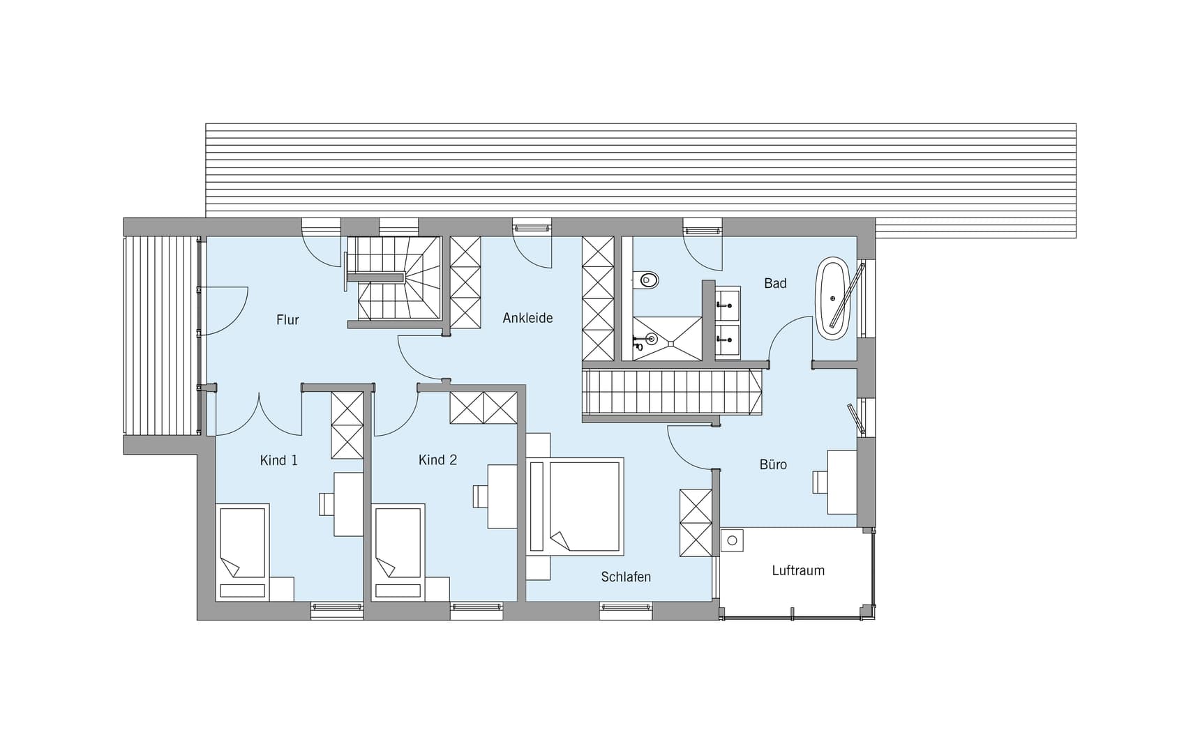
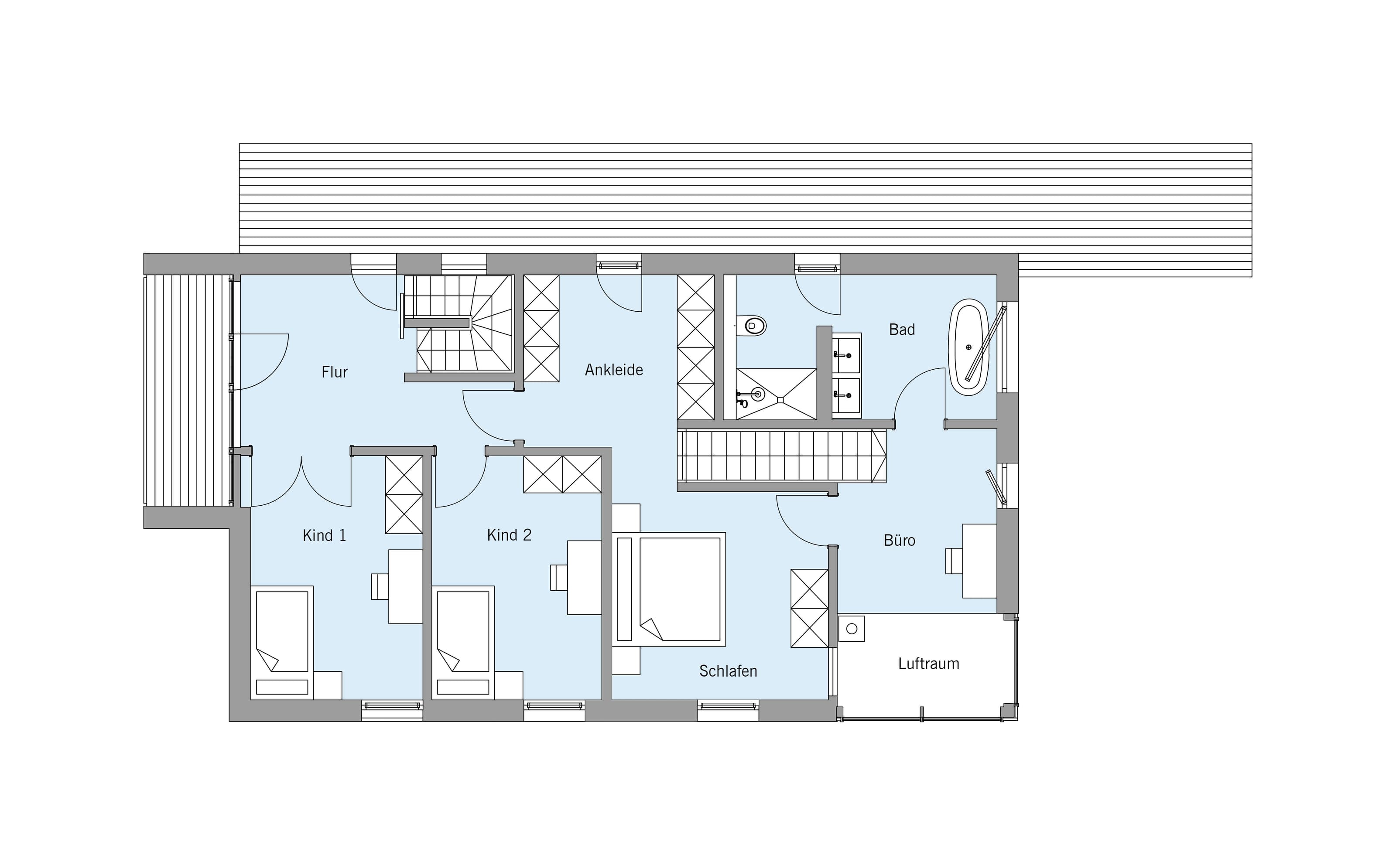
Kundenhaus Haus am Wald Grundriss (DG)Wohnfläche DG: 81 m²

Unser Team vor Ort

Baufritz Team ErkheimFachberater*in bei BAUFRITZ
Default Avatar
Wir beraten Sie gerne!Arrow Icon
House and TreeParksHouse and PinMusterhausHouse on HandAnbieter