1. AnbieterArrow Icon
  2. BAUFRITZArrow Icon
  3. Kundenhaus Ehrmann
Slide 1
Slide 2
Slide 3
Slide 4
Slide 5
Slide 6
Slide 7
Slide 8
Slide 9
Slide 10
Baufritz Logo
BAUFRITZKundenhaus Ehrmann
homeKlassische Familienhäuser
livingArea176 m²
energyStandardEffizienzhaus 55
Preis anfragen
Katalog bestellen

Kundenhaus Ehrmann

Perfekt in die Lücke geplant

Perfekt in die Lücke gezirkelt

 

In das neue Eigenheim ziehen und die alte Nachbarschaft behalten – für eine Familie aus der Nähe von Frankfurt war genau das möglich. Sie hatte das Glück, im historischen Ortskern eines Frankfurter Vororts von einer auf die andere Straßenseite zu ziehen. Da das bestehende Fachwerkhaus zu marode war, errichteten sie mit Baufritz ein neues baubiologisches Wohndomizil, das auch trotz der beiden denkmalgeschützten Bestandsgebäuden auf dem schmalen Grundstück alles andere als ein "Lückenfüller" ist.

Es war ein logistisches Meisterstück, die vorgefertigten Bauteile anzuliefern und zu montieren, da nur eine schmale Straße zum Grundstück im historischen Ortskern führt. Sowohl die enge Nachbarbebauung als auch die beiden vorhandenen Gebäude auf dem Gelände stellten kniffelige Herausforderungen dar, die von den Planern wie auch den Monteuren absolute Präzision und höchste Konzentration abverlangte. Durch die Expertise von Baufritz und die individuelle Vorfertigung der Bauteile wurde der Neubau jedoch sehr gut gemeistert. Wie zwei Legosteine fügen sich jetzt das neue Haus und der trapezförmige Anbau in das historische Fachwerk-Ensemble und den aufwendig gepflasterten Innenhof ein.

 

Hausdaten

Hausart Icon
HausartEinfamilienhaus
Bauweise Icon
BauweiseHolz-Tafelbau
Anzahl Räume Icon
Anzahl Räume4
Baustil Icon
BaustilKlassische Familienhäuser
Fassade Icon
FassadePutz, Materialkombination
Außenmaße Icon
Außenmaße11.33 m x 6.33 m
Wohnfläche Icon
Wohnfläche176 m²
Dachform Icon
DachformSattel-/Giebeldach
Etagen Icon
Etagen2.5
Energiestandard Icon
EnergiestandardEffizienzhaus 55
Immobilientyp Icon
ImmobilientypKundenhaus
Dachneigung Icon
Dachneigung48°
Kniestock Icon
Kniestock0.41 m
Heizungsart Icon
HeizungsartGas-Brennwertheizung
Pfeil nach unten linksWir schaffen Platz für Ihre Träume

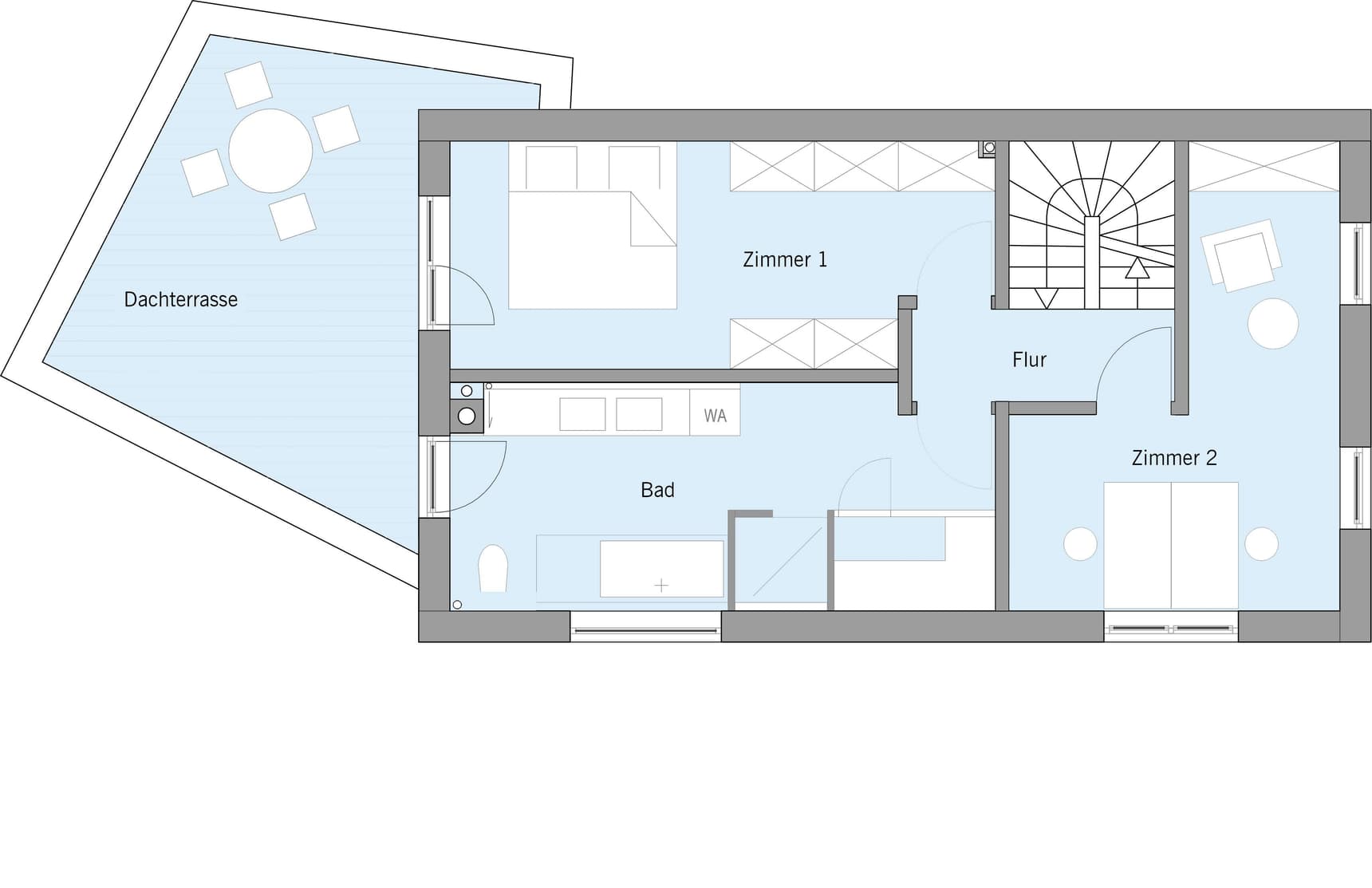
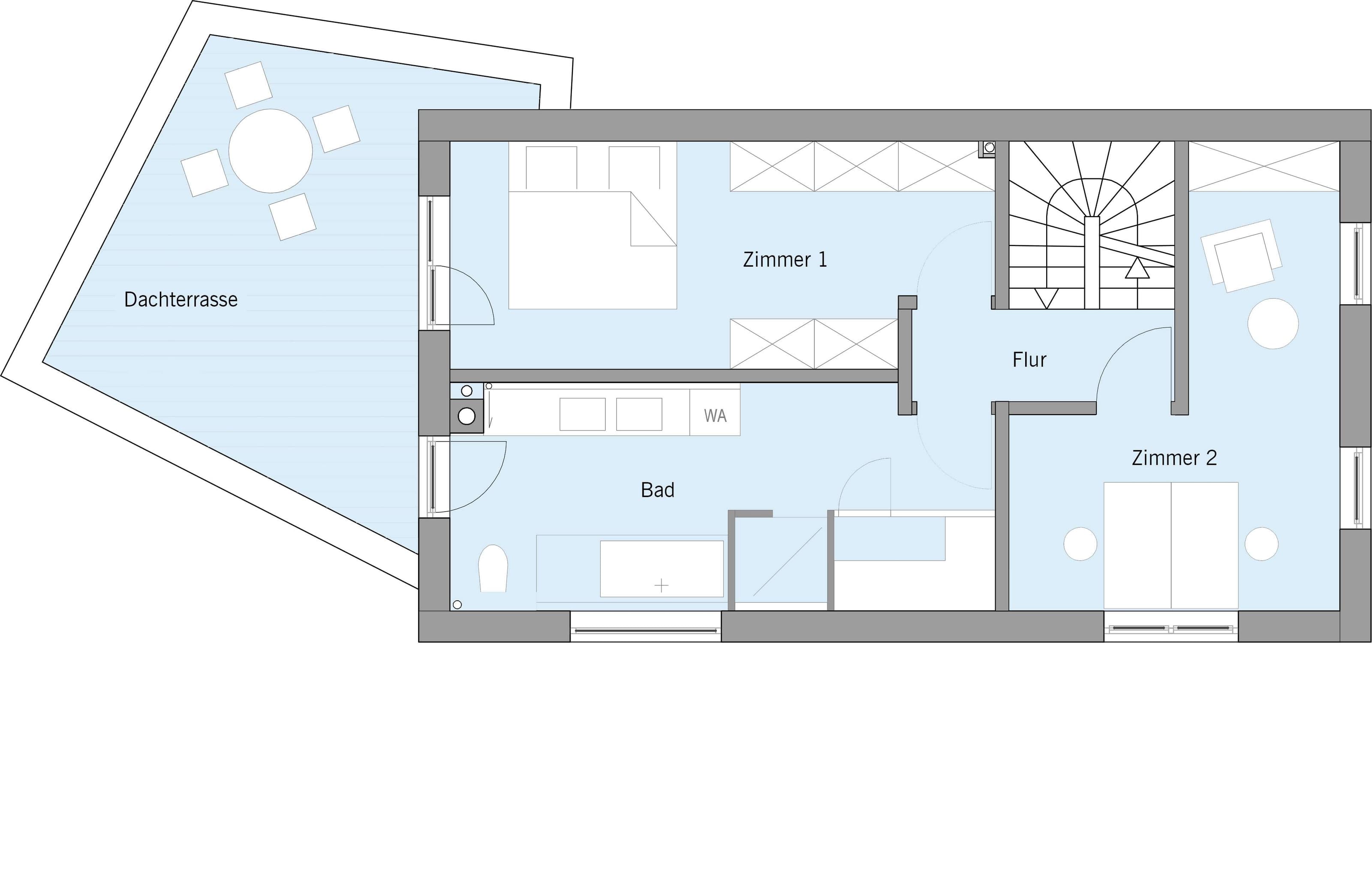
Grundriss

no description
Kundenhaus Ehrmann Grundriss (Keller)
no description
Kundenhaus Ehrmann Grundriss (EG)Wohnfläche EG: 74 m²
no description
Kundenhaus Ehrmann Grundriss (OG)Wohnfläche OG: 52 m²
no description
Kundenhaus Ehrmann Grundriss (DG)Wohnfläche DG: 50 m²

Unser Team vor Ort

Baufritz Team ErkheimFachberater*in bei BAUFRITZ
Default Avatar
Wir beraten Sie gerne!Arrow Icon
House and TreeParksHouse and PinMusterhausHouse on HandAnbieter