1. AnbieterArrow Icon
  2. WeberHausArrow Icon
  3. Musterhaus in Wenden
Slide 1
Location Icon
Slide 2
Location Icon
Slide 3
Location Icon
Slide 4
Location Icon
Slide 5
Location Icon
Slide 6
Location Icon
Slide 7
Location Icon
Slide 8
Location Icon
Slide 9
Location Icon
Logo WeberHaus
WeberHausMusterhaus in Wenden
homeStadtvillen
livingArea182 m²
energyStandardEffizienzhaus 40 Plus
Preis anfragen

Musterhaus in Wenden

Technisch und optisch ein echtes Highlight

Die neue, schicke Stadtvilla in Wenden ist optisch und technisch auf dem allerneuesten Stand. Das CityLife 700 bietet 160 Quadratmeter Wohnfläche unter einem speziell ausgeführten Walmdach mit ästhetisch umgesetzter Solaranlage. Das obere Geschoss wurde mittels eines architektonischen Kniffes, wie ein Staffelgeschoss anmutend, abgesetzt. Außen zeigt sich das kubische Haus in Bauhaus-Reminiszenz in hellem Weiß und modernem Grau, innen kontrastieren rustikale Eichenböden mit der topmodernen Farben- und Linienführung der Innenarchitektur. Eine kontrastreiche Stadtvilla im Sinne der Wohngesundheit und auf dem neuesten Stand der Technik, umgeben von Terrasse und komplettiert von einem großzügigen Balkon – das ist das neue CityLife 700.

Hausdaten

Hausart Icon
HausartEinfamilienhaus
Bauweise Icon
BauweiseHolz-Tafelbau
Anzahl Räume Icon
Anzahl Räume9
Baustil Icon
BaustilStadtvillen
Fassade Icon
FassadePutz
Außenmaße Icon
Außenmaße9.08 m x 10.88 m
Wohnfläche Icon
Wohnfläche181.81 m²
Dachform Icon
DachformWalm-/Zeltdach
Etagen Icon
Etagen2
Energiestandard Icon
EnergiestandardEffizienzhaus 40 Plus
Immobilientyp Icon
ImmobilientypMusterhaus
Dachneigung Icon
Dachneigung25°
Mittlerer U-Wert Icon
Mittlerer U-Wert0.11 W/m²K
Hauseigenschaften Icon
HauseigenschaftenGästezimmer
Hausdämmstoff Icon
HausdämmstoffMineralfaser (Glaswolle, Steinwolle)
Heizungsart Icon
HeizungsartLüftungsheizung
Pfeil nach unten linksWir schaffen Platz für Ihre Träume

Grundriss

no description
Musterhaus in Wenden Grundriss (EG)Wohnfläche EG: 101,24 m²
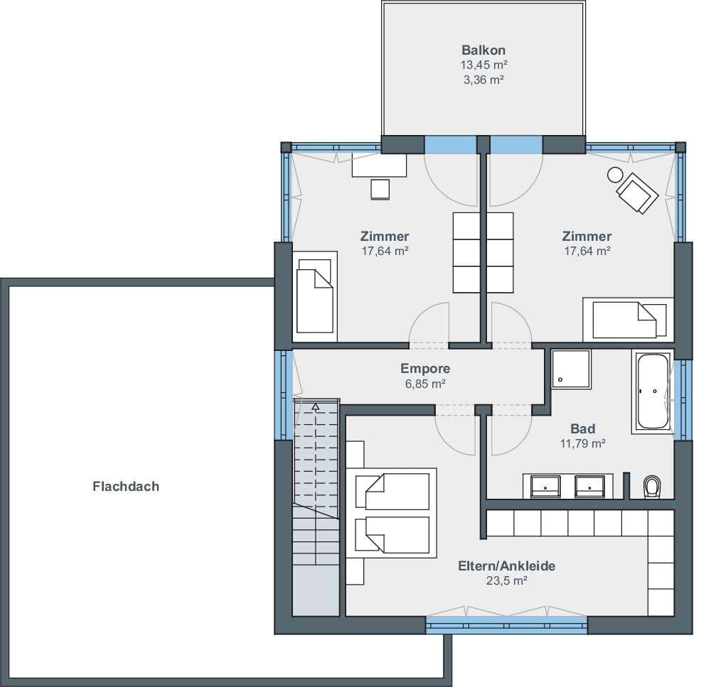
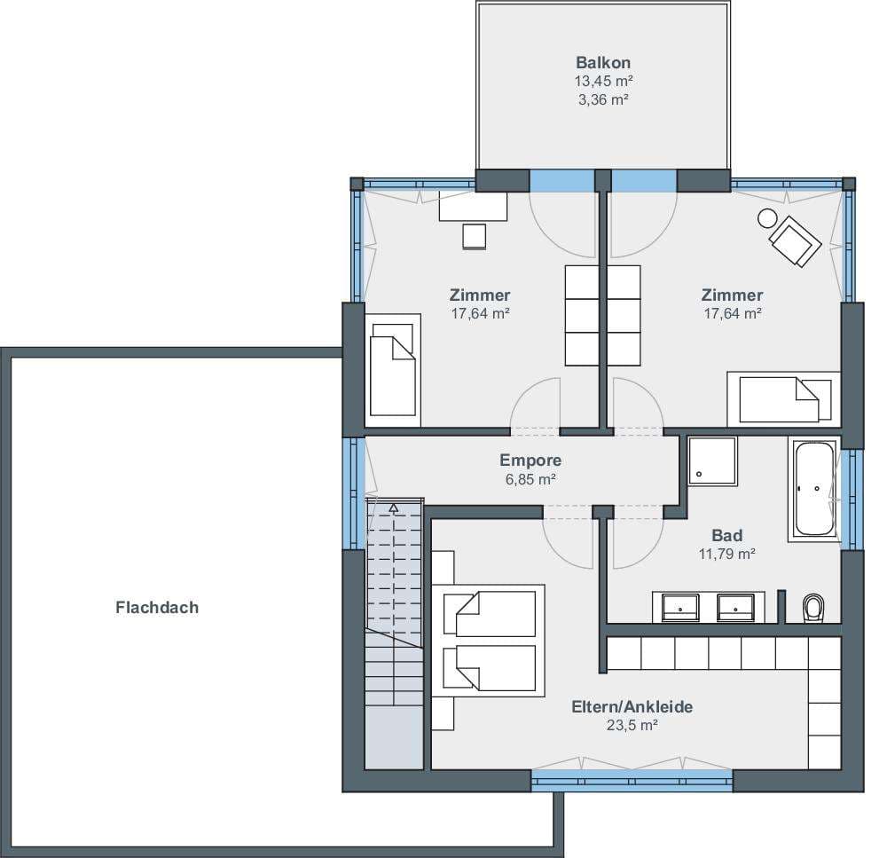
no description
Musterhaus in Wenden Grundriss (OG)Wohnfläche OG: 80,57 m²

Öffnungszeiten

Montag:07:00 - 15:00 Uhr
Dienstag:07:00 - 15:00 Uhr
Mittwoch:07:00 - 15:00 Uhr
Donnerstag:07:00 - 15:00 Uhr
Freitag:07:00 - 15:00 Uhr
Samstag:08:00 - 15:00 Uhr
Sonntag:08:00 - 15:00 Uhr

(öffnet Samstag um 12:00 Uhr)

Adresse

Rheinauerstr. 12
Wenden-Hünsborn 57482

Anfahrt planen

Beratungstermin

Fertighaus Team in Wenden-Hünsborn
House and TreeParksHouse and PinMusterhausHouse on HandAnbieter