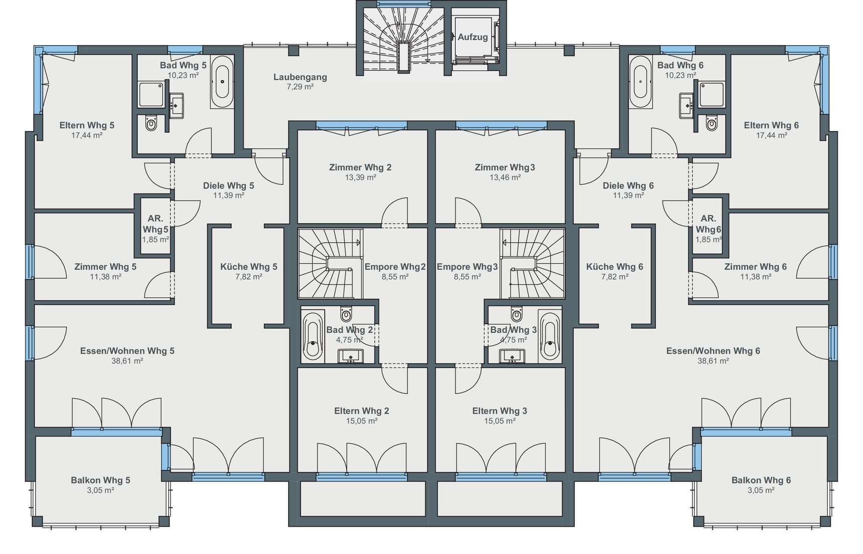
WeberHaus realisiert neben Ein- und Zweifamilienhäusern auch mehrgeschossige Objektbauten in ökologischer Holzbauweise. Dieses Mehrfamilienhaus mit zweieinhalb Etagen und Weberith-Keller umfasst acht Wohneinheiten. An der Eingangs- und Gartenseite erweitern jeweils ein dritter Giebel mit Flachdach das Gebäude. Im Erdgeschoss liegen vier Wohnungen, wobei zwei davon als Maisonette über das Obergeschoss reichen. Das Dachgeschoss beherbergt zwei weitere Einheiten. Ein Aufzug ergänzt das Treppenhaus. Der Keller bietet Stauraum, einen Fahrrad- und Hauswirtschaftsraum sowie die Heiztechnik.
 


