1. AnbieterArrow Icon
  2. WeberHausArrow Icon
  3. Jubiläumshaus Balance 205
Slide 1
Slide 2
Slide 3
Logo WeberHaus
WeberHausJubiläumshaus Balance 205
homeKlassische Familienhäuser
livingArea134 m²
energyStandardEffizienzhaus 55
Preis anfragen
Katalog bestellen

Jubiläumshaus Balance 205

Nachhaltig, effizient und zukunftssicher.

Wie jedes WeberHaus überzeugt auch das Balance 205 durch seine herausragende Energieeffizienz und niedrigen Energiekosten. Über 133 m² Wohnfläche sind auf 1,5 Geschosse verteilt und bieten ausreichend Platz für die kleine Familie

Aktionspreis: 318.650,-€ (Preis-Basis ist die Ausbaustufe “Bad komplett” inklusive Bodenplatte)
Preisstand: 01.05.2025
 

Hausdaten

Hausart Icon
HausartAktionshaus
Bauweise Icon
BauweiseHolz-Tafelbau
Anzahl Räume Icon
Anzahl Räume6
Baustil Icon
BaustilKlassische Familienhäuser
Fassade Icon
FassadePutz
Außenmaße Icon
Außenmaße9.23 m x 10.16 m
Wohnfläche Icon
Wohnfläche133.66 m²
Dachform Icon
DachformSattel-/Giebeldach
Etagen Icon
Etagen1.5
Energiestandard Icon
EnergiestandardEffizienzhaus 55
Immobilientyp Icon
ImmobilientypPlanungsidee
Dachneigung Icon
Dachneigung38°
Kniestock Icon
Kniestock120 m
Mittlerer U-Wert Icon
Mittlerer U-Wert0.11 W/m²K
Hauseigenschaften Icon
HauseigenschaftenTerasse, Viel Glas
Hausdämmstoff Icon
HausdämmstoffMineralfaser (Glaswolle, Steinwolle)
Heizungsart Icon
HeizungsartWärmepumpe (Luft, Wasser, oder beides)
Pfeil nach unten linksWir schaffen Platz für Ihre Träume

Grundriss

Jubiläumhaus 65 Jahre WeberHaus
Jubiläumshaus Balance 205 Grundriss (EG)Wohnfläche EG: 73,24 m²
Jubiläumhaus 65 Jahre WeberHaus
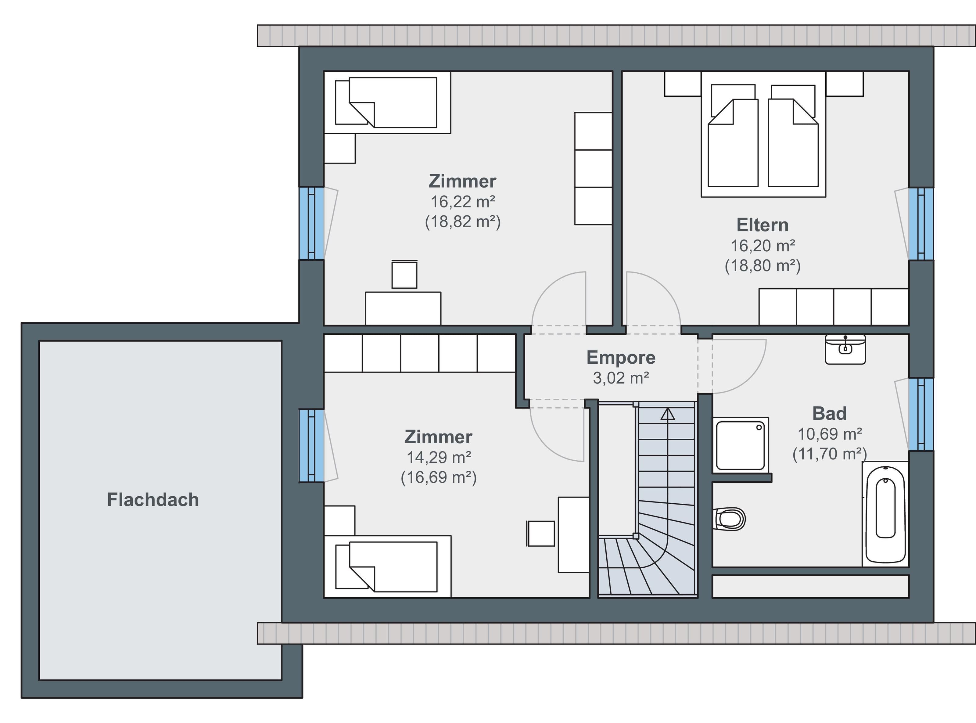
Jubiläumshaus Balance 205 Grundriss (DG)Wohnfläche DG: 60,42 m²

Kataloge

WeberHaus: OPTION
WeberHaus

WeberHaus: OPTION


WeberHaus: Objektbau Katalog
WeberHaus

WeberHaus: Objektbau Katalog


WeberHaus: Hauskatalog
WeberHaus

WeberHaus: Hauskatalog


House and TreeParksHouse and PinHäuser liveHouse on HandAnbieter