1. AnbieterArrow Icon
  2. WeberHausArrow Icon
  3. Zwei Vollgeschosse und Flachdach
Slide 1
Slide 2
Slide 3
Slide 4
Slide 5
Slide 6
Slide 7
Logo WeberHaus
WeberHausZwei Vollgeschosse und Flachdach
homeKlassische Familienhäuser
livingArea188 m²
energyStandardEffizienzhaus 40 Plus
Preis anfragen
Katalog bestellen

Zwei Vollgeschosse und Flachdach

Grundlage für dieses Einfamilienhaus ist die Baureihe generation5.5. Die Bauherren wünschten sich ein Haus mit klaren Linien und rechten Winkeln, weshalb sie sich logischerweise für ein Flachdach entschieden. Bei der Fassadengestaltung haben sich die Bauherren für einen Greigeton, eine Mischung aus Beige und Grau, entschieden. So fügt sich das zweigeschossige Haus gut in die natürliche Umgebung ein. Aufgelockert wird die Fassade durch eine Holzverschalung.

Hausdaten

Hausart Icon
HausartEinfamilienhaus
Bauweise Icon
BauweiseHolz-Tafelbau
Anzahl Räume Icon
Anzahl Räume7
Baustil Icon
BaustilKlassische Familienhäuser
Fassade Icon
FassadePutz
Außenmaße Icon
Außenmaße12.35 m x 10.83 m
Wohnfläche Icon
Wohnfläche188.23 m²
Dachform Icon
DachformFlachdach
Etagen Icon
Etagen2
Energiestandard Icon
EnergiestandardEffizienzhaus 40 Plus
Immobilientyp Icon
ImmobilientypKundenhaus
Mittlerer U-Wert Icon
Mittlerer U-Wert0.11 W/m²K
Hauseigenschaften Icon
HauseigenschaftenGästezimmer
Hausdämmstoff Icon
HausdämmstoffMineralfaser (Glaswolle, Steinwolle)
Heizungsart Icon
HeizungsartWärmepumpe (Luft, Wasser, oder beides)
Pfeil nach unten linksWir schaffen Platz für Ihre Träume

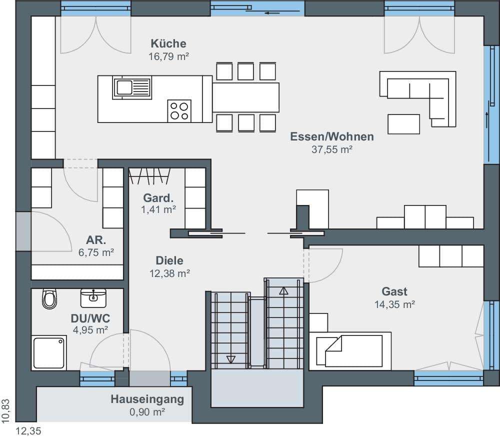
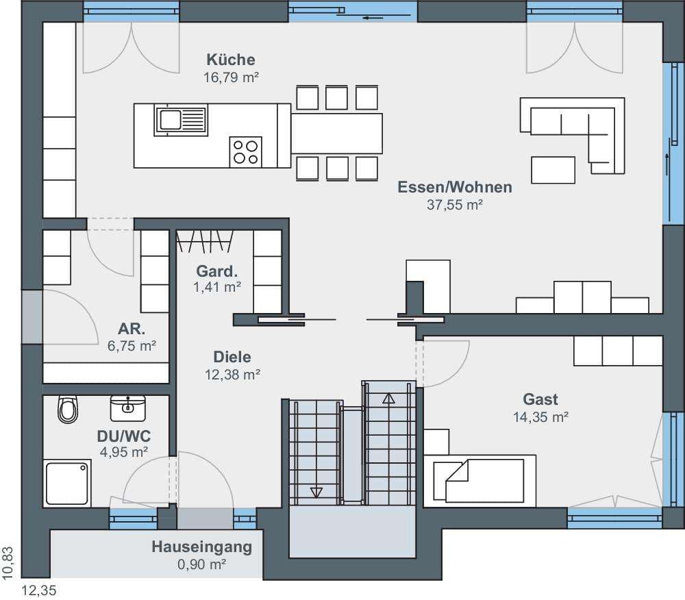
Grundriss

no description
Zwei Vollgeschosse und Flachdach Grundriss (EG)Wohnfläche EG: 95,08 m²
no description
Zwei Vollgeschosse und Flachdach Grundriss (OG)Wohnfläche OG: 93,23 m²

Kataloge

WeberHaus: OPTION
WeberHaus

WeberHaus: OPTION


WeberHaus: Objektbau Katalog
WeberHaus

WeberHaus: Objektbau Katalog


WeberHaus: Hauskatalog
WeberHaus

WeberHaus: Hauskatalog


House and TreeParksHouse and PinMusterhausHouse on HandAnbieter