1. AnbieterArrow Icon
  2. WeberHausArrow Icon
  3. Musterhaus in Wenden
Slide 1
Location Icon
Slide 2
Location Icon
Slide 3
Location Icon
Slide 4
Location Icon
Slide 5
Location Icon
Slide 6
Location Icon
Logo WeberHaus
WeberHausMusterhaus in Wenden
homeKlassische Familienhäuser
livingArea136 m²
energyStandardEffizienzhaus 40 Plus
Preis anfragen

Musterhaus in Wenden

Durchdacht bis ins Detail

Das rund 140 Quadratmeter große Einfamilienhaus mit Satteldach in moderner Dachausführung verfügt über anderthalb Geschosse und überzeugt durch sein raffiniertes Raumkonzept. Durch intensive Planung entstand ein Entwurf mit großzügigem Platzangebot auf kompakter Fläche, perfekt geeignet für kleine Grundstücke. Wohlfühlplätze, wie eine Fenstersitzbank oder eine Terrasse mit hochwertiger Pergola, und clevere Details, wie eine integrierte Garderobe oder ein zusätzliches Zimmer im Erdgeschoss, runden das Eigenheim ab.

Hausdaten

Hausart Icon
HausartEinfamilienhaus
Bauweise Icon
BauweiseHolz-Tafelbau
Anzahl Räume Icon
Anzahl Räume6
Baustil Icon
BaustilKlassische Familienhäuser
Fassade Icon
FassadePutz
Außenmaße Icon
Außenmaße1041 m x 1079 m
Wohnfläche Icon
Wohnfläche136.05 m²
Dachform Icon
DachformSattel-/Giebeldach
Etagen Icon
Etagen1.5
Energiestandard Icon
EnergiestandardEffizienzhaus 40 Plus
Immobilientyp Icon
ImmobilientypMusterhaus
Dachneigung Icon
Dachneigung38°
Kniestock Icon
Kniestock120 m
Mittlerer U-Wert Icon
Mittlerer U-Wert0.11 W/m²K
Hauseigenschaften Icon
HauseigenschaftenGästezimmer
Hausdämmstoff Icon
HausdämmstoffMineralfaser (Glaswolle, Steinwolle)
Heizungsart Icon
HeizungsartWärmepumpe (Luft, Wasser, oder beides)
Pfeil nach unten linksWir schaffen Platz für Ihre Träume

Grundriss

no description
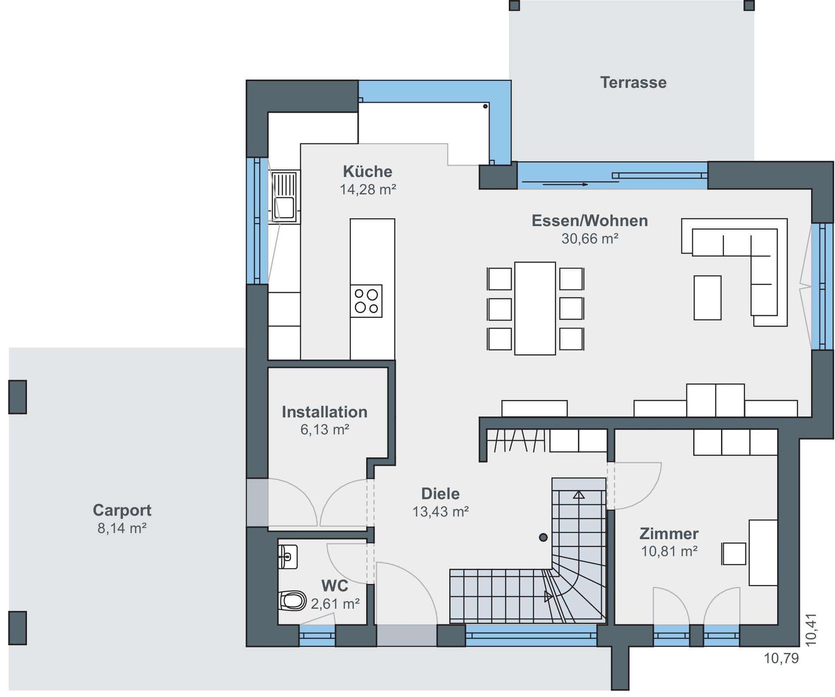
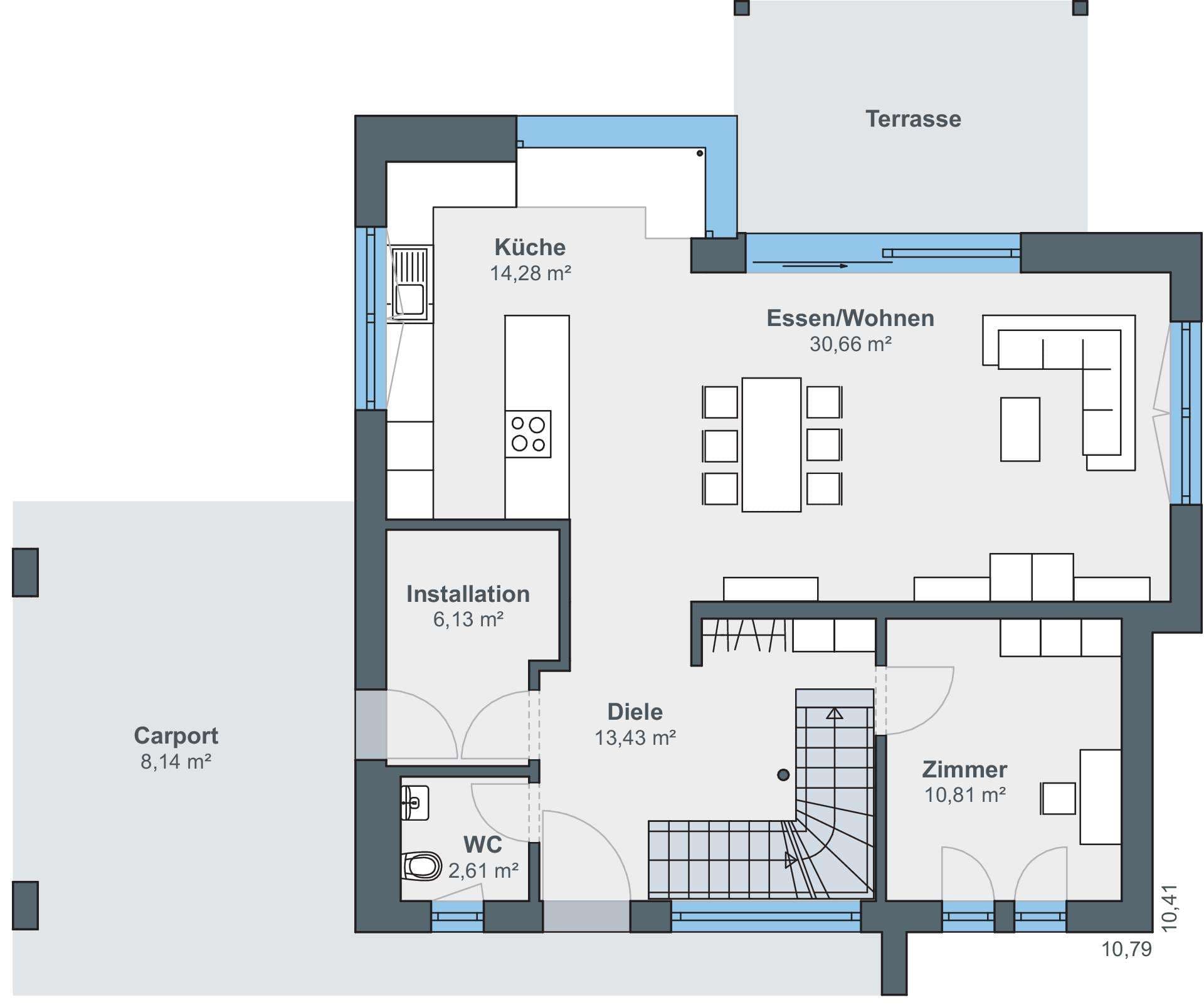
Musterhaus in Wenden Grundriss (EG)Wohnfläche EG: 77,92 m²
no description
Musterhaus in Wenden Grundriss (OG)Wohnfläche OG: 58,13 m²

Öffnungszeiten

Montag:07:00 - 15:00 Uhr
Dienstag:07:00 - 15:00 Uhr
Mittwoch:07:00 - 15:00 Uhr
Donnerstag:07:00 - 15:00 Uhr
Freitag:07:00 - 15:00 Uhr
Samstag:08:00 - 15:00 Uhr
Sonntag:08:00 - 15:00 Uhr

(öffnet Montag um 11:00 Uhr)

Adresse

Industriegebiet Rheinauerstr. 12
Wenden-Hünsborn 57482

Anfahrt planen

Beratungstermin

Fertighaus Team in Wenden-Hünsborn
House and TreeParksHouse and PinMusterhausHouse on HandAnbieter