1. AnbieterArrow Icon
  2. WeberHausArrow Icon
  3. Musterhaus in Rheinau-Linx
Slide 1
Location Icon
Slide 2
Location Icon
Slide 3
Location Icon
Slide 4
Location Icon
Slide 5
Location Icon
Slide 6
Location Icon
Slide 7
Location Icon
Logo WeberHaus
WeberHausMusterhaus in Rheinau-Linx
homeKubushäuser im Bauhausstil
livingArea202 m²
energyStandardEffizienzhaus 40 Plus
Preis anfragen

Musterhaus in Rheinau-Linx

Skulpturale Architektur im urbanen Trend

Lebensqualität und Komfort geben hier den Ton an, visuell umgesetzt in frischem, neuartigem Architektur-Design. Grenzenloses Raumgefühl entsteht durch gezielt gesetzte Geschosserhöhungen, innen verarbeitete Optiken in Schieferfarben und Betongrau, eine komplette Küchenwand in Tafellack. Dies alles unterstreicht den urbanen Loftcharakter des Hauses, das dennoch stets den Wohlfühlfaktor ins Zentrum rückt.

Hausdaten

Hausart Icon
HausartEinfamilienhaus
Bauweise Icon
BauweiseHolz-Tafelbau
Anzahl Räume Icon
Anzahl Räume10
Baustil Icon
BaustilKubushäuser im Bauhausstil
Außenmaße Icon
Außenmaße12.28 m x 12.72 m
Wohnfläche Icon
Wohnfläche202.21 m²
Dachform Icon
DachformPultdach
Etagen Icon
Etagen2
Energiestandard Icon
EnergiestandardEffizienzhaus 40 Plus
Immobilientyp Icon
ImmobilientypMusterhaus
Dachneigung Icon
Dachneigung10°
Kniestock Icon
Kniestock2.27 m
Mittlerer U-Wert Icon
Mittlerer U-Wert0.11 W/m²K
Hauseigenschaften Icon
HauseigenschaftenGästezimmer
Heizungsart Icon
HeizungsartWärmepumpe (Luft, Wasser, oder beides)
Pfeil nach unten linksWir schaffen Platz für Ihre Träume

Grundriss

no description
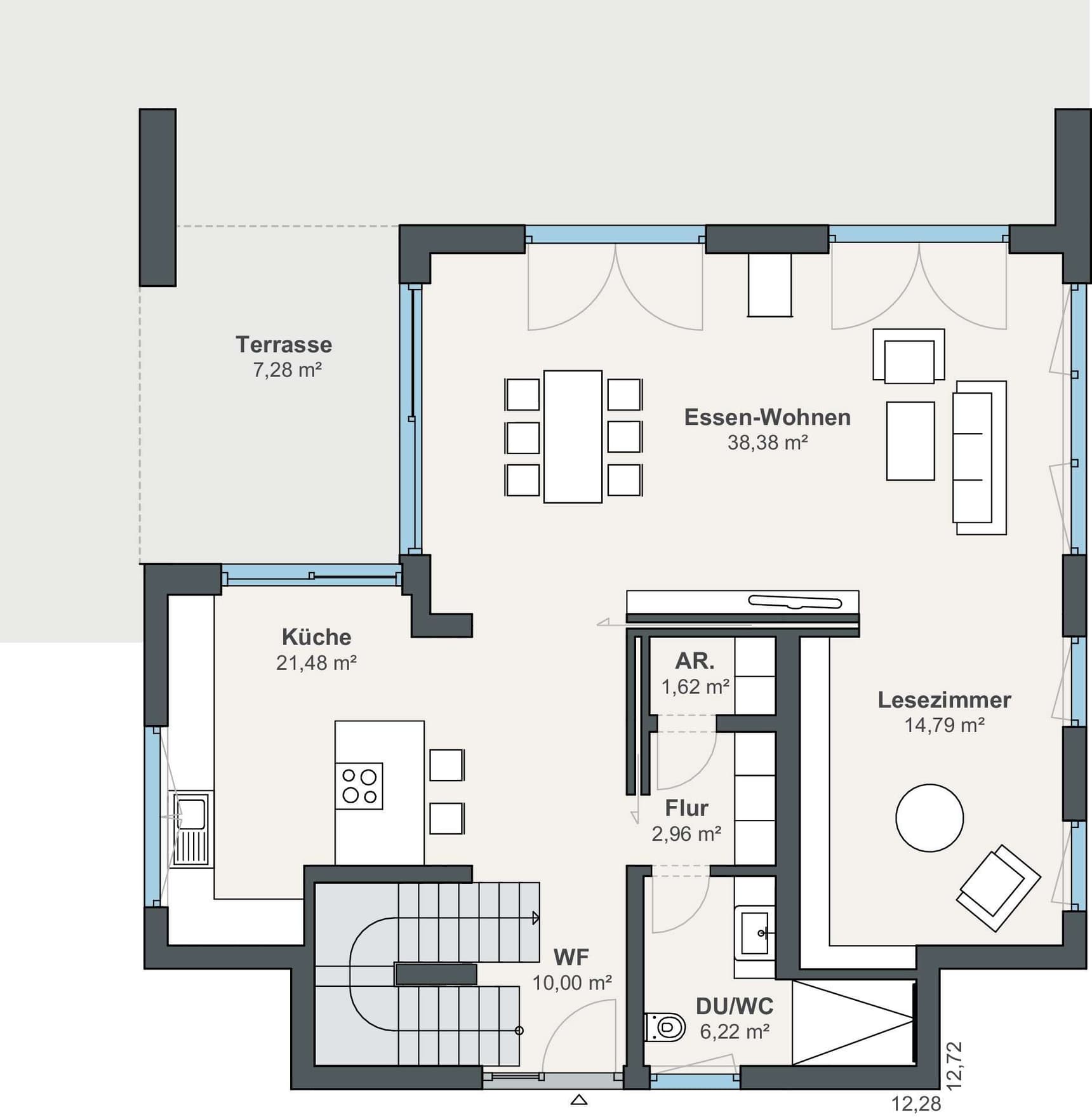
Musterhaus in Rheinau-Linx Grundriss (EG)Wohnfläche EG: 102,73 m²
no description
Musterhaus in Rheinau-Linx Grundriss (OG)Wohnfläche OG: 99,48 m²

Öffnungszeiten

Montag:Geschlossen
Dienstag:08:00 - 16:00 Uhr
Mittwoch:08:00 - 16:00 Uhr
Donnerstag:08:00 - 16:00 Uhr
Freitag:08:00 - 16:00 Uhr
Samstag:08:00 - 16:00 Uhr
Sonntag:08:00 - 16:00 Uhr

(öffnet Donnerstag um 12:00 Uhr)

Adresse

Am Erlenpark 1
Rheinau-Linx 77866

Anfahrt planen

Beratungstermin

Fertighaus Team in Rheinau-Linx
House and TreeParksHouse and PinMusterhausHouse on HandAnbieter