1. AnbieterArrow Icon
  2. WeberHausArrow Icon
  3. Musterhaus in Rheinau-Linx
Slide 1
Location Icon
Slide 2
Location Icon
Slide 3
Location Icon
Slide 4
Location Icon
Slide 5
Location Icon
Slide 6
Location Icon
Slide 7
Location Icon
Logo WeberHaus
WeberHausMusterhaus in Rheinau-Linx
homeKlassische Familienhäuser
livingArea151 m²
energyStandardPlusenergiehaus
Preis anfragen

Musterhaus in Rheinau-Linx

Energieeffizient und smart

Mit dem Ausstellungshaus generation5.5 in Rheinau-Linx präsentiert WeberHaus einen Energiegewinner – das Haus produziert mehr Energie als es verbraucht - und ein Smart Home. Im Frühjahr startete das Unternehmen außerdem ein Pilotprojekt mit Apple, um die Bedienung der Haus- und Heiztechnik noch smarter zu machen. Die Haussteuerung WeberLogic 2.0 wurde an die „Home“-App und das HomeKit von Apple angebunden. Beispielsweise ermöglicht die Innovation die Lichter, die Heizung oder die Rollläden bequem vom Sofa aus mit der App zu steuern. Trotz der architektonischen Ausrichtung auf Energiegewinnung und Technik müssen Bauherren nicht auf Ästhetik und Wohnkomfort verzichten. Dafür sorgen eine moderne Innenarchitektur und Highlights wie zum Beispiel ein großzügiges Wellnessbad mit Sauna sowie die ansprechende Außenfassade. Willkommen in der Zukunft!
 

Hausdaten

Hausart Icon
HausartEinfamilienhaus
Bauweise Icon
BauweiseHolz-Tafelbau
Anzahl Räume Icon
Anzahl Räume8
Baustil Icon
BaustilKlassische Familienhäuser
Fassade Icon
FassadePutz
Außenmaße Icon
Außenmaße9.23 m x 11.44 m
Wohnfläche Icon
Wohnfläche150.84 m²
Dachform Icon
DachformVersetztes Pultdach
Etagen Icon
Etagen1.5
Energiestandard Icon
EnergiestandardPlusenergiehaus
Immobilientyp Icon
ImmobilientypMusterhaus
Dachneigung Icon
Dachneigung38°
Kniestock Icon
Kniestock1.5 m
Mittlerer U-Wert Icon
Mittlerer U-Wert0.11 W/m²K
Hauseigenschaften Icon
HauseigenschaftenGästezimmer
Hausdämmstoff Icon
HausdämmstoffMineralfaser (Glaswolle, Steinwolle)
Heizungsart Icon
HeizungsartWärmepumpe (Luft, Wasser, oder beides)
Pfeil nach unten linksWir schaffen Platz für Ihre Träume

Grundriss

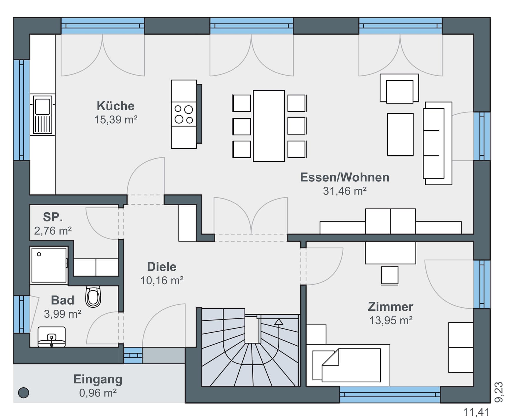
no description
Musterhaus in Rheinau-Linx Grundriss (EG)Wohnfläche EG: 77,9 m²
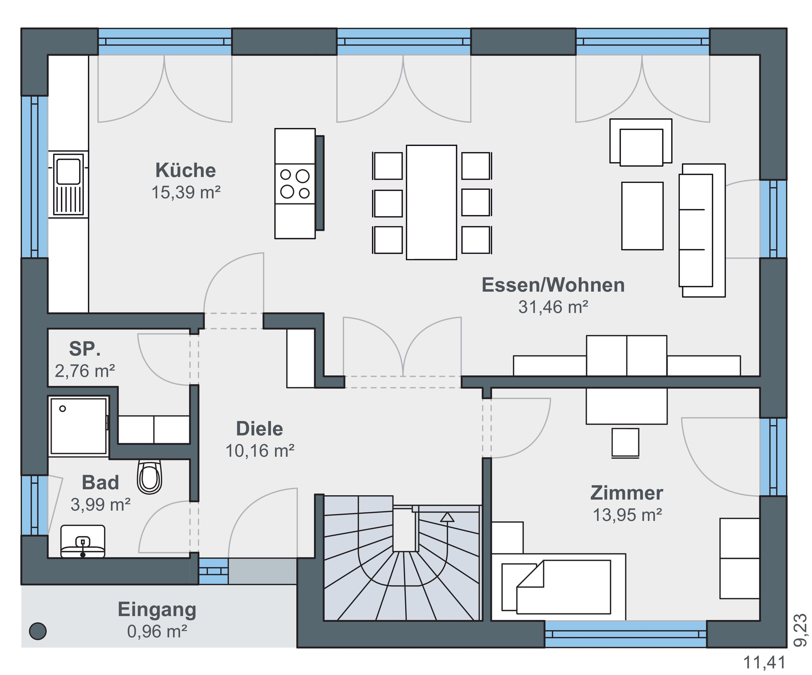
no description
Musterhaus in Rheinau-Linx Grundriss (OG)

Öffnungszeiten

Montag:Geschlossen
Dienstag:08:00 - 16:00 Uhr
Mittwoch:08:00 - 16:00 Uhr
Donnerstag:08:00 - 16:00 Uhr
Freitag:08:00 - 16:00 Uhr
Samstag:08:00 - 16:00 Uhr
Sonntag:08:00 - 16:00 Uhr

(öffnet Dienstag um 12:00 Uhr)

Adresse

Am Erlenpark 1
Rheinau 77866

Anfahrt planen

Beratungstermin

Fertighaus Team in Rheinau
House and TreeParksHouse and PinMusterhausHouse on HandAnbieter