1. AnbieterArrow Icon
  2. WeberHausArrow Icon
  3. Musterhaus in Rheinau-Linx
Slide 1
Location Icon
Slide 2
Location Icon
Slide 3
Location Icon
Slide 4
Location Icon
Slide 5
Location Icon
Logo WeberHaus
WeberHausMusterhaus in Rheinau-Linx
homeKubushäuser im Bauhausstil
livingArea182 m²
energyStandardPassivhaus
Preis anfragen

Musterhaus in Rheinau-Linx

Energieeffizienz und Design perfekt vereint

Bei diesem Hausentwurf handelt es sich um ein Passivhaus der WeberHaus-Baureihe CityLife. Das Ausstellungshaus steht in der World of Living und ist der Beweis dafür, dass Design und Energieeffizienz einander nicht ausschließen. Basis für das Passivhaus ist die ökologische Gebäudehülle ÖvoNatur Therm, die durch eine innovative Haustechnik und ein modernes Haus-Management-System ergänzt wird. Attika und Flachdach verleihen dem Stadthaus einen stilvollen Bauhaus-Charakter. Beide Vollgeschosse bestechen mit lichtdurchfluteter Architektur und versprechen über 180 Quadratmeter Wohnvergnügen.

Dieses Haus wurde bereits mehrfach ausgezeichnet, jüngst im Jahr 2015 für „Exzellente Nachhaltigkeit“ vom Bundesministerium (BMUB) und als „wohnmedizinisch empfohlen“ vom Privatinstitut für Innenraumtoxikologie.

Hausdaten

Hausart Icon
HausartEinfamilienhaus
Bauweise Icon
BauweiseHolz-Tafelbau
Anzahl Räume Icon
Anzahl Räume9
Baustil Icon
BaustilKubushäuser im Bauhausstil
Fassade Icon
FassadePutz
Außenmaße Icon
Außenmaße11 m x 9.2 m
Wohnfläche Icon
Wohnfläche181.95 m²
Dachform Icon
DachformFlachdach
Etagen Icon
Etagen2
Energiestandard Icon
EnergiestandardPassivhaus
Immobilientyp Icon
ImmobilientypMusterhaus
Mittlerer U-Wert Icon
Mittlerer U-Wert0.11 W/m²K
Heizungsart Icon
HeizungsartLüftungsheizung
Pfeil nach unten linksWir schaffen Platz für Ihre Träume

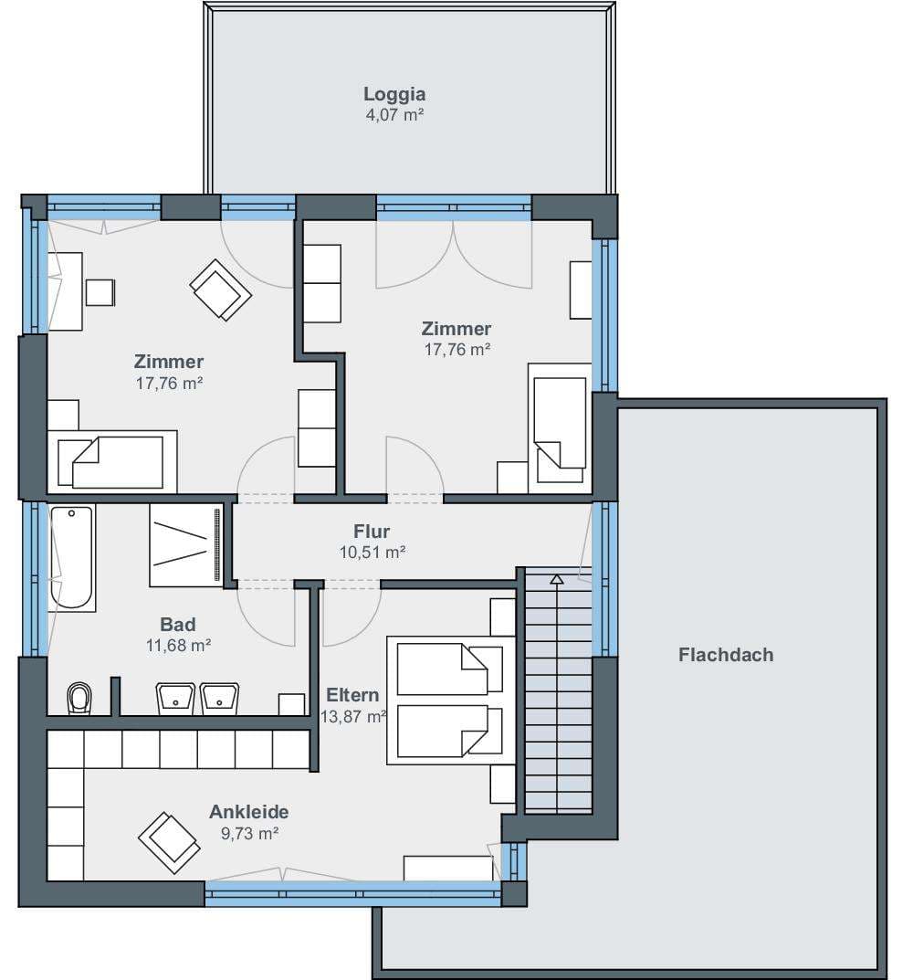
Grundriss

no description
Musterhaus in Rheinau-Linx Grundriss (EG)Wohnfläche EG: 96,57 m²
no description
Musterhaus in Rheinau-Linx Grundriss (OG)Wohnfläche OG: 85,38 m²

Öffnungszeiten

Montag:Geschlossen
Dienstag:08:00 - 16:00 Uhr
Mittwoch:08:00 - 16:00 Uhr
Donnerstag:08:00 - 16:00 Uhr
Freitag:08:00 - 16:00 Uhr
Samstag:08:00 - 16:00 Uhr
Sonntag:08:00 - 16:00 Uhr

(schließt heute 16:00 Uhr)

Adresse

Am Erlenpark 1
Rheinau-Linx 77866

Anfahrt planen

Beratungstermin

Fertighaus Team in Rheinau-Linx
House and TreeParksHouse and PinMusterhausHouse on HandAnbieter