1. AnbieterArrow Icon
  2. WeberHausArrow Icon
  3. Musterhaus in Schliengen
Slide 1
Location Icon
Slide 2
Location Icon
Slide 3
Location Icon
Slide 4
Location Icon
Slide 5
Location Icon
Slide 6
Location Icon
Slide 7
Location Icon
Slide 8
Location Icon
Slide 9
Location Icon
Slide 10
Location Icon
Logo WeberHaus
WeberHausMusterhaus in Schliengen
homeKlassische Familienhäuser
livingArea148 m²
energyStandardEffizienzhaus 55
Preis anfragen

Musterhaus in Schliengen

Modernes Doppelhaus

Modern, zeitlos und elegant präsentiert sich dieses Doppelhaus mit zwei Vollgeschossen. Das Satteldach verfügt über einen modernen Dachüberstand und bietet ausreichend Platz für eine Photovoltaik-Anlage. Die linke Doppelhaushälfte verwaltet Büroräume vom WeberHaus Bauforum in Schliengen und kann somit besichtigt werden. Die Haushälfte umfasst rund 150 Quadratmeter Wohnfläche. Der Erker links neben dem Hauseingang bietet in diesem Fall Platz für ein geräumiges Arbeitszimmer.

Hausdaten

Hausart Icon
HausartDoppelhaus
Bauweise Icon
BauweiseHolz-Tafelbau
Anzahl Räume Icon
Anzahl Räume7
Baustil Icon
BaustilKlassische Familienhäuser
Fassade Icon
FassadePutz
Außenmaße Icon
Außenmaße9.14 m x 13.89 m
Wohnfläche Icon
Wohnfläche148 m²
Dachform Icon
DachformSattel-/Giebeldach
Etagen Icon
Etagen2
Energiestandard Icon
EnergiestandardEffizienzhaus 55
Immobilientyp Icon
ImmobilientypMusterhaus
Mittlerer U-Wert Icon
Mittlerer U-Wert0.11 W/m²K
Hauseigenschaften Icon
HauseigenschaftenTerasse
Heizungsart Icon
HeizungsartWärmepumpe (Luft, Wasser, oder beides)
Pfeil nach unten linksWir schaffen Platz für Ihre Träume

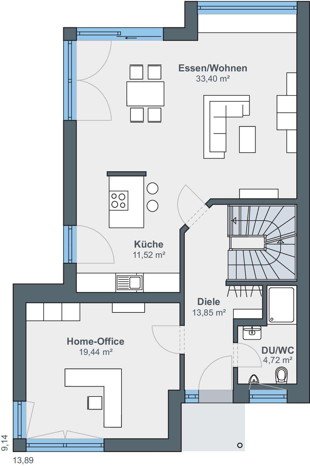
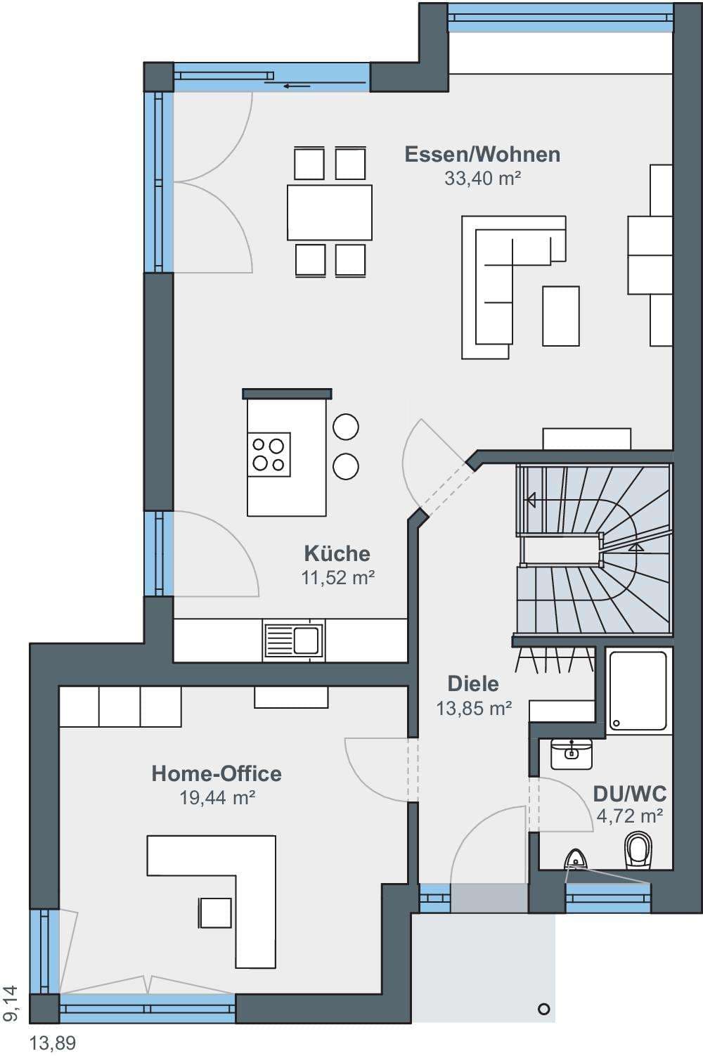
Grundriss

no description
Musterhaus in Schliengen Grundriss (EG)
no description
Musterhaus in Schliengen Grundriss (OG)

Öffnungszeiten

Montag:09:00 - 16:00 Uhr
Dienstag:09:00 - 16:00 Uhr
Mittwoch:09:00 - 16:00 Uhr
Donnerstag:09:00 - 16:00 Uhr
Freitag:09:00 - 16:00 Uhr
Samstag:11:00 - 14:00 Uhr
Sonntag:11:00 - 14:00 Uhr

(öffnet Donnerstag um 13:00 Uhr)

Adresse

Freiburger Straße 13/4
Schliengen 79418

Anfahrt planen

Beratungstermin

Fertighaus Team in Schliengen
House and TreeParksHouse and PinMusterhausHouse on HandAnbieter