1. AnbieterArrow Icon
  2. WeberHausArrow Icon
  3. Musterhaus in Fellbach
Slide 1
Location Icon
Slide 2
Location Icon
Slide 3
Location Icon
Slide 4
Location Icon
Slide 5
Location Icon
Slide 6
Location Icon
Slide 7
Location Icon
Slide 8
Location Icon
Logo WeberHaus
WeberHausMusterhaus in Fellbach
homeStadtvillen
livingArea219 m²
energyStandardEffizienzhaus 40 Plus
Preis anfragen

Musterhaus in Fellbach

Eine Stadtvilla zum Verlieben

Dieses Einfamilienhaus im Fellbacher Musterhauspark vereint Gegensätze – außen gerade Linien, kubische Formen und kühle Farben, innen gemütliche Wohnbereiche, heimelige Atmosphäre und warme Holzelemente. Neben diesem modernen und doch behaglichen Erscheinungsbild überzeugt das Musterhaus in Fellbach zudem durch maximale Energieeffizienz und intelligente Haussteuerung.

Hausdaten

Hausart Icon
HausartEinfamilienhaus
Bauweise Icon
BauweiseHolz-Tafelbau
Anzahl Räume Icon
Anzahl Räume9
Baustil Icon
BaustilStadtvillen
Fassade Icon
FassadePutz
Außenmaße Icon
Außenmaße15.61 m x 10.76 m
Wohnfläche Icon
Wohnfläche219 m²
Dachform Icon
DachformWalm-/Zeltdach
Etagen Icon
Etagen2
Energiestandard Icon
EnergiestandardEffizienzhaus 40 Plus
Immobilientyp Icon
ImmobilientypMusterhaus
Dachneigung Icon
Dachneigung16°
Mittlerer U-Wert Icon
Mittlerer U-Wert0.11 W/m²K
Hauseigenschaften Icon
HauseigenschaftenGästezimmer
Hausdämmstoff Icon
HausdämmstoffMineralfaser (Glaswolle, Steinwolle)
Heizungsart Icon
HeizungsartWärmepumpe (Luft, Wasser, oder beides)
Pfeil nach unten linksWir schaffen Platz für Ihre Träume

Grundriss

no description
Musterhaus in Fellbach Grundriss (EG)Wohnfläche EG: 123 m²
no description
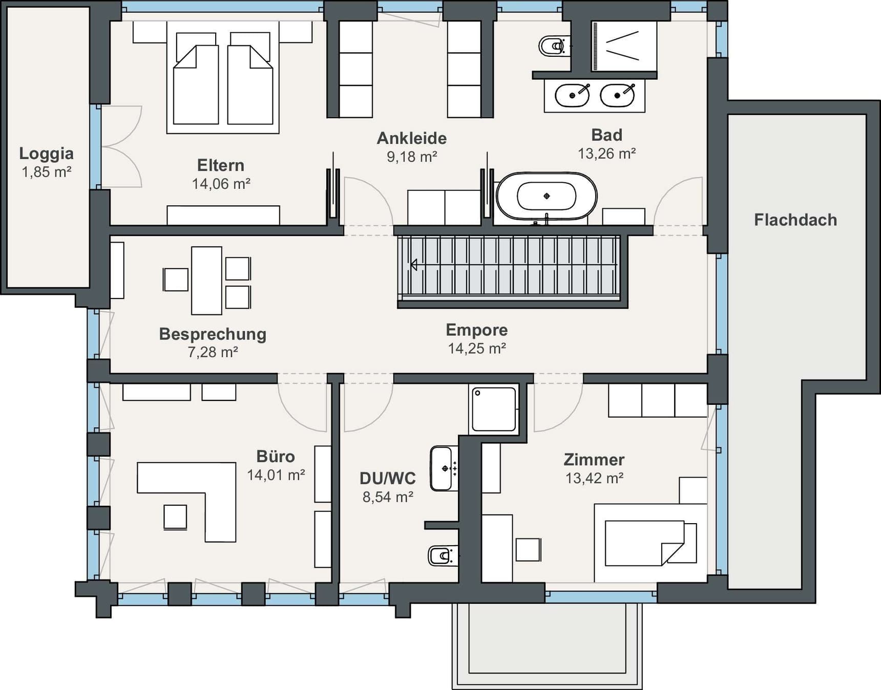
Musterhaus in Fellbach Grundriss (OG)Wohnfläche OG: 96 m²

Öffnungszeiten

Montag:Geschlossen
Dienstag:09:00 - 16:00 Uhr
Mittwoch:09:00 - 16:00 Uhr
Donnerstag:09:00 - 16:00 Uhr
Freitag:09:00 - 16:00 Uhr
Samstag:09:00 - 16:00 Uhr
Sonntag:09:00 - 16:00 Uhr

(öffnet Sonntag um 13:00 Uhr)

Adresse

Höhenstraße 21
Fellbach 70736

Anfahrt planen

Beratungstermin

Fertighaus Team in Fellbach
House and TreeParksHouse and PinMusterhausHouse on HandAnbieter