1. AnbieterArrow Icon
  2. WeberHausArrow Icon
  3. Musterhaus in Fellbach
Slide 1
Location Icon
Slide 2
Location Icon
Slide 3
Location Icon
Slide 4
Location Icon
Slide 5
Location Icon
Slide 6
Location Icon
Logo WeberHaus
WeberHausMusterhaus in Fellbach
homeKlassische Familienhäuser
livingArea181 m²
energyStandardEffizienzhaus 40 Plus
Preis anfragen

Musterhaus in Fellbach

Energiesparhaus mit viel Platz für die Familie

Ob Architektur, Platzangebot oder energetische Ausstattung – das neue Ausstellungshaus punktet in allen Bereichen. @So verfügt das Einfamilienhaus, das in der Ausstellung „Eigenheim & Garten“ in Fellbach zu besichtigen ist, dank seiner zweifarbigen Außengestaltung nicht nur über eine moderne und stilvolle Optik. Es bietet aufgrund seiner mehr als 180 Quadratmeter Wohnfläche auch jede Menge Platz für die ganze Familie. Energetisch ist das neue Ausstellungshaus auf dem neuesten Stand. Unter anderem sorgt die hochdämmende Außenwand ÖvoNatur-Therm dafür, dass die Wärmeverluste auf Passivhaus-Niveau nahezu reduziert werden.

Hausdaten

Hausart Icon
HausartEinfamilienhaus
Bauweise Icon
BauweiseHolz-Tafelbau
Anzahl Räume Icon
Anzahl Räume10
Baustil Icon
BaustilKlassische Familienhäuser
Fassade Icon
FassadePutz
Außenmaße Icon
Außenmaße9.78 m x 12.28 m
Wohnfläche Icon
Wohnfläche181.27 m²
Dachform Icon
DachformSattel-/Giebeldach
Etagen Icon
Etagen1.5
Energiestandard Icon
EnergiestandardEffizienzhaus 40 Plus
Immobilientyp Icon
ImmobilientypMusterhaus
Dachneigung Icon
Dachneigung38°
Kniestock Icon
Kniestock1.2 m
Mittlerer U-Wert Icon
Mittlerer U-Wert0.11 W/m²K
Hauseigenschaften Icon
HauseigenschaftenTerasse
Hausdämmstoff Icon
HausdämmstoffMineralfaser (Glaswolle, Steinwolle)
Heizungsart Icon
HeizungsartLüftungsheizung
Pfeil nach unten linksWir schaffen Platz für Ihre Träume

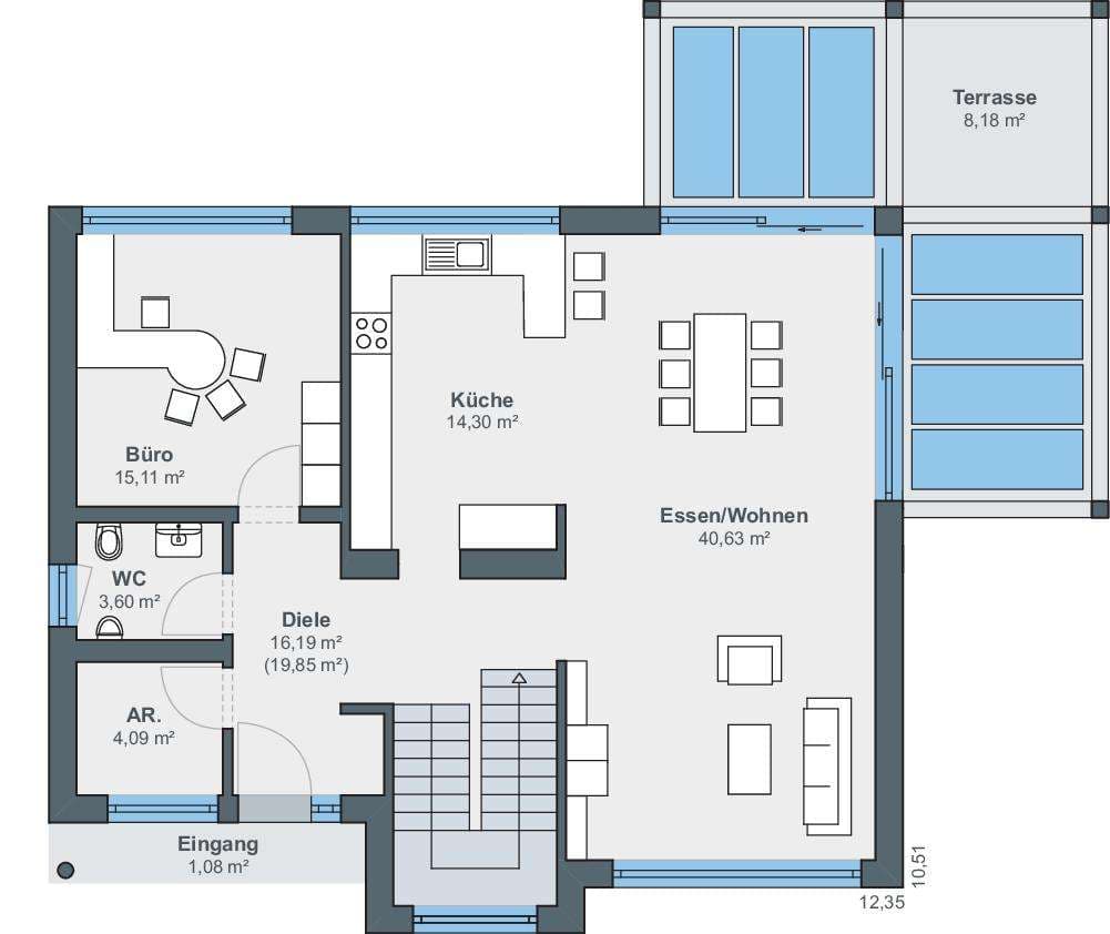
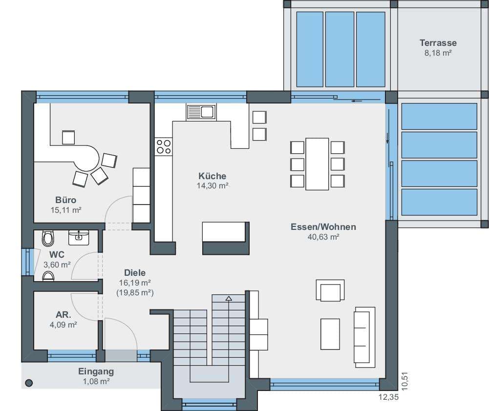
Grundriss

no description
Musterhaus in Fellbach Grundriss (EG)Wohnfläche EG: 95,54 m²
no description
Musterhaus in Fellbach Grundriss (OG)Wohnfläche OG: 85,73 m²

Öffnungszeiten

Montag:Geschlossen
Dienstag:09:00 - 16:00 Uhr
Mittwoch:09:00 - 16:00 Uhr
Donnerstag:09:00 - 16:00 Uhr
Freitag:09:00 - 16:00 Uhr
Samstag:09:00 - 16:00 Uhr
Sonntag:09:00 - 16:00 Uhr

(öffnet Dienstag um 13:00 Uhr)

Adresse

Höhenstraße 21
Fellbach 70736

Anfahrt planen

Beratungstermin

Fertighaus Team in Fellbach
House and TreeParksHouse and PinHäuser liveHouse on HandAnbieter