1. AnbieterArrow Icon
  2. WeberHausArrow Icon
  3. Musterhaus in Bad Vilbel
Slide 1
Location Icon
Slide 2
Location Icon
Slide 3
Location Icon
Slide 4
Location Icon
Slide 5
Location Icon
Logo WeberHaus
WeberHausMusterhaus in Bad Vilbel
homeKlassische Familienhäuser
livingArea233 m²
energyStandardEffizienzhaus 40 Plus
Preis anfragen

Musterhaus in Bad Vilbel

Villa mit Aussicht

Das WeberHaus-Ausstellungshaus in Bad Vilbel bei Frankfurt hat mit seinem großzügigen, quadratischen Grundriss, den ausladenden Dachüberhängen und dem breiten Eingangsbereich alles, was man von einer Villa erwartet hat. Zeitgemäß ist die schnörkellose Fassade mit den eleganten Keramik-Granit-Verkleidungen am Dachgeschoss. Ein Werkstoff übrigens, der sich im komplett gefliesten Erdgeschoss wieder findet. Das Haus bietet mit 266 m² Wohnfläche mehr als genug Platz für eine vierköpfige Familie. Da ist an allen Komfort gedacht. Drei Bäder, ein kleines Duschbad im Erdgeschoss, ein größeres Duschbad für die Kinder im Obergeschoss und ein großes Bad neben dem Elternschlafzimmer, stellen sicher, dass hier niemand beim allmorgendlichen Start in den Tag genervt vor einer verschlossenen Badtür warten muss.
 

Hausdaten

Hausart Icon
HausartEinfamilienhaus
Bauweise Icon
BauweiseHolz-Tafelbau
Anzahl Räume Icon
Anzahl Räume9
Baustil Icon
BaustilKlassische Familienhäuser
Außenmaße Icon
Außenmaße1310 m x 1310 m
Wohnfläche Icon
Wohnfläche233.3 m²
Dachform Icon
DachformWalm-/Zeltdach
Etagen Icon
Etagen2
Energiestandard Icon
EnergiestandardEffizienzhaus 40 Plus
Immobilientyp Icon
ImmobilientypMusterhaus
Dachneigung Icon
Dachneigung22°
Mittlerer U-Wert Icon
Mittlerer U-Wert0.11 W/m²K
Hauseigenschaften Icon
HauseigenschaftenGästezimmer
Hausdämmstoff Icon
HausdämmstoffMineralfaser (Glaswolle, Steinwolle)
Heizungsart Icon
HeizungsartWärmepumpe (Luft, Wasser, oder beides)
Pfeil nach unten linksWir schaffen Platz für Ihre Träume

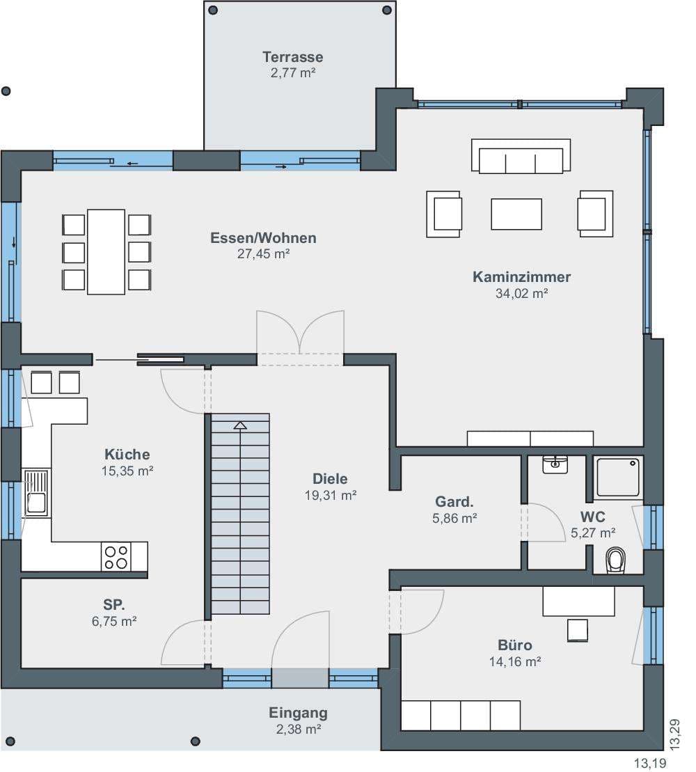
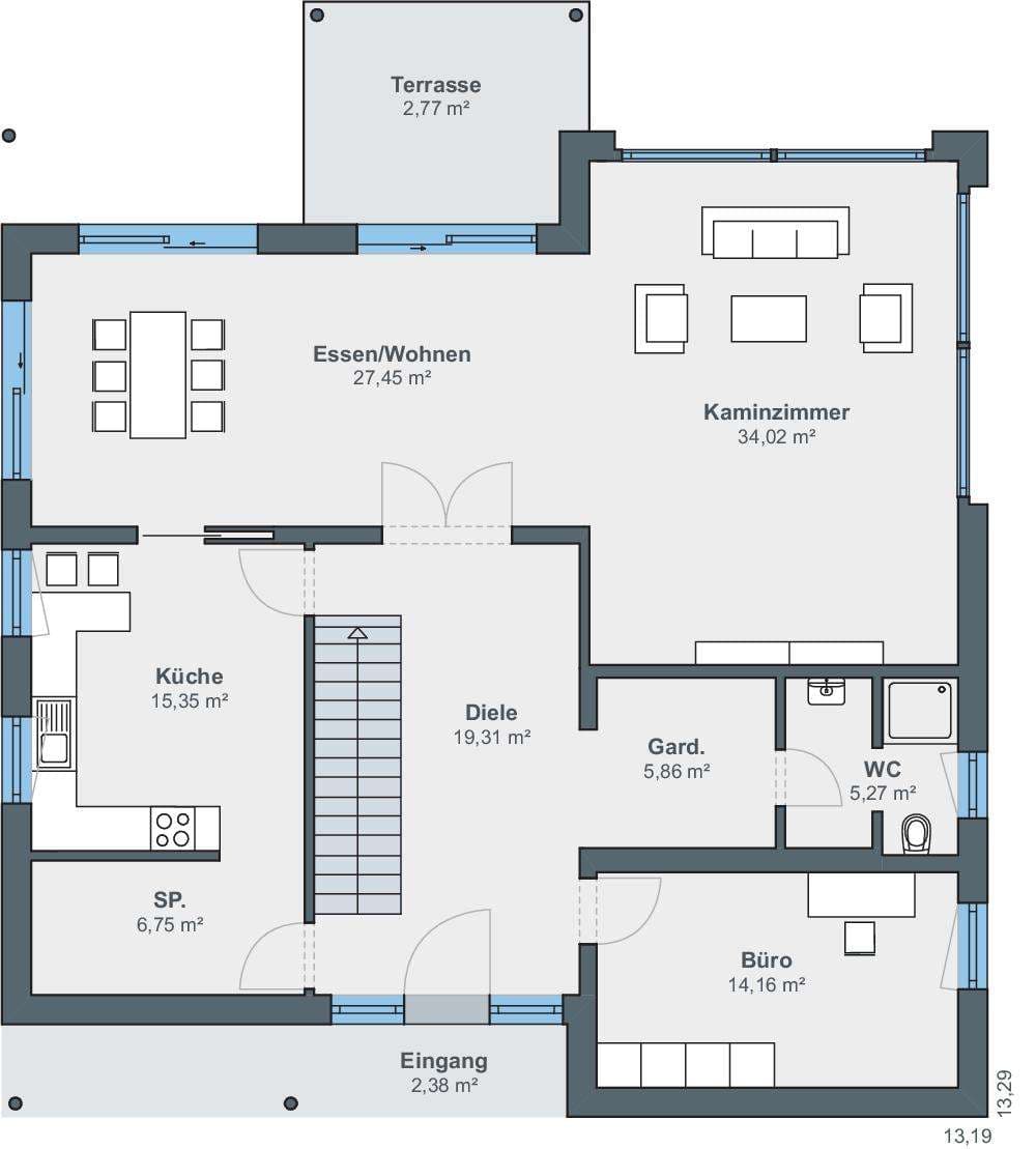
Grundriss

no description
Musterhaus in Bad Vilbel Grundriss (EG)Wohnfläche EG: 132 m²
no description
Musterhaus in Bad Vilbel Grundriss (OG)Wohnfläche OG: 101,3 m²

Öffnungszeiten

Montag:09:00 - 16:00 Uhr
Dienstag:09:00 - 16:00 Uhr
Mittwoch:09:00 - 16:00 Uhr
Donnerstag:09:00 - 16:00 Uhr
Freitag:09:00 - 16:00 Uhr
Samstag:09:00 - 16:00 Uhr
Sonntag:09:00 - 16:00 Uhr

(schließt heute 16:00 Uhr)

Adresse

Ludwig-Erhard-Straße 70
Bad Vilbel 61118

Anfahrt planen

Beratungstermin

Fertighaus Team in Bad Vilbel
House and TreeParksHouse and PinMusterhausHouse on HandAnbieter