1. AnbieterArrow Icon
  2. WeberHausArrow Icon
  3. Musterhaus in Bad Vilbel
Slide 1
Location Icon
Slide 2
Location Icon
Slide 3
Location Icon
Slide 4
Location Icon
Slide 5
Location Icon
Slide 6
Location Icon
Logo WeberHaus
WeberHausMusterhaus in Bad Vilbel
homeKlassische Familienhäuser
livingArea156 m²
energyStandardEffizienzhaus 40 Plus
Preis anfragen

Musterhaus in Bad Vilbel

Freiräume für Individualisten

Unter dem versetzen Pultdach dieses schicken Ausstellungshauses in Bad Vilbel verbergen sich zwei geräumige Geschosse mit mehr als 156 Quadratmetern Wohnfläche. Eine großzügige und clevere Raumaufteilung lässt pures Wohnvergnügen entstehen – hier ist genügend Platz für eine mehrköpfige Familie oder ein freiheitsliebendes Paar. Auch von macht das moderne Haus eine gute Figur: Dezente Grautöne und ein Bordeaux-Rot außen sorgen an der sonst weißen Fassade für farbige Akzente.
 

Hausdaten

Hausart Icon
HausartEinfamilienhaus
Bauweise Icon
BauweiseHolz-Tafelbau
Anzahl Räume Icon
Anzahl Räume9
Baustil Icon
BaustilKlassische Familienhäuser
Fassade Icon
FassadePutz
Außenmaße Icon
Außenmaße9.04 m x 11.22 m
Wohnfläche Icon
Wohnfläche156.4 m²
Dachform Icon
DachformVersetztes Pultdach
Etagen Icon
Etagen1.5
Energiestandard Icon
EnergiestandardEffizienzhaus 40 Plus
Immobilientyp Icon
ImmobilientypMusterhaus
Dachneigung Icon
Dachneigung38°
Kniestock Icon
Kniestock1.5 m
Mittlerer U-Wert Icon
Mittlerer U-Wert0.11 W/m²K
Hauseigenschaften Icon
HauseigenschaftenGästezimmer
Hausdämmstoff Icon
HausdämmstoffMineralfaser (Glaswolle, Steinwolle)
Heizungsart Icon
HeizungsartWärmepumpe (Luft, Wasser, oder beides)
Pfeil nach unten linksWir schaffen Platz für Ihre Träume

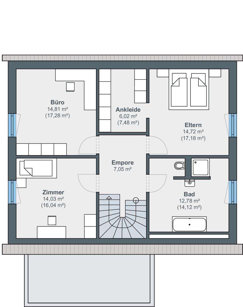
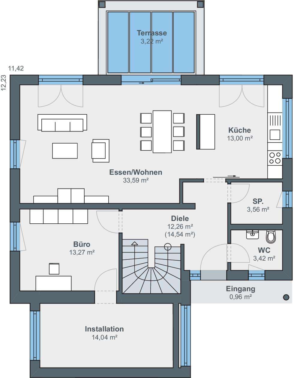
Grundriss

no description
Musterhaus in Bad Vilbel Grundriss (EG)Wohnfläche EG: 82,25 m²
no description
Musterhaus in Bad Vilbel Grundriss (OG)Wohnfläche OG: 74,15 m²

Öffnungszeiten

Montag:09:00 - 16:00 Uhr
Dienstag:09:00 - 16:00 Uhr
Mittwoch:09:00 - 16:00 Uhr
Donnerstag:09:00 - 16:00 Uhr
Freitag:09:00 - 16:00 Uhr
Samstag:09:00 - 16:00 Uhr
Sonntag:09:00 - 16:00 Uhr

(öffnet Freitag um 13:00 Uhr)

Adresse

Ludwig-Erhard-Straße 70
Bad Vilbel 61118

Anfahrt planen

Beratungstermin

Fertighaus Team in Bad Vilbel
House and TreeParksHouse and PinMusterhausHouse on HandAnbieter