1. AnbieterArrow Icon
  2. WeberHausArrow Icon
  3. Klassisch mit dem gewissen Extra
Slide 1
Slide 2
Slide 3
Slide 4
Slide 5
Logo WeberHaus
WeberHausKlassisch mit dem gewissen Extra
homeKlassische Familienhäuser
livingArea179 m²
energyStandardEffizienzhaus 40 Plus
Preis anfragen
Katalog bestellen

Klassisch mit dem gewissen Extra

Dieses harmonische Einfamilienhaus mit Satteldach verfügt über rund 180 Quadratmeter Wohnfläche plus Keller. Auf den ersten Blick kommt es recht schlicht daher. Schaut man jedoch genauer hin entdeckt man kleine Besonderheiten: Edles Anthrazitgrau markiert den Einschnitt im Hauseingangsbereich. Schmale, waagrecht übereinander angeordnete Fenster lassen die Treppe im Innern erahnen und eine überstehende Dachgaube in Grau erweitert das Dachgeschoss.

Hier geht's zur Homestory der begeisterten Hausbesitzer

Hausdaten

Hausart Icon
HausartEinfamilienhaus
Bauweise Icon
BauweiseHolz-Tafelbau
Baustil Icon
BaustilKlassische Familienhäuser
Fassade Icon
FassadePutz
Außenmaße Icon
Außenmaße12.35 m x 9.85 m
Wohnfläche Icon
Wohnfläche179 m²
Dachform Icon
DachformSattel-/Giebeldach
Etagen Icon
Etagen1.5
Energiestandard Icon
EnergiestandardEffizienzhaus 40 Plus
Immobilientyp Icon
ImmobilientypKundenhaus
Dachneigung Icon
Dachneigung38°
Kniestock Icon
Kniestock1.2 m
Mittlerer U-Wert Icon
Mittlerer U-Wert0.11 W/m²K
Hauseigenschaften Icon
HauseigenschaftenTerasse
Hausdämmstoff Icon
HausdämmstoffMineralfaser (Glaswolle, Steinwolle)
Heizungsart Icon
HeizungsartWärmepumpe (Luft, Wasser, oder beides)
Pfeil nach unten linksWir schaffen Platz für Ihre Träume

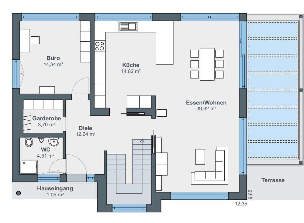
Grundriss

no description
Klassisch mit dem gewissen Extra Grundriss (EG)Wohnfläche EG: 96 m²
no description
Klassisch mit dem gewissen Extra Grundriss (DG)Wohnfläche DG: 83 m²

Kataloge

WeberHaus: OPTION
WeberHaus

WeberHaus: OPTION


WeberHaus: Objektbau Katalog
WeberHaus

WeberHaus: Objektbau Katalog


WeberHaus: Hauskatalog
WeberHaus

WeberHaus: Hauskatalog


House and TreeParksHouse and PinMusterhausHouse on HandAnbieter