1. AnbieterArrow Icon
  2. WeberHausArrow Icon
  3. Ultra modernes Haus am Hang
Slide 1
Slide 2
Slide 3
Slide 4
Slide 5
Slide 6
Logo WeberHaus
WeberHausUltra modernes Haus am Hang
homeVillen
livingArea160 m²
energyStandardEffizienzhaus 40 Plus
Preis anfragen
Katalog bestellen

Ultra modernes Haus am Hang

Auf einem Traumareal mit Blick auf den Rhein stehen diese zwei versetzten Wohnwürfel. Imposant erheben sie sich über eine kleine, Schweizer Ortschaft. Die erste Ebene liegt komplett im Erdreich und dient als Tiefgarage. Von hier aus gelangt man durch zwei separate Eingänge in den jeweiligen Kubus. Das zum Teil in den Hang gebaute Architektenhaus öffnet sich mit großen Fensterfronten zum Fluss, während sich die Rückseite zurückhaltend zeigt. Der Vorsprung des oberen Geschosses bildet die Überdachung für die Terrasse. Die Außenfassade mit senkrechter Holzverschalung in Grau ist schlicht gehalten.

Hier geht's zur Bauherrengeschichte

Hausdaten

Hausart Icon
HausartDoppelhaus
Bauweise Icon
BauweiseHolz-Tafelbau
Anzahl Räume Icon
Anzahl Räume5
Baustil Icon
BaustilVillen
Fassade Icon
FassadeHolz, Materialkombination
Außenmaße Icon
Außenmaße10.46 m x 9.54 m
Wohnfläche Icon
Wohnfläche160 m²
Dachform Icon
DachformFlachdach
Etagen Icon
Etagen2
Energiestandard Icon
EnergiestandardEffizienzhaus 40 Plus
Immobilientyp Icon
ImmobilientypKundenhaus
Dachneigung Icon
Dachneigung
Kniestock Icon
Kniestock295 m
Mittlerer U-Wert Icon
Mittlerer U-Wert0.11 W/m²K
Hauseigenschaften Icon
HauseigenschaftenViel Glas, Terasse
Hausdämmstoff Icon
HausdämmstoffMineralfaser (Glaswolle, Steinwolle)
Heizungsart Icon
HeizungsartWärmepumpe (Luft, Wasser, oder beides)
Pfeil nach unten linksWir schaffen Platz für Ihre Träume

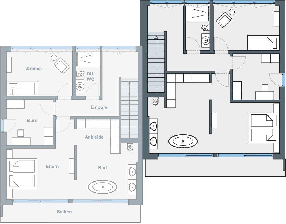
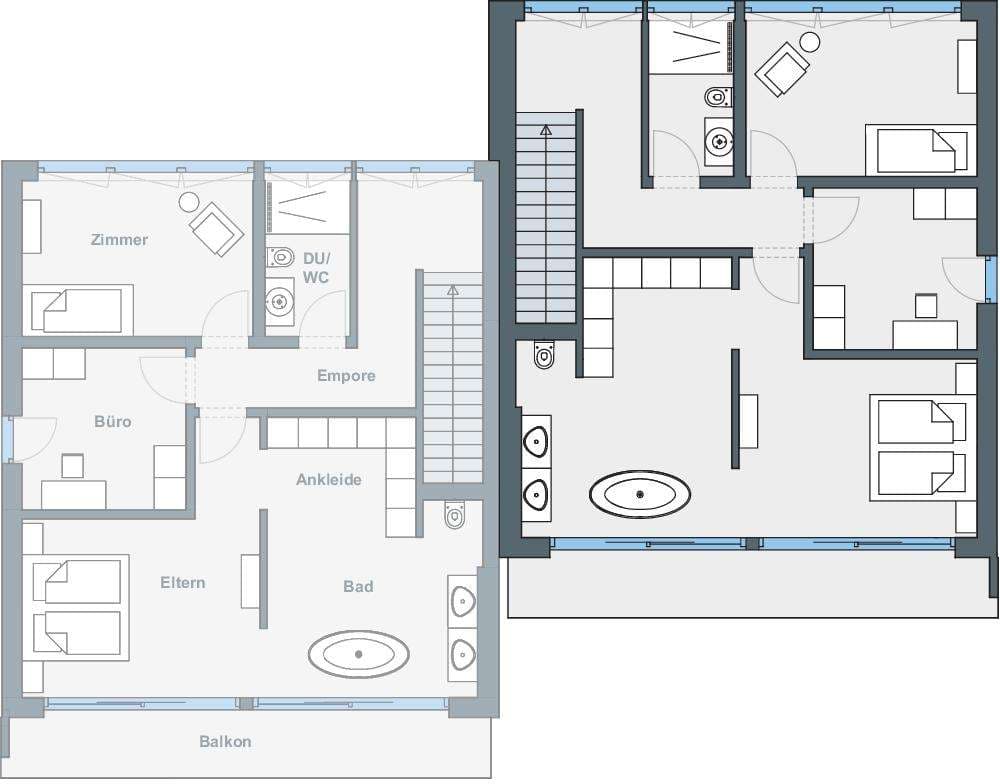
Grundriss

no description
Ultra modernes Haus am Hang Grundriss (EG)
no description
Ultra modernes Haus am Hang Grundriss (OG)

Kataloge

WeberHaus: OPTION
WeberHaus

WeberHaus: OPTION


WeberHaus: Objektbau Katalog
WeberHaus

WeberHaus: Objektbau Katalog


WeberHaus: Hauskatalog
WeberHaus

WeberHaus: Hauskatalog


House and TreeParksHouse and PinMusterhausHouse on HandAnbieter