1. AnbieterArrow Icon
  2. WeberHausArrow Icon
  3. Hier sind Besucher jederzeit willkommen 
Slide 1
Slide 2
Slide 3
Slide 4
Logo WeberHaus
WeberHausHier sind Besucher jederzeit willkommen 
homeKlassische Familienhäuser
livingArea175 m²
energyStandardEffizienzhaus 40 Plus
Preis anfragen
Katalog bestellen

Hier sind Besucher jederzeit willkommen 

Während unten im Ofen die Lasagne schmort, findet oben im Büro die Telefonkonferenz statt. Und die Kinder? Spielen auf der großen Terrasse mit ihren Freunden. Im Haus 300 findet jeder den Freiraum, den er braucht. Um danach im großzügigen Wohn- und Esszimmer wieder zusammenzukommen. Im Erdgeschoss hat das Extrazimmer direkten Zugang zum Duschbad. Ideal für Gäste oder Senioren. Oben reihen sich neben vier Zimmern ein großes und ein kleines Bad rund um die helle Empore.

Hausdaten

Hausart Icon
HausartEinfamilienhaus
Bauweise Icon
BauweiseHolz-Tafelbau
Anzahl Räume Icon
Anzahl Räume7
Baustil Icon
BaustilKlassische Familienhäuser
Fassade Icon
FassadePutz
Außenmaße Icon
Außenmaße9.85 m x 12.35 m
Wohnfläche Icon
Wohnfläche175.21 m²
Dachform Icon
DachformVersetztes Pultdach
Etagen Icon
Etagen1.5
Energiestandard Icon
EnergiestandardEffizienzhaus 40 Plus
Immobilientyp Icon
ImmobilientypPlanungsidee
Dachneigung Icon
Dachneigung38°
Kniestock Icon
Kniestock1.5 m
Mittlerer U-Wert Icon
Mittlerer U-Wert0.11 W/m²K
Hauseigenschaften Icon
HauseigenschaftenGästezimmer
Hausdämmstoff Icon
HausdämmstoffMineralfaser (Glaswolle, Steinwolle)
Heizungsart Icon
HeizungsartWärmepumpe (Luft, Wasser, oder beides)
Pfeil nach unten linksWir schaffen Platz für Ihre Träume

Grundriss

no description
Hier sind Besucher jederzeit willkommen  Grundriss (EG)Wohnfläche EG: 91,38 m²
no description
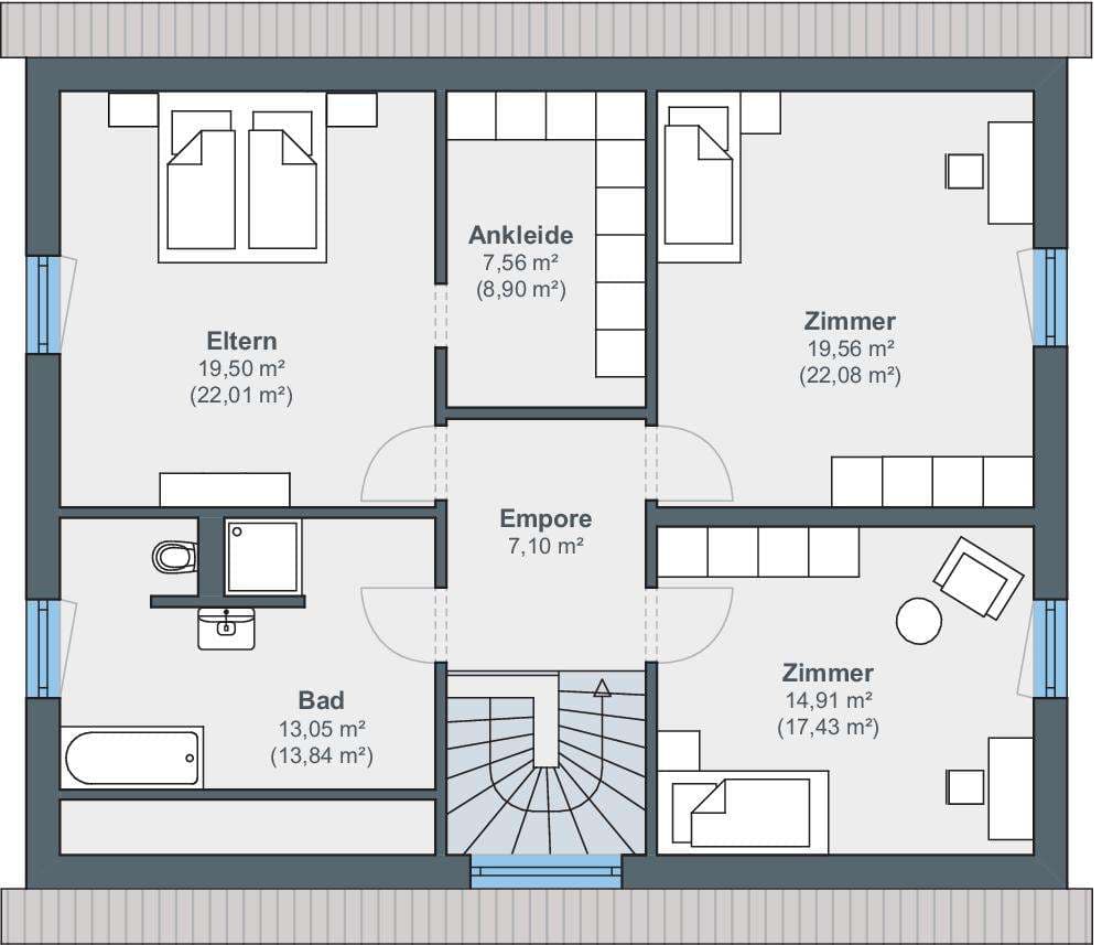
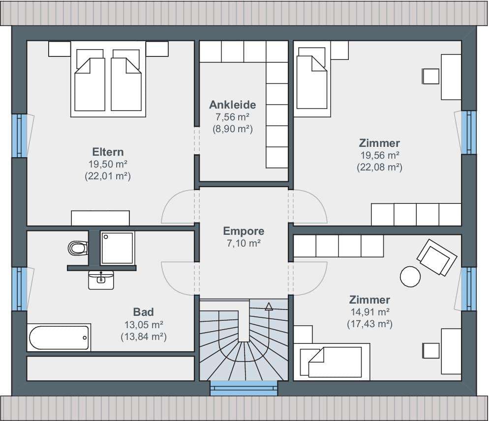
Hier sind Besucher jederzeit willkommen  Grundriss (DG)Wohnfläche DG: 83,83 m²

Kataloge

WeberHaus: OPTION
WeberHaus

WeberHaus: OPTION


WeberHaus: Objektbau Katalog
WeberHaus

WeberHaus: Objektbau Katalog


WeberHaus: Hauskatalog
WeberHaus

WeberHaus: Hauskatalog


House and TreeParksHouse and PinMusterhausHouse on HandAnbieter