1. AnbieterArrow Icon
  2. WeberHausArrow Icon
  3. Nach den individuellen Wünschen der Bauherren
Slide 1
Slide 2
Slide 3
Slide 4
Slide 5
Slide 6
Slide 7
Slide 8
Logo WeberHaus
WeberHausNach den individuellen Wünschen der Bauherren
homeStadtvillen
livingArea156 m²
energyStandardEffizienzhaus 40 Plus
Preis anfragen
Katalog bestellen

Nach den individuellen Wünschen der Bauherren

Bei diesem Bauherrenpaar war das CityLife in der World of Living in Rheinau-Linx der alles entscheidende Anlass, endlich zu bauen, nachdem zuerst über zehn Jahre lang Hauskataloge gewälzt worden waren. Eine Stadtvilla mit quadratischem Grundriss und cleverer Raumaufteilung – genauso sollte es sein, nur eben ganz individuell den Vorstellungen des Paares angepasst. 

Hausdaten

Hausart Icon
HausartEinfamilienhaus
Bauweise Icon
BauweiseHolz-Tafelbau
Anzahl Räume Icon
Anzahl Räume6
Baustil Icon
BaustilStadtvillen
Fassade Icon
FassadePutz
Außenmaße Icon
Außenmaße10.88 m x 9.08 m
Wohnfläche Icon
Wohnfläche156.1 m²
Dachform Icon
DachformWalm-/Zeltdach
Etagen Icon
Etagen2
Energiestandard Icon
EnergiestandardEffizienzhaus 40 Plus
Immobilientyp Icon
ImmobilientypKundenhaus
Dachneigung Icon
Dachneigung16°
Mittlerer U-Wert Icon
Mittlerer U-Wert0.11 W/m²K
Hauseigenschaften Icon
HauseigenschaftenGästezimmer
Hausdämmstoff Icon
HausdämmstoffMineralfaser (Glaswolle, Steinwolle)
Heizungsart Icon
HeizungsartWärmepumpe (Luft, Wasser, oder beides)
Pfeil nach unten linksWir schaffen Platz für Ihre Träume

Grundriss

no description
Nach den individuellen Wünschen der Bauherren Grundriss (EG)Wohnfläche EG: 79 m²
no description
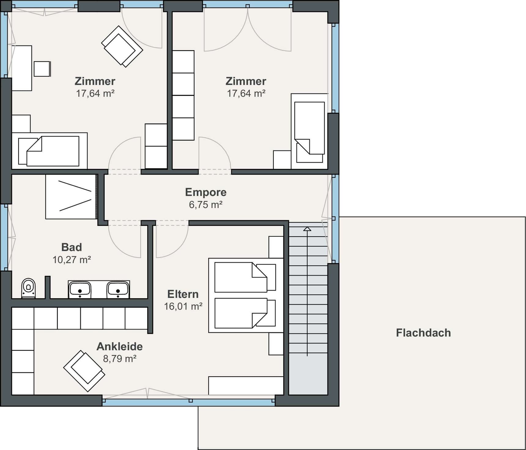
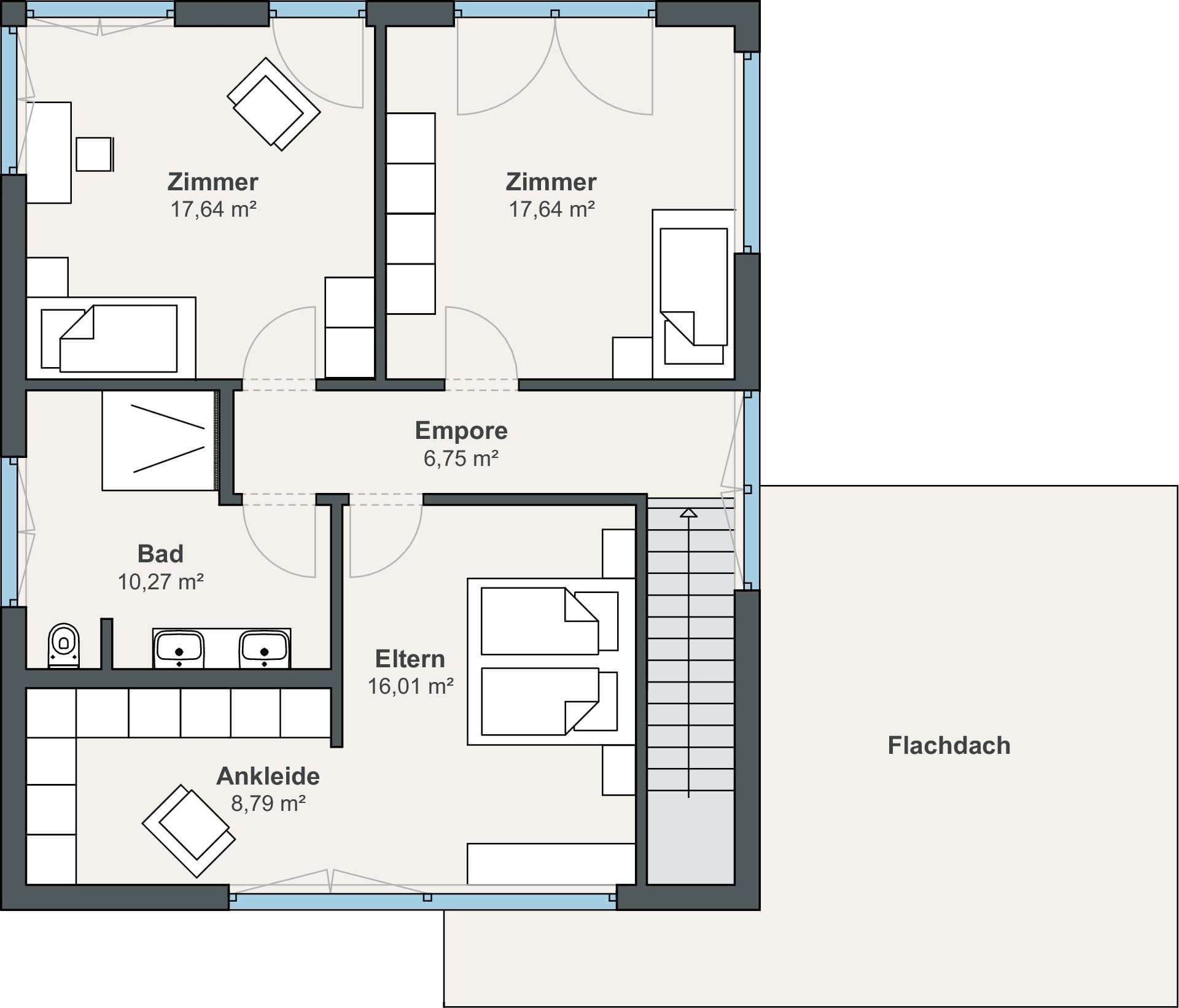
Nach den individuellen Wünschen der Bauherren Grundriss (OG)Wohnfläche OG: 77,1 m²

Kataloge

WeberHaus: OPTION
WeberHaus

WeberHaus: OPTION


WeberHaus: Objektbau Katalog
WeberHaus

WeberHaus: Objektbau Katalog


WeberHaus: Hauskatalog
WeberHaus

WeberHaus: Hauskatalog


House and TreeParksHouse and PinMusterhausHouse on HandAnbieter