1. AnbieterArrow Icon
  2. WeberHausArrow Icon
  3. Stadtvilla nach individueller Planung
Slide 1
Slide 2
Slide 3
Slide 4
Slide 5
Slide 6
Slide 7
Logo WeberHaus
WeberHausStadtvilla nach individueller Planung
homeStadtvillen
livingArea181 m²
energyStandardEffizienzhaus 40 Plus
Preis anfragen
Katalog bestellen

Stadtvilla nach individueller Planung

Bei dieser Stadtvilla handelt es sich um ein frei geplantes Architektenhaus mit Walmdach. Das elegante Einfamilienhaus strahlt eine gewisse Symmetrie und Geradlinigkeit aus. Durch die gleichen großen Fenster wirkt das Haus einheitlich, wie aus einem Guss. Die Farbgestaltung wird von einem schicken Hell-Dunkel-Kontrast bestimmt. Stilvoll setzen sich die anthrazitfarbenen Fensterrahmen von der strahlend weißen Putzfassade ab. Der dritte Giebel mit Satteldach erweitert die Wohnfläche und ermöglicht ein Empore.

Hausdaten

Hausart Icon
HausartEinfamilienhaus
Bauweise Icon
BauweiseHolz-Tafelbau
Baustil Icon
BaustilStadtvillen
Fassade Icon
FassadePutz
Außenmaße Icon
Außenmaße10.87 m x 12.12 m
Wohnfläche Icon
Wohnfläche180.54 m²
Dachform Icon
DachformWalm-/Zeltdach
Etagen Icon
Etagen2
Energiestandard Icon
EnergiestandardEffizienzhaus 40 Plus
Immobilientyp Icon
ImmobilientypKundenhaus
Dachneigung Icon
Dachneigung25°
Mittlerer U-Wert Icon
Mittlerer U-Wert0.11 W/m²K
Hauseigenschaften Icon
HauseigenschaftenGästezimmer
Hausdämmstoff Icon
HausdämmstoffMineralfaser (Glaswolle, Steinwolle)
Heizungsart Icon
HeizungsartWärmepumpe (Luft, Wasser, oder beides)
Pfeil nach unten linksWir schaffen Platz für Ihre Träume

Grundriss

no description
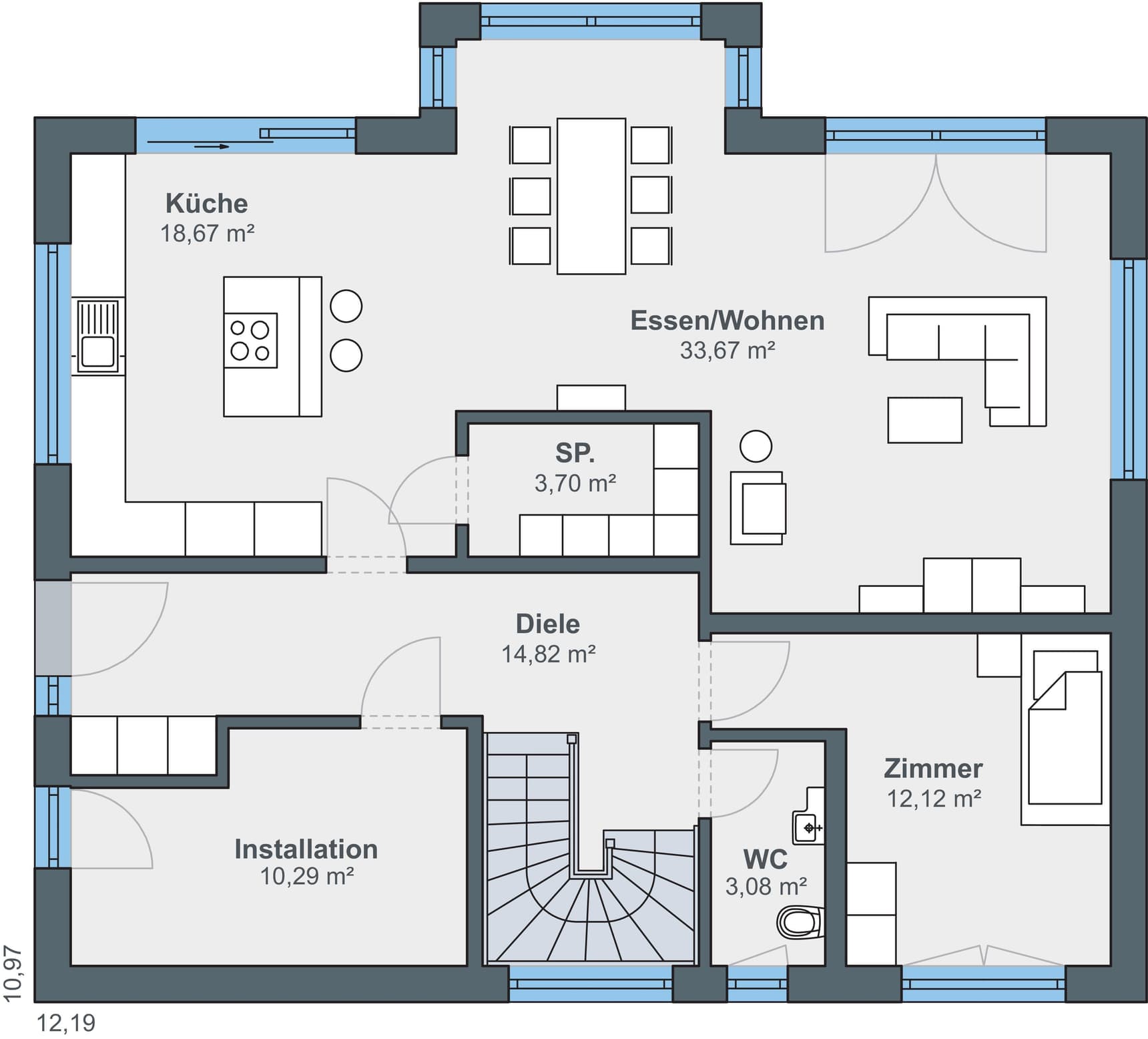
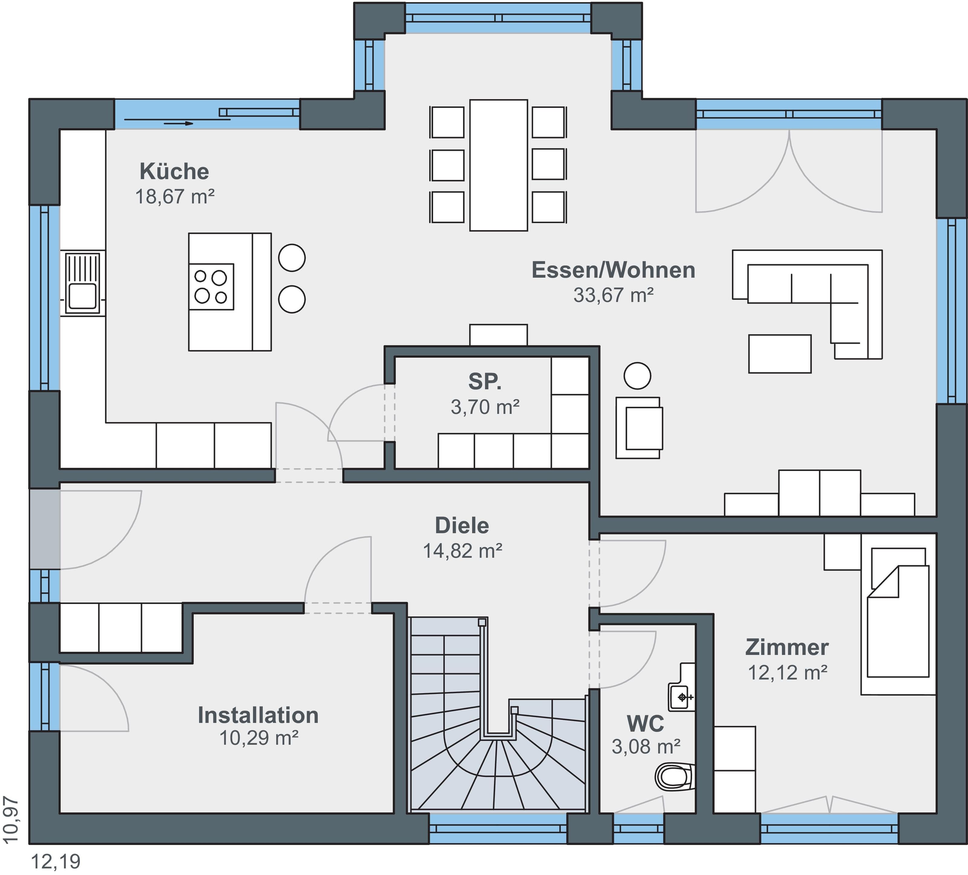
Stadtvilla nach individueller Planung Grundriss (EG)Wohnfläche EG: 96,35 m²
no description
Stadtvilla nach individueller Planung Grundriss (OG)Wohnfläche OG: 84,19 m²

Kataloge

WeberHaus: OPTION
WeberHaus

WeberHaus: OPTION


WeberHaus: Objektbau Katalog
WeberHaus

WeberHaus: Objektbau Katalog


WeberHaus: Hauskatalog
WeberHaus

WeberHaus: Hauskatalog


House and TreeParksHouse and PinMusterhausHouse on HandAnbieter