1. AnbieterArrow Icon
  2. WeberHausArrow Icon
  3. Gemeinsam Wohnen in der dritten Lebensphase
Slide 1
Slide 2
Slide 3
Slide 4
Slide 5
Slide 6
Logo WeberHaus
WeberHausGemeinsam Wohnen in der dritten Lebensphase
livingArea511 m²
Preis anfragen
Katalog bestellen

Gemeinsam Wohnen in der dritten Lebensphase

Endlich alle unter einem Dach

Gemeinsam wohnen in der dritten Lebensphase, das wollten die Initiatorinnen von WIGWAM („Wohnen In Gemeinschaft Wertschätzend Achtsam Miteinander“) verwirklichen. @Schon seit 2005 stand die Idee im Raum, dieses Projekt zum Leben zu erwecken. Nach unzähligen Hürden, vor allem bürokratischer und finanzieller Natur, ist die Baugemeinschaft nun endlich am Ziel. Gemeinsam mit WeberHaus als Baupartner war das möglich, was zuvor an Architekten, Baugrund oder Altbauten gescheitert war. Die gemeinsamen Vorstellungen von allen konnten in diesem Haus mit einer Vier-Personen-Wohngemeinschaft und sieben Singlewohnungen umgesetzt werden. Alle Wohnungen und der gemeinschaftliche Raum sind barrierefrei, zwei Personen im Rollstuhl wohnen auch in dem Haus.
Hier möchte niemand ins Pflegeheim, gerne darf aber beizeiten eine Pflegekraft in die dafür vorgesehene Wohnung ziehen. Es wurde eben an alles gedacht!

Hier geht's zur Bauherrengeschichte

Hausdaten

Hausart Icon
HausartMehrfamilienhaus
Bauweise Icon
BauweiseHolz-Tafelbau
Fassade Icon
FassadePutz
Außenmaße Icon
Außenmaße11.15 m x 29.85 m
Wohnfläche Icon
Wohnfläche511 m²
Dachform Icon
DachformPultdach
Etagen Icon
Etagen2
Immobilientyp Icon
ImmobilientypKundenhaus
Dachneigung Icon
Dachneigung
Kniestock Icon
Kniestock243 m
Mittlerer U-Wert Icon
Mittlerer U-Wert0.11 W/m²K
Hauseigenschaften Icon
HauseigenschaftenTerasse
Hausdämmstoff Icon
HausdämmstoffMineralfaser (Glaswolle, Steinwolle)
Heizungsart Icon
HeizungsartGas-Brennwertheizung
Pfeil nach unten linksWir schaffen Platz für Ihre Träume

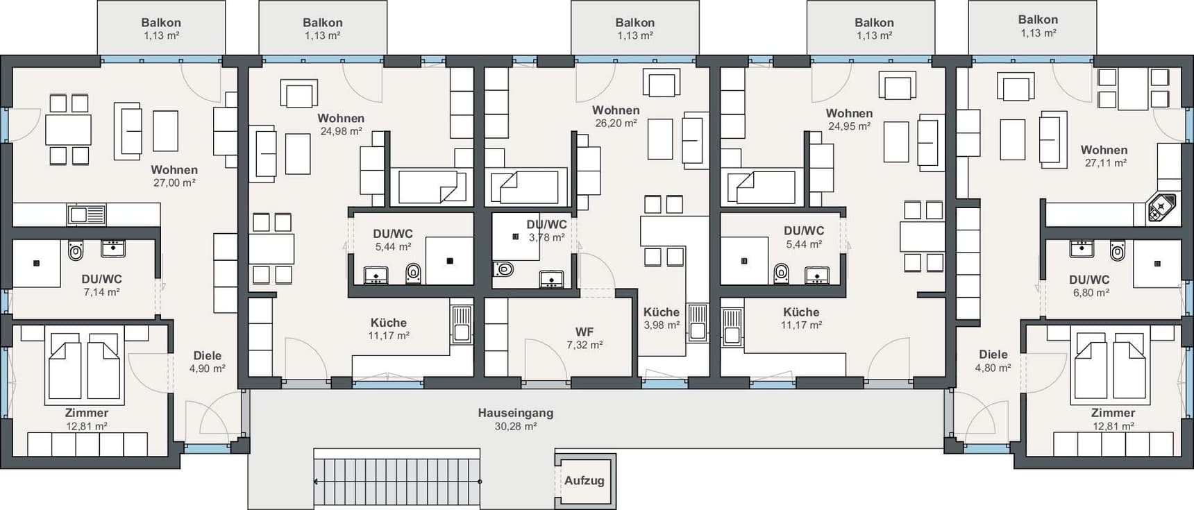
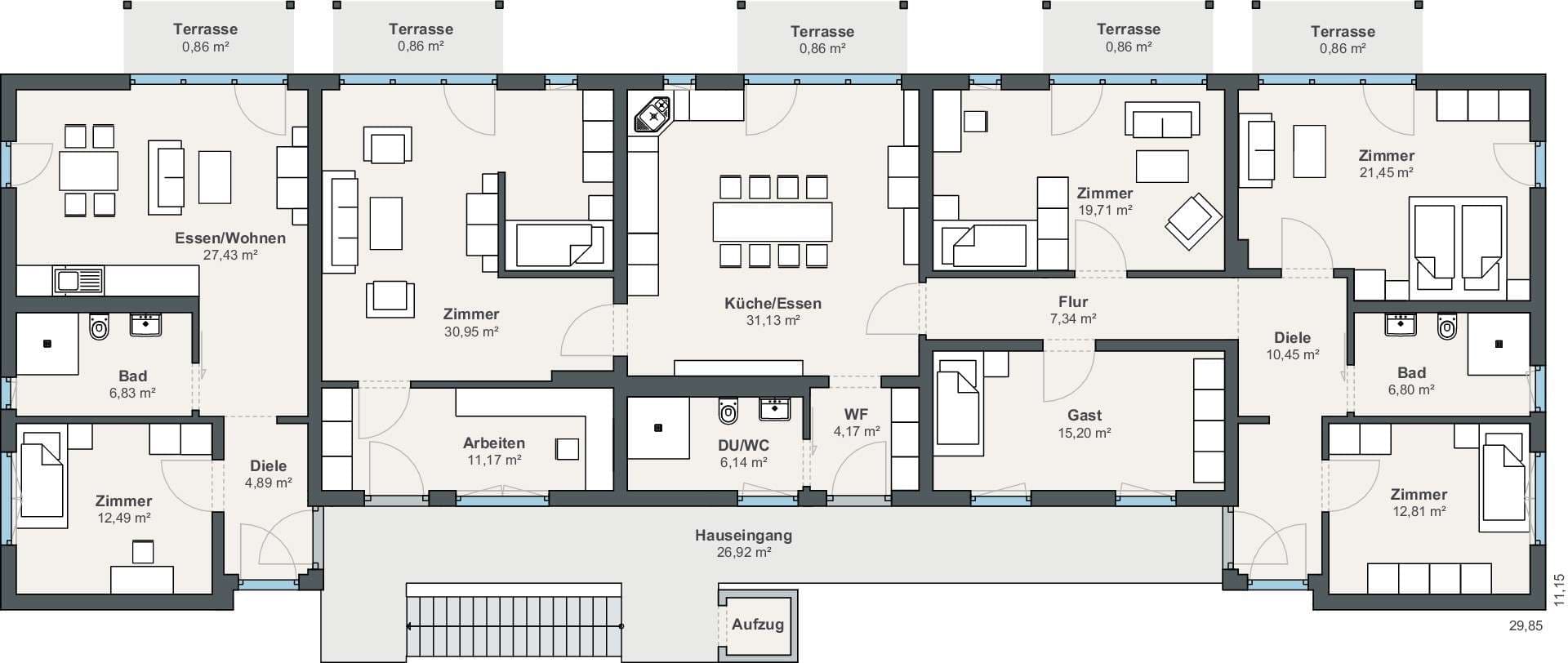
Grundriss

no description
Gemeinsam Wohnen in der dritten Lebensphase Grundriss (EG)
no description
Gemeinsam Wohnen in der dritten Lebensphase Grundriss (OG)

Kataloge

WeberHaus: OPTION
WeberHaus

WeberHaus: OPTION


WeberHaus: Objektbau Katalog
WeberHaus

WeberHaus: Objektbau Katalog


WeberHaus: Hauskatalog
WeberHaus

WeberHaus: Hauskatalog


House and TreeParksHouse and PinMusterhausHouse on HandAnbieter