1. AnbieterArrow Icon
  2. WeberHausArrow Icon
  3. Mehrgenerationenhaus mit Café
Slide 1
Slide 2
Slide 3
Slide 4
Slide 5
Slide 6
Slide 7
Slide 8
Slide 9
Slide 10
Slide 11
Slide 12
Logo WeberHaus
WeberHausMehrgenerationenhaus mit Café
homeLandhäuser
livingArea470 m²
energyStandardEffizienzhaus 55
Preis anfragen
Katalog bestellen

Mehrgenerationenhaus mit Café

Dieses dreigeschossige Gebäude verwaltet neben zwei Wohnungen und Büroräumen ein Café und Deko-Geschäft. Im Keller befindet sich die Backstube. Per Lastaufzug werden die Backwaren in das Erdgeschoss transportiert. Von besitzt das Haus dank den Säulen, der Fassadengestaltung und dem zurückgesetzten Obergeschoss mit außen Walmdach ein mediterranes Flair. Hohe Decken, im Erdgeschoss sogar 3,30 Meter hoch, lassen alles hell und offen erscheinen.

Hausdaten

Bauweise Icon
BauweiseHolz-Tafelbau
Anzahl Räume Icon
Anzahl Räume24
Baustil Icon
BaustilLandhäuser
Fassade Icon
FassadePutz
Außenmaße Icon
Außenmaße14.39 m x 18.2 m
Wohnfläche Icon
Wohnfläche470 m²
Dachform Icon
DachformWalm-/Zeltdach
Etagen Icon
Etagen3
Energiestandard Icon
EnergiestandardEffizienzhaus 55
Immobilientyp Icon
ImmobilientypKundenhaus
Dachneigung Icon
Dachneigung22°
Kniestock Icon
Kniestock2.3 m
Mittlerer U-Wert Icon
Mittlerer U-Wert0.11 W/m²K
Hauseigenschaften Icon
HauseigenschaftenGästezimmer
Heizungsart Icon
HeizungsartGas-Brennwertheizung
Pfeil nach unten linksWir schaffen Platz für Ihre Träume

Grundriss

no description
Mehrgenerationenhaus mit Café Grundriss (Keller)
no description
Mehrgenerationenhaus mit Café Grundriss (EG)Wohnfläche EG: 195 m²
no description
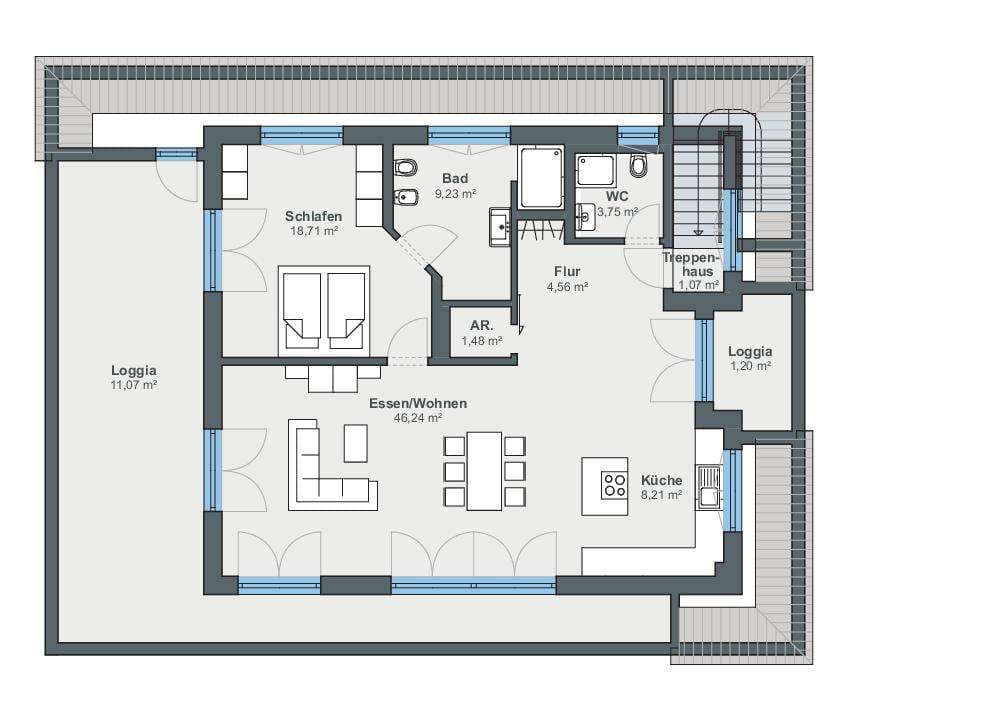
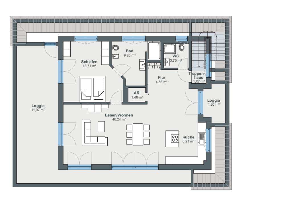
Mehrgenerationenhaus mit Café Grundriss (OG)Wohnfläche OG: 169 m²
no description
Mehrgenerationenhaus mit Café Grundriss (DG)Wohnfläche DG: 79 m²

Kataloge

WeberHaus: OPTION
WeberHaus

WeberHaus: OPTION


WeberHaus: Objektbau Katalog
WeberHaus

WeberHaus: Objektbau Katalog


WeberHaus: Hauskatalog
WeberHaus

WeberHaus: Hauskatalog


House and TreeParksHouse and PinMusterhausHouse on HandAnbieter