1. AnbieterArrow Icon
  2. WeberHausArrow Icon
  3. Luxusvilla im Bauhaus-Stil
Slide 1
Slide 2
Slide 3
Slide 4
Slide 5
Logo WeberHaus
WeberHausLuxusvilla im Bauhaus-Stil
homeVillen
livingArea361 m²
energyStandardEffizienzhaus 40 Plus
Preis anfragen
Katalog bestellen

Luxusvilla im Bauhaus-Stil

Architektonisch verbindet das individuell geplante Haus modernen Bauhausstils mit den Vorteilen des Wohnkonzeptes „ebenLeben“. Die Linien sind klar, schlicht und doch stilvoll. Besonders edel wirkt der Kontrast zwischen der weiß verputzten Außenfassade und den anthrazitfarbenen Holz-Alu-Fenstern. @Auch wenn es so aussieht - das Dach ist kein Flachdach, sondern ein integriertes Satteldach mit einer extrem flachen Neigung von sechs Grad. Dar Grund dafür war, dass die zuständige Baubehörde ein Flachdach nicht genehmigte. Um weiteren Nutzraum zu gewinnen, entschied sich die Baufamilie dafür, das gesamte Gebäude zu unterkellern. Neben einem Hobby- und einem Partyraum findet sich hier auch der Technikraum mit einer hocheffizienten Wasser-Wasser-Wärmepumpe.

Hausdaten

Hausart Icon
HausartEinfamilienhaus
Bauweise Icon
BauweiseHolz-Tafelbau
Anzahl Räume Icon
Anzahl Räume16
Baustil Icon
BaustilVillen
Fassade Icon
FassadePutz
Außenmaße Icon
Außenmaße21.86 m x 14.3 m
Wohnfläche Icon
Wohnfläche360.81 m²
Dachform Icon
DachformSattel-/Giebeldach
Etagen Icon
Etagen2
Energiestandard Icon
EnergiestandardEffizienzhaus 40 Plus
Immobilientyp Icon
ImmobilientypKundenhaus
Dachneigung Icon
Dachneigung
Mittlerer U-Wert Icon
Mittlerer U-Wert0.11 W/m²K
Hauseigenschaften Icon
HauseigenschaftenGästezimmer
Hausdämmstoff Icon
HausdämmstoffMineralfaser (Glaswolle, Steinwolle)
Heizungsart Icon
HeizungsartGas-Brennwertheizung
Pfeil nach unten linksWir schaffen Platz für Ihre Träume

Grundriss

no description
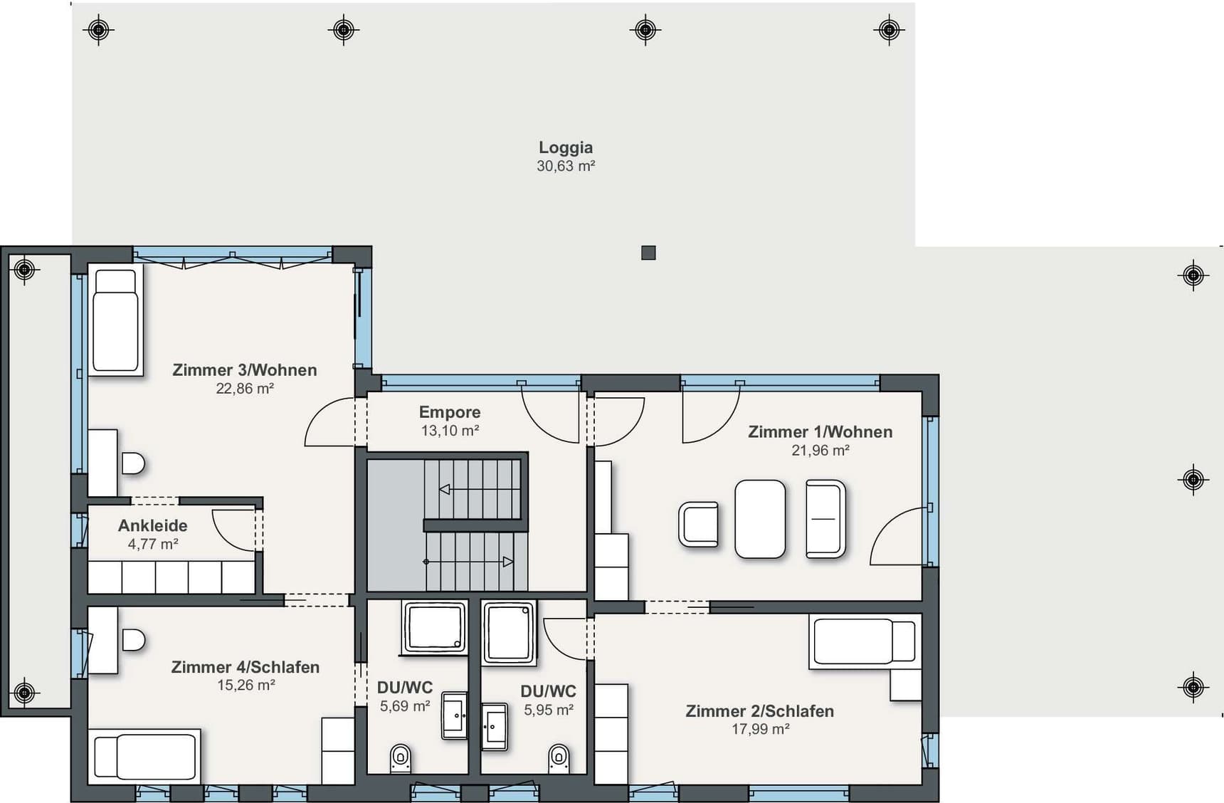
Luxusvilla im Bauhaus-Stil Grundriss (EG)Wohnfläche EG: 222,6 m²
no description
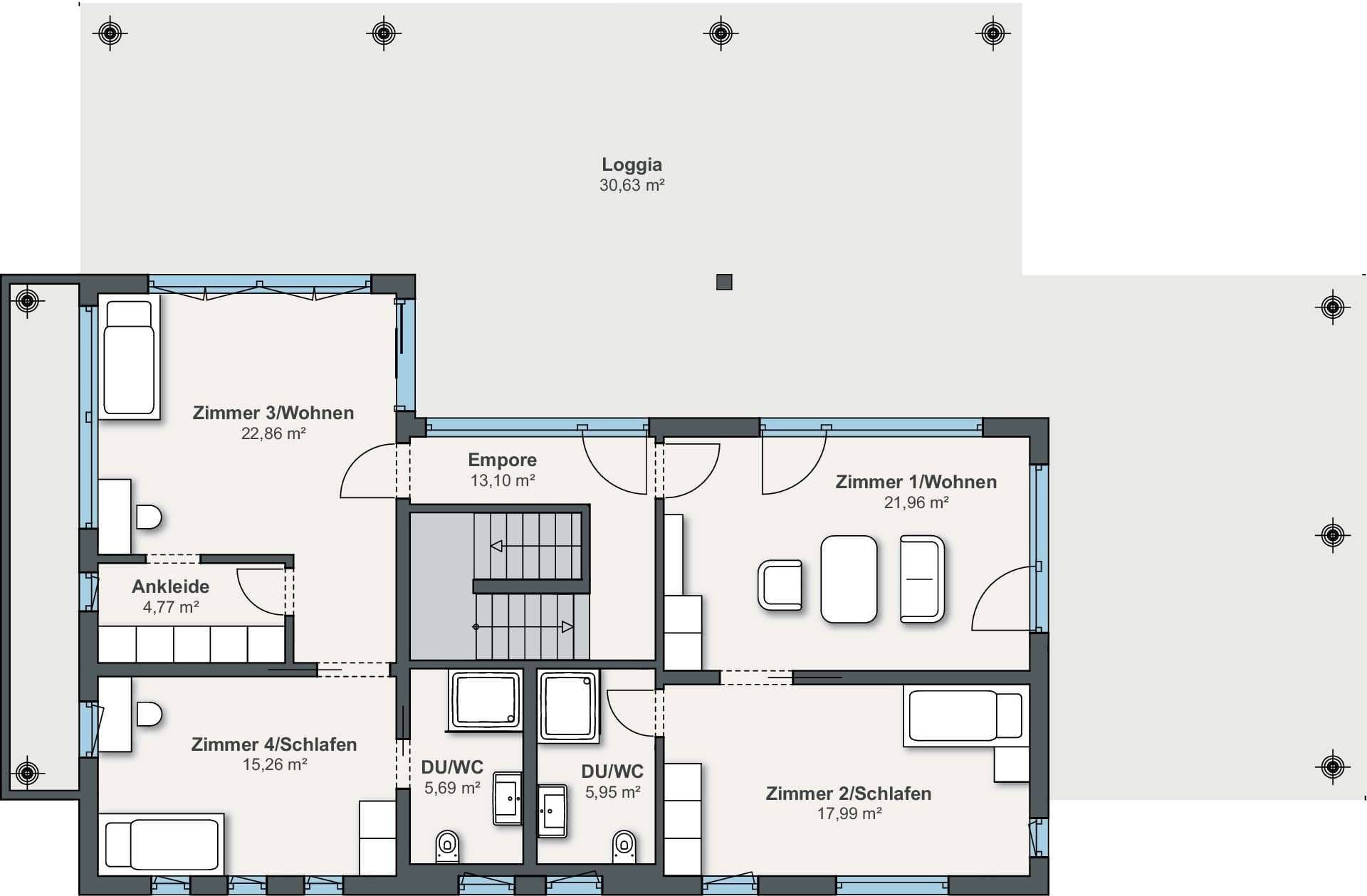
Luxusvilla im Bauhaus-Stil Grundriss (OG)Wohnfläche OG: 138,21 m²

Kataloge

WeberHaus: OPTION
WeberHaus

WeberHaus: OPTION


WeberHaus: Objektbau Katalog
WeberHaus

WeberHaus: Objektbau Katalog


WeberHaus: Hauskatalog
WeberHaus

WeberHaus: Hauskatalog


House and TreeParksHouse and PinMusterhausHouse on HandAnbieter