1. AnbieterArrow Icon
  2. WeberHausArrow Icon
  3. Lichtdurchfluteter Kubus
Slide 1
Slide 2
Slide 3
Slide 4
Slide 5
Slide 6
Slide 7
Logo WeberHaus
WeberHausLichtdurchfluteter Kubus
homeKubushäuser im Bauhausstil
livingArea193 m²
energyStandardEffizienzhaus 40 Plus
Preis anfragen
Katalog bestellen

Lichtdurchfluteter Kubus

  

Schick, offen und mit viel Licht – so präsentiert sich dieses frei geplante Architektenhaus, das an einem See im Norden von Leipzig liegt. Den Grundriss haben die Bauherren selbst entworfen. Die holzähnliche Fassade aus Trespa-Meteon-Platte bildet einen Kontrast zum modernen Bauhausstil und bringt Wärme ins Spiel. Über dieses Stilmittel wurde die Garage optisch mit dem Haus verbunden. Als Hingucker dient das große Fenster am Treppenaufgang. Der Kubus wartet mit weiteren besonderen Akzenten wie etwa einer Terrasse aus Douglasienholz auf. Mit einer Wohnfläche von über 180 Quadratmeter bietet das Haus viel Platz.

Hier geht's zur Bauherrengeschichte

Hausdaten

Hausart Icon
HausartEinfamilienhaus
Bauweise Icon
BauweiseHolz-Tafelbau
Anzahl Räume Icon
Anzahl Räume10
Baustil Icon
BaustilKubushäuser im Bauhausstil
Fassade Icon
FassadePutz
Außenmaße Icon
Außenmaße14 m x 10.5 m
Wohnfläche Icon
Wohnfläche193.25 m²
Dachform Icon
DachformFlachdach
Etagen Icon
Etagen2
Energiestandard Icon
EnergiestandardEffizienzhaus 40 Plus
Immobilientyp Icon
ImmobilientypKundenhaus
Mittlerer U-Wert Icon
Mittlerer U-Wert0.11 W/m²K
Hauseigenschaften Icon
HauseigenschaftenGästezimmer, Viel Glas
Hausdämmstoff Icon
HausdämmstoffMineralfaser (Glaswolle, Steinwolle)
Heizungsart Icon
HeizungsartWärmepumpe (Luft, Wasser, oder beides)
Pfeil nach unten linksWir schaffen Platz für Ihre Träume

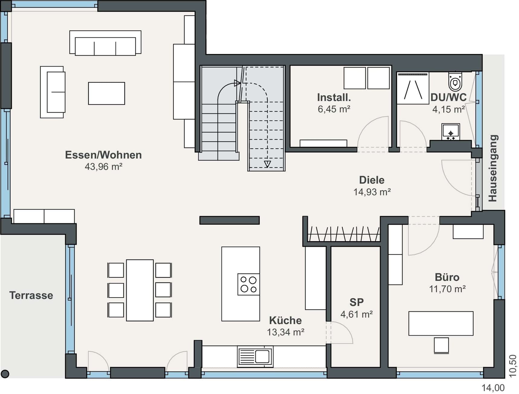
Grundriss

no description
Lichtdurchfluteter Kubus Grundriss (EG)Wohnfläche EG: 99,14 m²
no description
Lichtdurchfluteter Kubus Grundriss (OG)Wohnfläche OG: 94,11 m²

Kataloge

WeberHaus: OPTION
WeberHaus

WeberHaus: OPTION


WeberHaus: Objektbau Katalog
WeberHaus

WeberHaus: Objektbau Katalog


WeberHaus: Hauskatalog
WeberHaus

WeberHaus: Hauskatalog


House and TreeParksHouse and PinMusterhausHouse on HandAnbieter