1. AnbieterArrow Icon
  2. WeberHausArrow Icon
  3. Satteldachhaus mit hellgrauer Holzfassade
Slide 1
Slide 2
Slide 3
Slide 4
Slide 5
Logo WeberHaus
WeberHausSatteldachhaus mit hellgrauer Holzfassade
homeKlassische Familienhäuser
livingArea168 m²
energyStandardEffizienzhaus 40 Plus
Preis anfragen
Katalog bestellen

Satteldachhaus mit hellgrauer Holzfassade

In diesem wunderschönen WeberHaus kann man sich nur wohlfühlen. Die 168 Quadratmeter große Wohnfläche entspricht bis ins kleinste Detail den Vorstellungen und Wünschen der Baufamilie. Optisch besticht es mit einer modernen, hellgrauen Holzfassade, die dem Haus einen warmen und freundlichen Charakter verleiht. Den perfekten Kontrast bildet das dunkle Satteldach, das das rechteckig geschnittene Haus zu einem echten Blickfang macht.

Hausdaten

Hausart Icon
HausartEinfamilienhaus
Bauweise Icon
BauweiseHolz-Tafelbau
Anzahl Räume Icon
Anzahl Räume7
Baustil Icon
BaustilKlassische Familienhäuser
Fassade Icon
FassadeHolz
Außenmaße Icon
Außenmaße11.31 m x 9.43 m
Wohnfläche Icon
Wohnfläche168 m²
Dachform Icon
DachformSattel-/Giebeldach
Etagen Icon
Etagen1.5
Energiestandard Icon
EnergiestandardEffizienzhaus 40 Plus
Immobilientyp Icon
ImmobilientypKundenhaus
Dachneigung Icon
Dachneigung24°
Kniestock Icon
Kniestock1.9 m
Mittlerer U-Wert Icon
Mittlerer U-Wert0.11 W/m²K
Hauseigenschaften Icon
HauseigenschaftenTerasse
Hausdämmstoff Icon
HausdämmstoffMineralfaser (Glaswolle, Steinwolle)
Heizungsart Icon
HeizungsartWärmepumpe (Luft, Wasser, oder beides)
Pfeil nach unten linksWir schaffen Platz für Ihre Träume

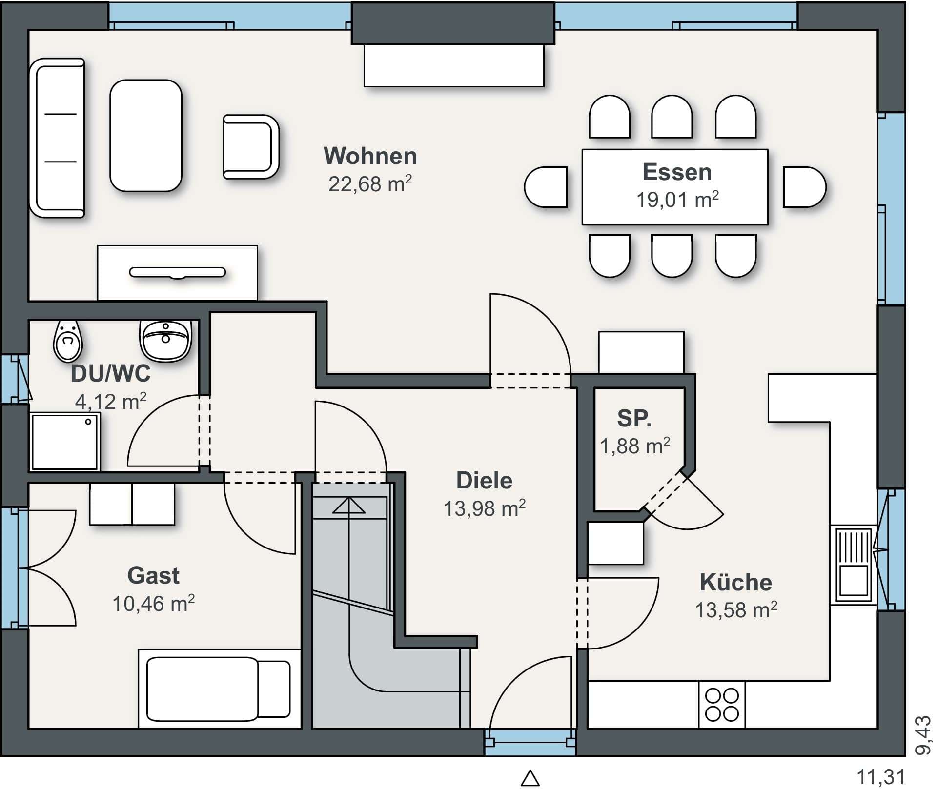
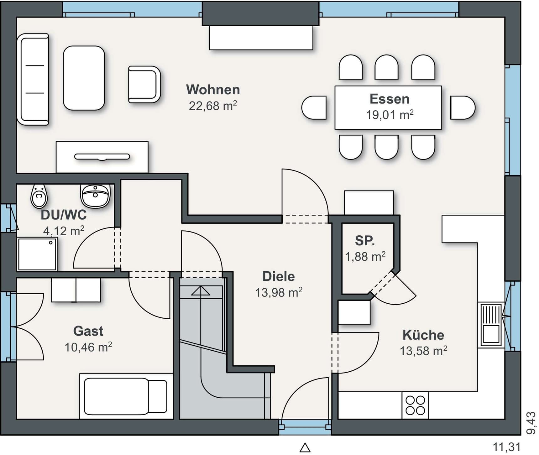
Grundriss

no description
Satteldachhaus mit hellgrauer Holzfassade Grundriss (EG)Wohnfläche EG: 86 m²
no description
Satteldachhaus mit hellgrauer Holzfassade Grundriss (DG)Wohnfläche DG: 82 m²

Kataloge

WeberHaus: OPTION
WeberHaus

WeberHaus: OPTION


WeberHaus: Objektbau Katalog
WeberHaus

WeberHaus: Objektbau Katalog


WeberHaus: Hauskatalog
WeberHaus

WeberHaus: Hauskatalog


House and TreeParksHouse and PinMusterhausHouse on HandAnbieter