1. AnbieterArrow Icon
  2. WeberHausArrow Icon
  3. Mediterranes Traumhaus
Slide 1
Slide 2
Slide 3
Slide 4
Slide 5
Slide 6
Slide 7
Slide 8
Slide 9
Logo WeberHaus
WeberHausMediterranes Traumhaus
homeKlassische Familienhäuser
livingArea195 m²
energyStandardEffizienzhaus 40 Plus
Preis anfragen
Katalog bestellen

Mediterranes Traumhaus

Urlaubsfeeling im eigenen Zuhause

Die Bauherren dieses mediterranen Traumhauses haben eine Faible für den Süden. So war es für beide klar, dass in dieser Region Flair und Savoir Vivre auch in die eigenen vier Wände zu transportieren sind. Bei der Umsetzung dieser Vision wurden sie von WeberHaus und einem kompetenten Architekten unterstützt. Gemeinsam gelang es, die Vorstellungen des Paares wie exakt umzusetzen. „Heute kommen wir jeden Tag freudig von der Arbeit nach Hause in unserem Traumhaus“, berichten sie strahlend.

Hausdaten

Hausart Icon
HausartEinfamilienhaus
Bauweise Icon
BauweiseHolz-Tafelbau
Anzahl Räume Icon
Anzahl Räume8
Baustil Icon
BaustilKlassische Familienhäuser
Fassade Icon
FassadePutz
Außenmaße Icon
Außenmaße13.33 m x 11.48 m
Wohnfläche Icon
Wohnfläche194.95 m²
Dachform Icon
DachformWalm-/Zeltdach
Etagen Icon
Etagen2
Energiestandard Icon
EnergiestandardEffizienzhaus 40 Plus
Immobilientyp Icon
ImmobilientypKundenhaus
Dachneigung Icon
Dachneigung25°
Mittlerer U-Wert Icon
Mittlerer U-Wert0.11 W/m²K
Hauseigenschaften Icon
HauseigenschaftenViel Glas, Gästezimmer, Terasse
Hausdämmstoff Icon
HausdämmstoffMineralfaser (Glaswolle, Steinwolle)
Heizungsart Icon
HeizungsartWärmepumpe (Luft, Wasser, oder beides)
Pfeil nach unten linksWir schaffen Platz für Ihre Träume

Grundriss

WeberHaus_Grundriss_Erdgeschoss
Mediterranes Traumhaus Grundriss (EG)Wohnfläche EG: 108,15 m²
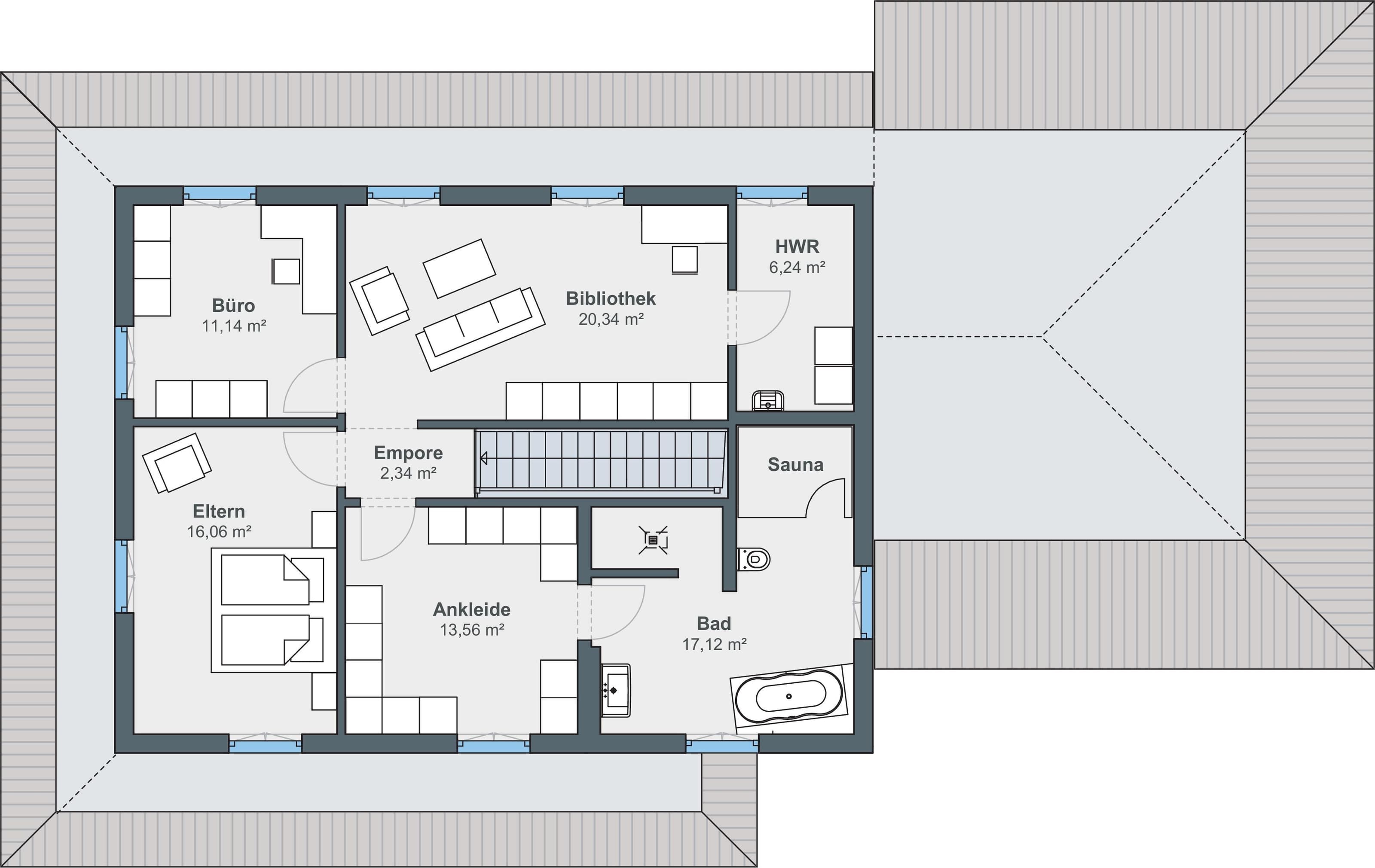
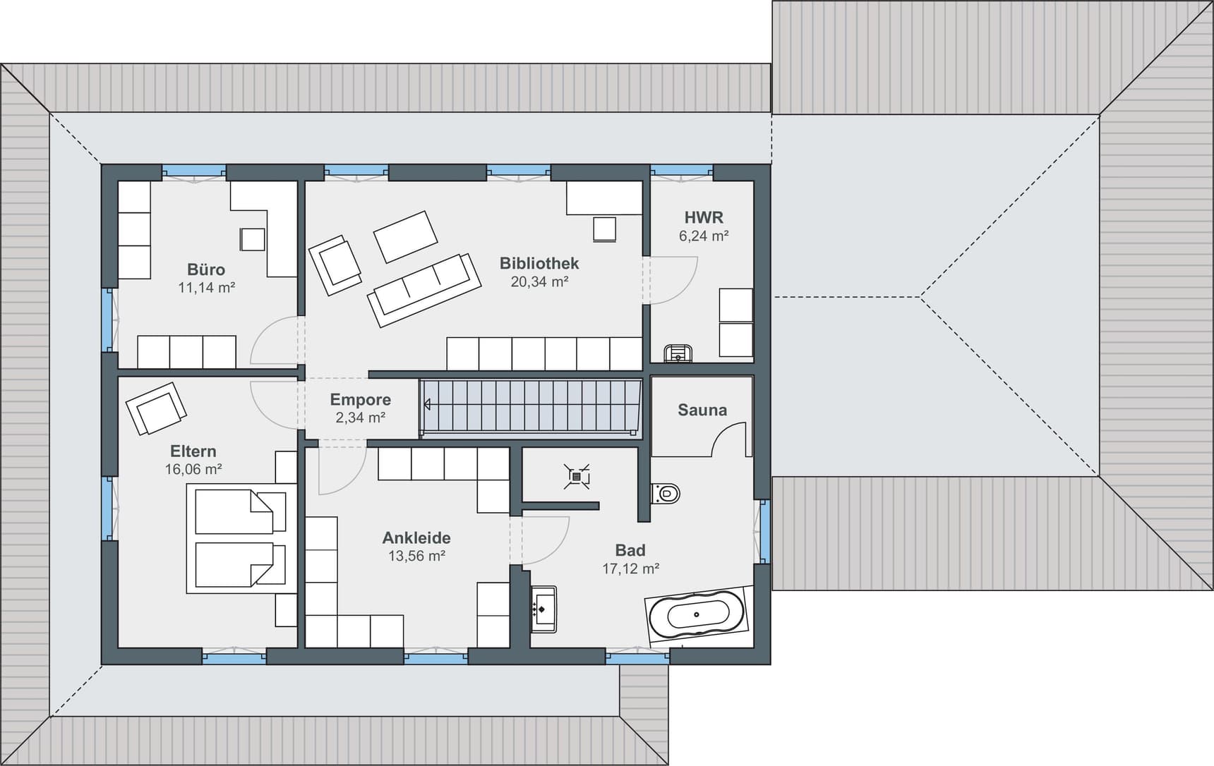
WeberHaus_Grundriss_Obergeschoss
Mediterranes Traumhaus Grundriss (OG)Wohnfläche OG: 86,8 m²

Kataloge

WeberHaus: OPTION
WeberHaus

WeberHaus: OPTION


WeberHaus: Objektbau Katalog
WeberHaus

WeberHaus: Objektbau Katalog


WeberHaus: Hauskatalog
WeberHaus

WeberHaus: Hauskatalog


House and TreeParksHouse and PinMusterhausHouse on HandAnbieter