1. AnbieterArrow Icon
  2. WeberHausArrow Icon
  3. Freie Entfaltung für die ganze Familie
Slide 1
Slide 2
Slide 3
Slide 4
Logo WeberHaus
WeberHausFreie Entfaltung für die ganze Familie
homeKlassische Familienhäuser
livingArea191 m²
energyStandardEffizienzhaus 40 Plus
Preis anfragen
Katalog bestellen

Freie Entfaltung für die ganze Familie

Auf rund 190 komfortablen Quadratmetern präsentiert das Balance 300 seine Vorzüge auf zwei Vollgeschossen. Die Optionen zur individuellen Verwirklichung zusätzlich zum clever vorgedachten Grundriss, sind vielfältig. Sollte beispielsweise eine Pergola mit Glaseindeckung gewünscht werden, ist diese ebenso problemlos zu realisieren wie eine Photovoltaik-Anlage zur Energiegewinnung aus Sonnenkraft.

Hausdaten

Hausart Icon
HausartEinfamilienhaus
Bauweise Icon
BauweiseHolz-Tafelbau
Anzahl Räume Icon
Anzahl Räume7
Baustil Icon
BaustilKlassische Familienhäuser
Fassade Icon
FassadePutz
Außenmaße Icon
Außenmaße12.04 m x 9.54 m
Wohnfläche Icon
Wohnfläche190.53 m²
Dachform Icon
DachformWalm-/Zeltdach
Etagen Icon
Etagen2
Energiestandard Icon
EnergiestandardEffizienzhaus 40 Plus
Immobilientyp Icon
ImmobilientypPlanungsidee
Dachneigung Icon
Dachneigung22°
Mittlerer U-Wert Icon
Mittlerer U-Wert0.11 W/m²K
Hausdämmstoff Icon
HausdämmstoffMineralfaser (Glaswolle, Steinwolle)
Heizungsart Icon
HeizungsartWärmepumpe (Luft, Wasser, oder beides)
Pfeil nach unten linksWir schaffen Platz für Ihre Träume

Grundriss

no description
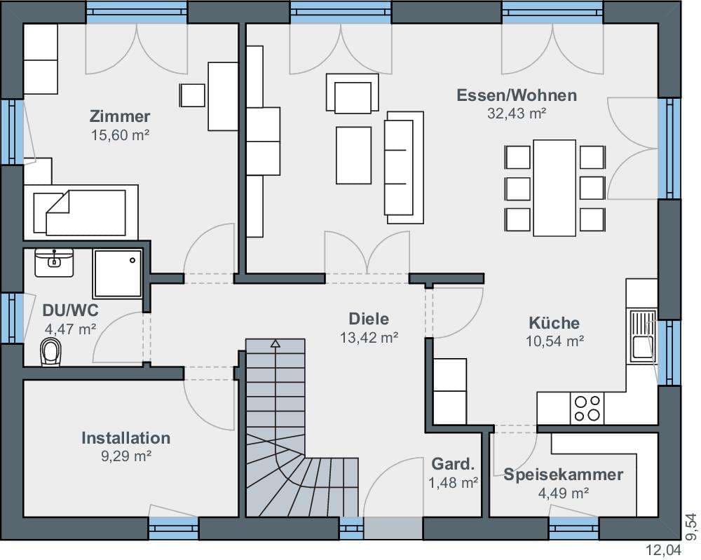
Freie Entfaltung für die ganze Familie Grundriss (EG)Wohnfläche EG: 93,94 m²
no description
Freie Entfaltung für die ganze Familie Grundriss (OG)Wohnfläche OG: 96,59 m²

Kataloge

WeberHaus: OPTION
WeberHaus

WeberHaus: OPTION


WeberHaus: Objektbau Katalog
WeberHaus

WeberHaus: Objektbau Katalog


WeberHaus: Hauskatalog
WeberHaus

WeberHaus: Hauskatalog


House and TreeParksHouse and PinMusterhausHouse on HandAnbieter