1. AnbieterArrow Icon
  2. WeberHausArrow Icon
  3. Energiegewinn, Wohnkomfort und Design perfekt vereint
Slide 1
Slide 2
Slide 3
Slide 4
Slide 5
Slide 6
Slide 7
Logo WeberHaus
WeberHausEnergiegewinn, Wohnkomfort und Design perfekt vereint
homeKlassische Familienhäuser
livingArea152 m²
energyStandardPlusenergiehaus
Preis anfragen
Katalog bestellen

Energiegewinn, Wohnkomfort und Design perfekt vereint

Mit dem Konzept PlusEnergie gewinnt dieses WeberHaus mehr Energie, als es braucht.
Die hochdämmende Außenwand ÖvoNatur-Therm in Verbindung mit einer Luft/Luft Wärmepumpe als Heiztechnik ist die Grundlage des hervorragenden Energiestandards, das dadurch einem KfW-Effizienzhaus 40 entspricht. Zusammen mit der Photovoltaikanlage, die der Bauherr auf dem Dach installiert hat, erreicht das Haus den PlusEnergie-Standard und gewinnt mehr saubere Energie, als es selbst benötigt. Circa 90 Prozent davon speist die Familie ins öffentliche Stromnetz ein und erhält dafür eine entsprechende Vergütung. Die restlichen 10 Prozent der Solarenergie vom eigenen Dach nutzen Sie selbst und beides zusammen zahlt sich aus: So bezahlt die Baufamilie monatlich weniger als 10 Euro für Warmwasser und Heizung.

Hausdaten

Hausart Icon
HausartEinfamilienhaus
Bauweise Icon
BauweiseHolz-Tafelbau
Anzahl Räume Icon
Anzahl Räume6
Baustil Icon
BaustilKlassische Familienhäuser
Fassade Icon
FassadePutz
Außenmaße Icon
Außenmaße9.04 m x 11.22 m
Wohnfläche Icon
Wohnfläche151.56 m²
Dachform Icon
DachformSattel-/Giebeldach
Etagen Icon
Etagen1.5
Energiestandard Icon
EnergiestandardPlusenergiehaus
Immobilientyp Icon
ImmobilientypKundenhaus
Dachneigung Icon
Dachneigung30°
Kniestock Icon
Kniestock1.9 m
Mittlerer U-Wert Icon
Mittlerer U-Wert0.11 W/m²K
Hauseigenschaften Icon
HauseigenschaftenGästezimmer
Hausdämmstoff Icon
HausdämmstoffMineralfaser (Glaswolle, Steinwolle)
Heizungsart Icon
HeizungsartWärmepumpe (Luft, Wasser, oder beides)
Pfeil nach unten linksWir schaffen Platz für Ihre Träume

Grundriss

no description
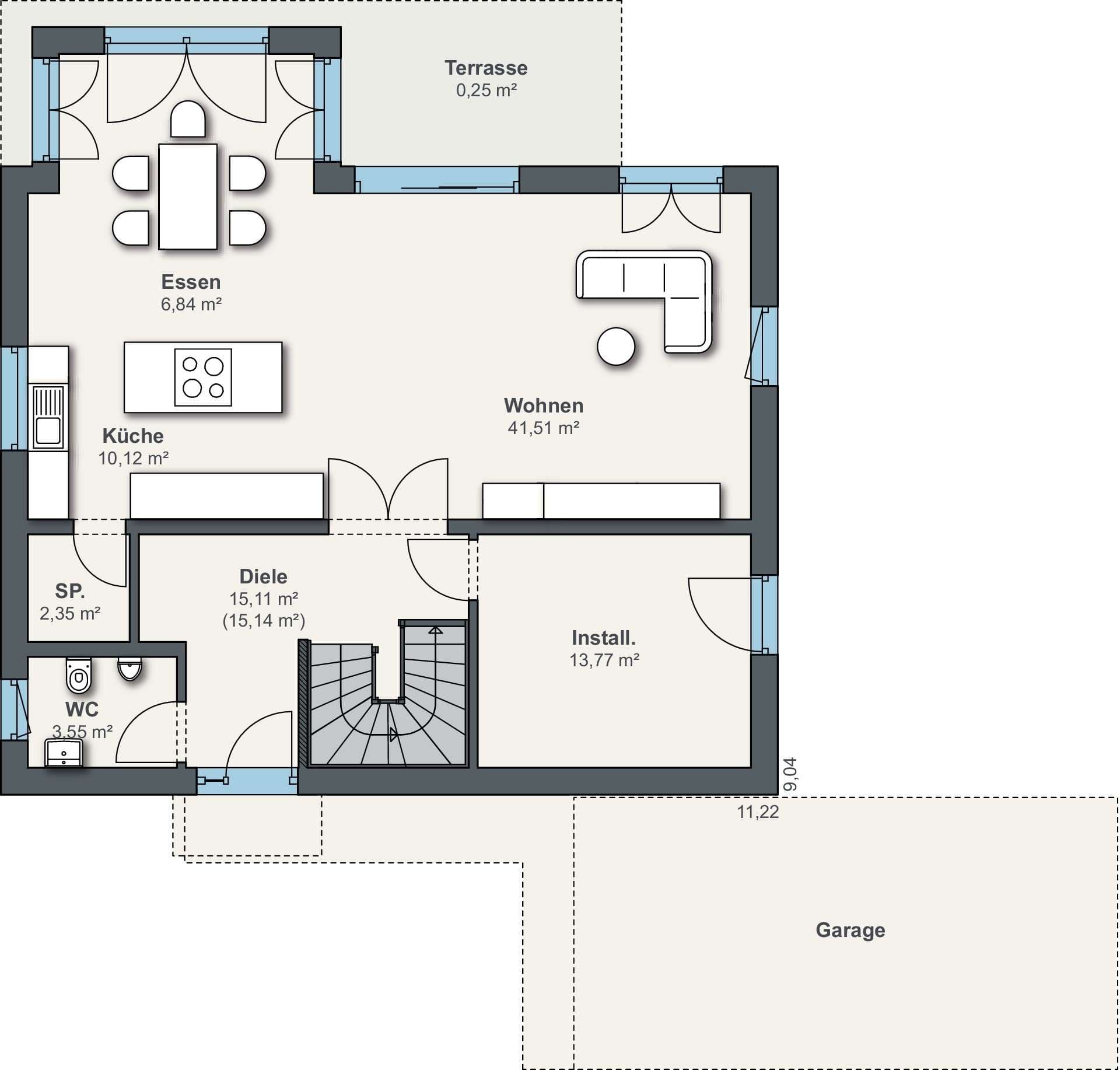
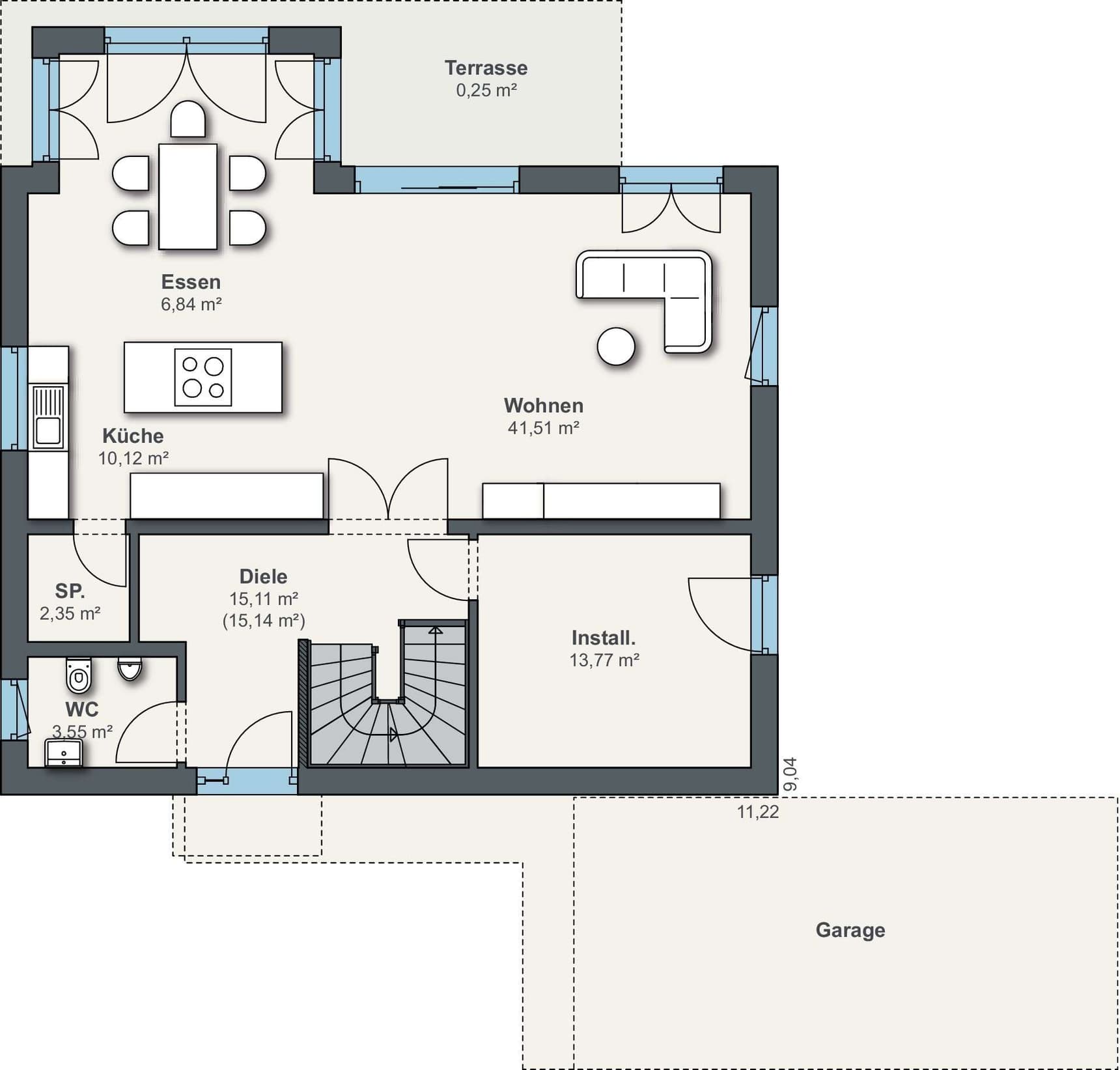
Energiegewinn, Wohnkomfort und Design perfekt vereint Grundriss (EG)Wohnfläche EG: 74,74 m²
no description
Energiegewinn, Wohnkomfort und Design perfekt vereint Grundriss (DG)Wohnfläche DG: 76,82 m²

Kataloge

WeberHaus: OPTION
WeberHaus

WeberHaus: OPTION


WeberHaus: Objektbau Katalog
WeberHaus

WeberHaus: Objektbau Katalog


WeberHaus: Hauskatalog
WeberHaus

WeberHaus: Hauskatalog


House and TreeParksHouse and PinMusterhausHouse on HandAnbieter