1. AnbieterArrow Icon
  2. WeberHausArrow Icon
  3. Energieeffizientes Doppelhaus im Bauhaus-Stil
Slide 1
Slide 2
Slide 3
Slide 4
Slide 5
Slide 6
Logo WeberHaus
WeberHausEnergieeffizientes Doppelhaus im Bauhaus-Stil
homeKlassische Familienhäuser
livingArea159 m²
energyStandardEffizienzhaus 40 Plus
Preis anfragen
Katalog bestellen

Energieeffizientes Doppelhaus im Bauhaus-Stil

Von außen kommen die zweigeschossigen Doppelhaushälften identisch daher. Die Gestaltung der Außenfassade ist aus einem Guss. In Kombination mit dem Flachdach, dem weißen Putz und den großen Fensterflächen erinnert das Doppelhaus an den Bauhaus-Stil. Das rückversetzte Ober- und Erdgeschoss sowie die Säulen lockern den Kubus auf. Architektonisch spannend ist auch der rückversetzte und damit überdachte Hauseingang. Fensterrahmen und Türen sind in einem hellen Grau gehalten. Pro Hälfte erstreckt sich die Wohnfläche auf rund 160 Quadratmeter. Zudem ist das Doppelhaus unterkellert.

Hier geht's zur Bauherrengeschichte

Hausdaten

Hausart Icon
HausartDoppelhaus
Bauweise Icon
BauweiseHolz-Tafelbau
Anzahl Räume Icon
Anzahl Räume6
Baustil Icon
BaustilKlassische Familienhäuser
Fassade Icon
FassadePutz
Außenmaße Icon
Außenmaße9.51 m x 12.49 m
Wohnfläche Icon
Wohnfläche159.08 m²
Dachform Icon
DachformFlachdach
Etagen Icon
Etagen2
Energiestandard Icon
EnergiestandardEffizienzhaus 40 Plus
Immobilientyp Icon
ImmobilientypKundenhaus
Mittlerer U-Wert Icon
Mittlerer U-Wert0.11 W/m²K
Hauseigenschaften Icon
HauseigenschaftenKeller
Hausdämmstoff Icon
HausdämmstoffMineralfaser (Glaswolle, Steinwolle)
Heizungsart Icon
HeizungsartWärmepumpe (Luft, Wasser, oder beides)
Pfeil nach unten linksWir schaffen Platz für Ihre Träume

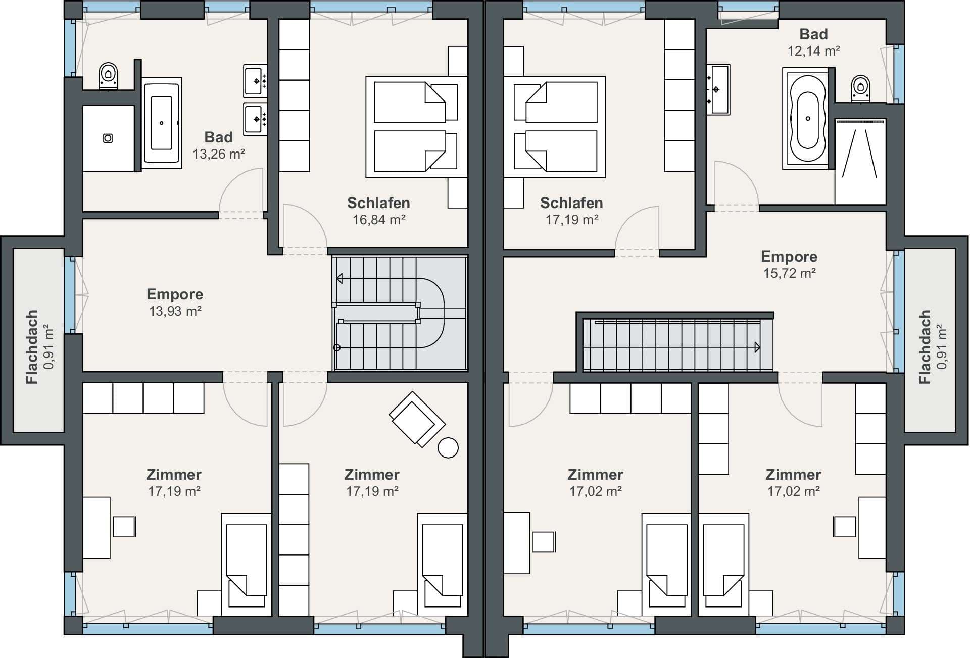
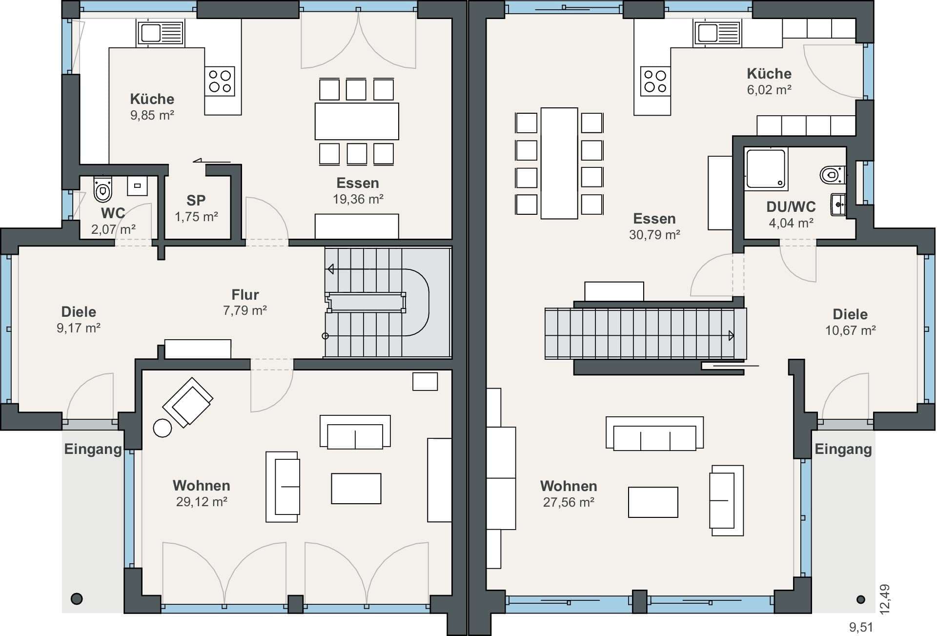
Grundriss

no description
Energieeffizientes Doppelhaus im Bauhaus-Stil Grundriss (EG)Wohnfläche EG: 79,08 m²
no description
Energieeffizientes Doppelhaus im Bauhaus-Stil Grundriss (OG)Wohnfläche OG: 80 m²

Kataloge

WeberHaus: OPTION
WeberHaus

WeberHaus: OPTION


WeberHaus: Objektbau Katalog
WeberHaus

WeberHaus: Objektbau Katalog


WeberHaus: Hauskatalog
WeberHaus

WeberHaus: Hauskatalog


House and TreeParksHouse and PinMusterhausHouse on HandAnbieter