1. AnbieterArrow Icon
  2. WeberHausArrow Icon
  3. Elegante Villa mit Einliegerwohnung
Slide 1
Slide 2
Slide 3
Slide 4
Slide 5
Slide 6
Slide 7
Slide 8
Logo WeberHaus
WeberHausElegante Villa mit Einliegerwohnung
homeStadtvillen
livingArea257 m²
energyStandardEffizienzhaus 40 Plus
Preis anfragen
Katalog bestellen

Elegante Villa mit Einliegerwohnung

Einfamilienhaus mit mediterranem Flair

Die Villa mit zwei Vollgeschossen und einem rot eingedeckten Walmdach strahlt mediterranen Flair aus. Auf dem großzügigen Balkon sowie der darunter liegenden Terrasse können die Bewohner entspannen. Die Basis des ökologischen Fertighauses bildet die Baureihe generation5.5. Im Souterrain befindet sich eine Einliegerwohnung, die vermietet ist. Dank der hervorragend gedämmten Gebäudehülle ÖvoNatur Therm können sich die Hausbesitzer über einen niedrigen Energieverbrauch freuen. Und mit der Photovoltaik-Anlage auf dem Dach produzieren sie sogar ihren eigenen Strom.

Hausdaten

Hausart Icon
HausartEinfamilienhaus
Bauweise Icon
BauweiseHolz-Tafelbau
Anzahl Räume Icon
Anzahl Räume12
Baustil Icon
BaustilStadtvillen
Fassade Icon
FassadePutz
Außenmaße Icon
Außenmaße12.35 m x 11.05 m
Wohnfläche Icon
Wohnfläche257.3 m²
Dachform Icon
DachformWalm-/Zeltdach
Etagen Icon
Etagen2
Energiestandard Icon
EnergiestandardEffizienzhaus 40 Plus
Immobilientyp Icon
ImmobilientypKundenhaus
Dachneigung Icon
Dachneigung22°
Mittlerer U-Wert Icon
Mittlerer U-Wert0.11 W/m²K
Hauseigenschaften Icon
HauseigenschaftenEinliegerwohnung, Balkon, Terasse, Viel Glas, Keller
Hausdämmstoff Icon
HausdämmstoffMineralfaser (Glaswolle, Steinwolle)
Heizungsart Icon
HeizungsartWärmepumpe (Luft, Wasser, oder beides)
Pfeil nach unten linksWir schaffen Platz für Ihre Träume

Grundriss

WeberHaus_Grundriss_Keller_Einliegerwohnung
Elegante Villa mit Einliegerwohnung Grundriss (Keller)Wohnfläche KG: 62,36 m²
WeberHaus_Grundriss
Elegante Villa mit Einliegerwohnung Grundriss (EG)Wohnfläche EG: 96,97 m²
WeberHaus_Grundriss
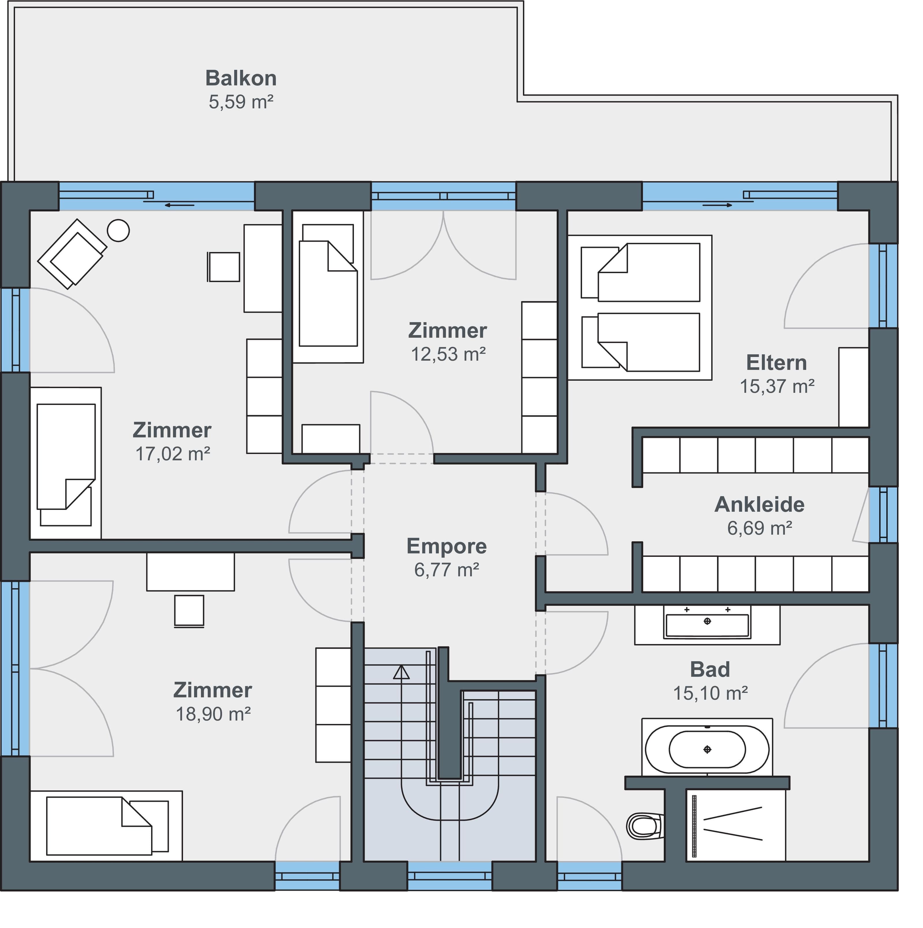
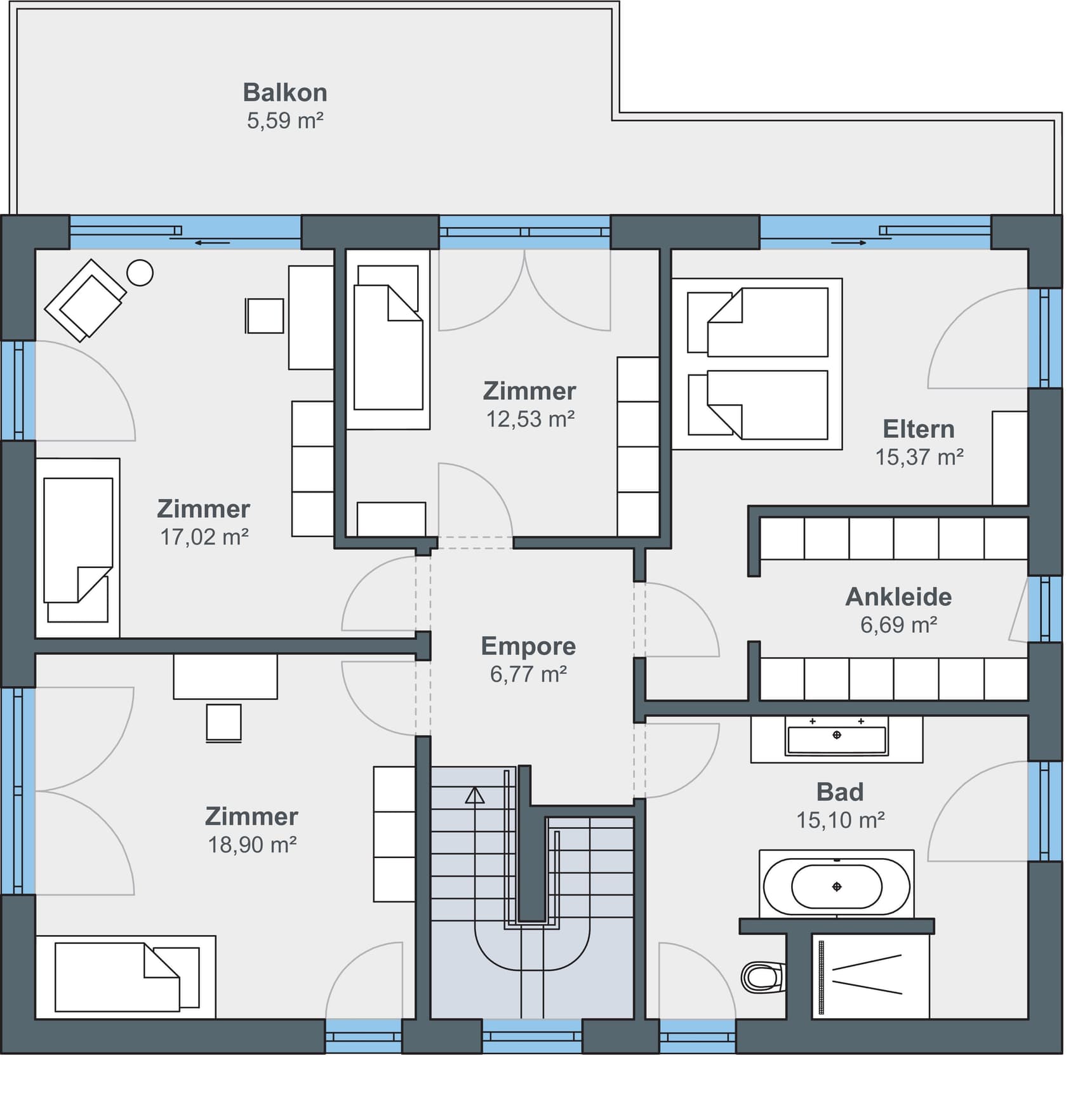
Elegante Villa mit Einliegerwohnung Grundriss (OG)Wohnfläche OG: 97,97 m²

Kataloge

WeberHaus: OPTION
WeberHaus

WeberHaus: OPTION


WeberHaus: Objektbau Katalog
WeberHaus

WeberHaus: Objektbau Katalog


WeberHaus: Hauskatalog
WeberHaus

WeberHaus: Hauskatalog


House and TreeParksHouse and PinMusterhausHouse on HandAnbieter