1. AnbieterArrow Icon
  2. WeberHausArrow Icon
  3. Das eigene Zuhause um Kraft zu tanken
Slide 1
Slide 2
Slide 3
Slide 4
Slide 5
Logo WeberHaus
WeberHausDas eigene Zuhause um Kraft zu tanken
homeKubushäuser im Bauhausstil
livingArea130 m²
energyStandardEffizienzhaus 40 Plus
Preis anfragen
Katalog bestellen

Das eigene Zuhause um Kraft zu tanken

„Wir freuen uns jeden Abend, nach der Arbeit in dieses schöne Zuhause heim zu kommen.“ Diesen Satz äußert das Bauherrenpaar aus Frankreich einstimmig über ihr individuell geplantes Architektenhaus. Mit ihren beiden Sprösslingen wohnt die Familie in einem durchgestylten Haus, dessen Grundriss ein schlanker, langgezogener Baukörper ist. Smart konzipiert finden alle Räume mit einer Geschosserhöhung auf 2,64 m im Erdgeschoss ihren idealen Platz. Als Sahnehaube zeigt sich in der Gartenanlage ein großer, moderner Pool, den die ganze Familie ausgiebig nutzt. 

Hier geht's zur Bauherrengeschichte

Hausdaten

Hausart Icon
HausartEinfamilienhaus
Bauweise Icon
BauweiseHolz-Tafelbau
Anzahl Räume Icon
Anzahl Räume10
Baustil Icon
BaustilKubushäuser im Bauhausstil
Fassade Icon
FassadePutz
Außenmaße Icon
Außenmaße6.7 m x 28.32 m
Wohnfläche Icon
Wohnfläche130.19 m²
Dachform Icon
DachformFlachdach
Etagen Icon
Etagen2
Energiestandard Icon
EnergiestandardEffizienzhaus 40 Plus
Immobilientyp Icon
ImmobilientypKundenhaus
Mittlerer U-Wert Icon
Mittlerer U-Wert0.11 W/m²K
Hauseigenschaften Icon
HauseigenschaftenViel Glas, Terasse, Gästezimmer
Hausdämmstoff Icon
HausdämmstoffMineralfaser (Glaswolle, Steinwolle)
Heizungsart Icon
HeizungsartGas-Brennwertheizung
Pfeil nach unten linksWir schaffen Platz für Ihre Träume

Grundriss

no description
Das eigene Zuhause um Kraft zu tanken Grundriss (EG)Wohnfläche EG: 84,74 m²
no description
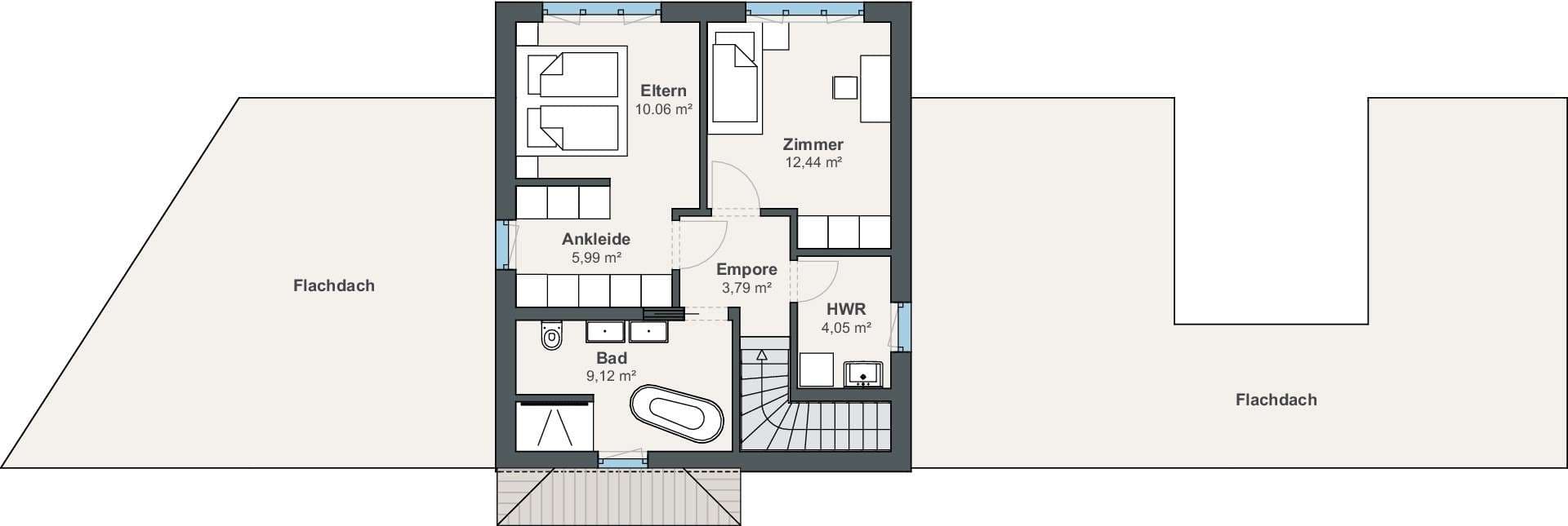
Das eigene Zuhause um Kraft zu tanken Grundriss (OG)Wohnfläche OG: 45,45 m²

Kataloge

WeberHaus: OPTION
WeberHaus

WeberHaus: OPTION


WeberHaus: Objektbau Katalog
WeberHaus

WeberHaus: Objektbau Katalog


WeberHaus: Hauskatalog
WeberHaus

WeberHaus: Hauskatalog


House and TreeParksHouse and PinMusterhausHouse on HandAnbieter