1. AnbieterArrow Icon
  2. WeberHausArrow Icon
  3. Aus Liebe zum Holz
Slide 1
Slide 2
Slide 3
Slide 4
Slide 5
Slide 6
Logo WeberHaus
WeberHausAus Liebe zum Holz
homeLandhäuser
livingArea193 m²
energyStandardEffizienzhaus 40 Plus
Preis anfragen
Katalog bestellen

Aus Liebe zum Holz

Die Baufamilie hat eine hohe Affinität zum Material Holz und wollte daher unbedingt ein Haus aus Holz. Die Fertigbauweise mit ihrer transparenten Zeit- und Preisgestaltung überzeugte das Bauherrenpaar, weshalb sie sich für WeberHaus entschieden. Holz spielt nicht nur in den Räumen des in der Nähe vom Genfer See gelegenen individuell geplanten Architektenhauses eine große Rolle. Auch die Fassade wurde zum großen Teil mit einer Holzverschalung gestaltet.

Hier geht's zur Bauherrengeschichte

Hausdaten

Hausart Icon
HausartEinfamilienhaus
Bauweise Icon
BauweiseHolz-Tafelbau
Anzahl Räume Icon
Anzahl Räume10
Baustil Icon
BaustilLandhäuser
Fassade Icon
FassadeHolz
Außenmaße Icon
Außenmaße8.39 m x 14.04 m
Wohnfläche Icon
Wohnfläche192.97 m²
Dachform Icon
DachformSattel-/Giebeldach
Etagen Icon
Etagen2
Energiestandard Icon
EnergiestandardEffizienzhaus 40 Plus
Immobilientyp Icon
ImmobilientypKundenhaus
Dachneigung Icon
Dachneigung31°
Kniestock Icon
Kniestock1.5 m
Mittlerer U-Wert Icon
Mittlerer U-Wert0.11 W/m²K
Hauseigenschaften Icon
HauseigenschaftenGästezimmer
Hausdämmstoff Icon
HausdämmstoffMineralfaser (Glaswolle, Steinwolle)
Heizungsart Icon
HeizungsartWärmepumpe (Luft, Wasser, oder beides)
Pfeil nach unten linksWir schaffen Platz für Ihre Träume

Grundriss

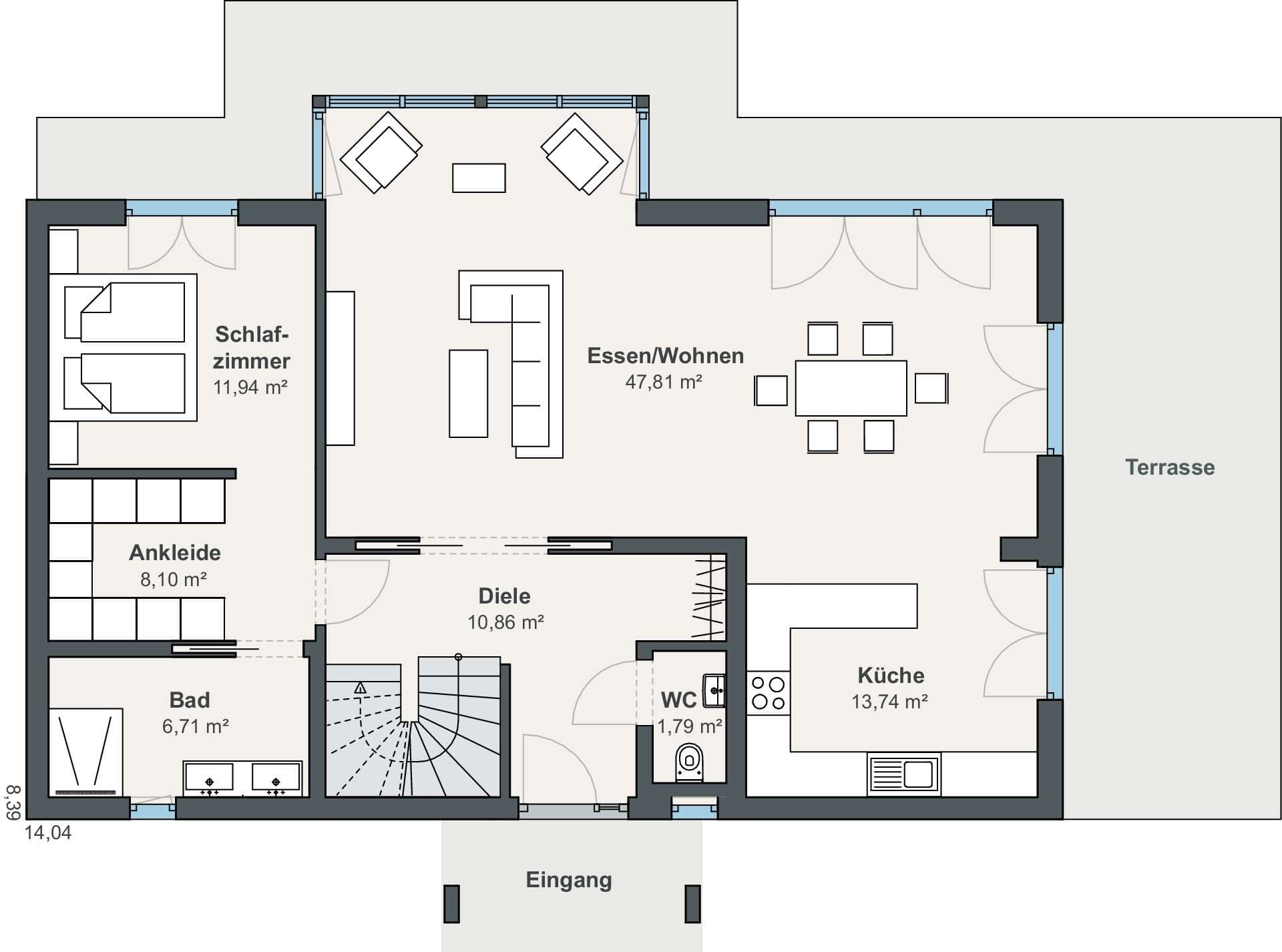
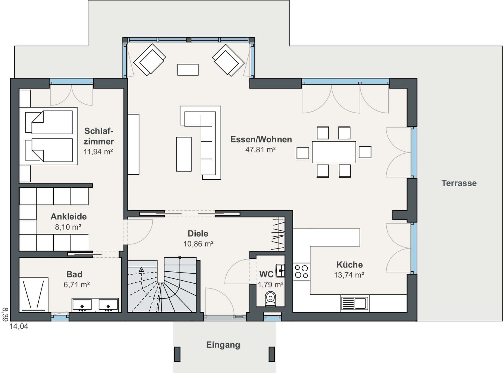
no description
Aus Liebe zum Holz Grundriss (EG)Wohnfläche EG: 100,95 m²
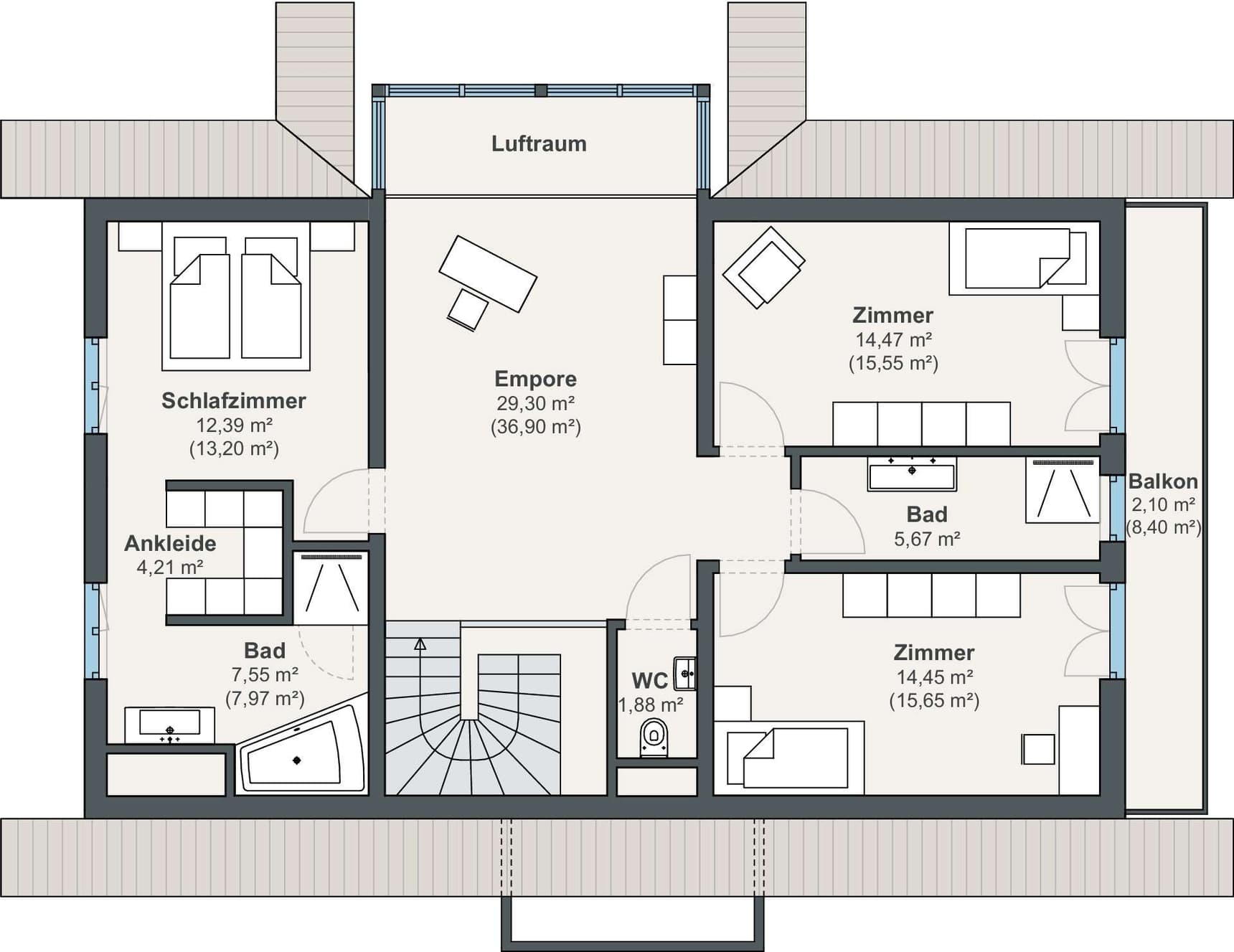
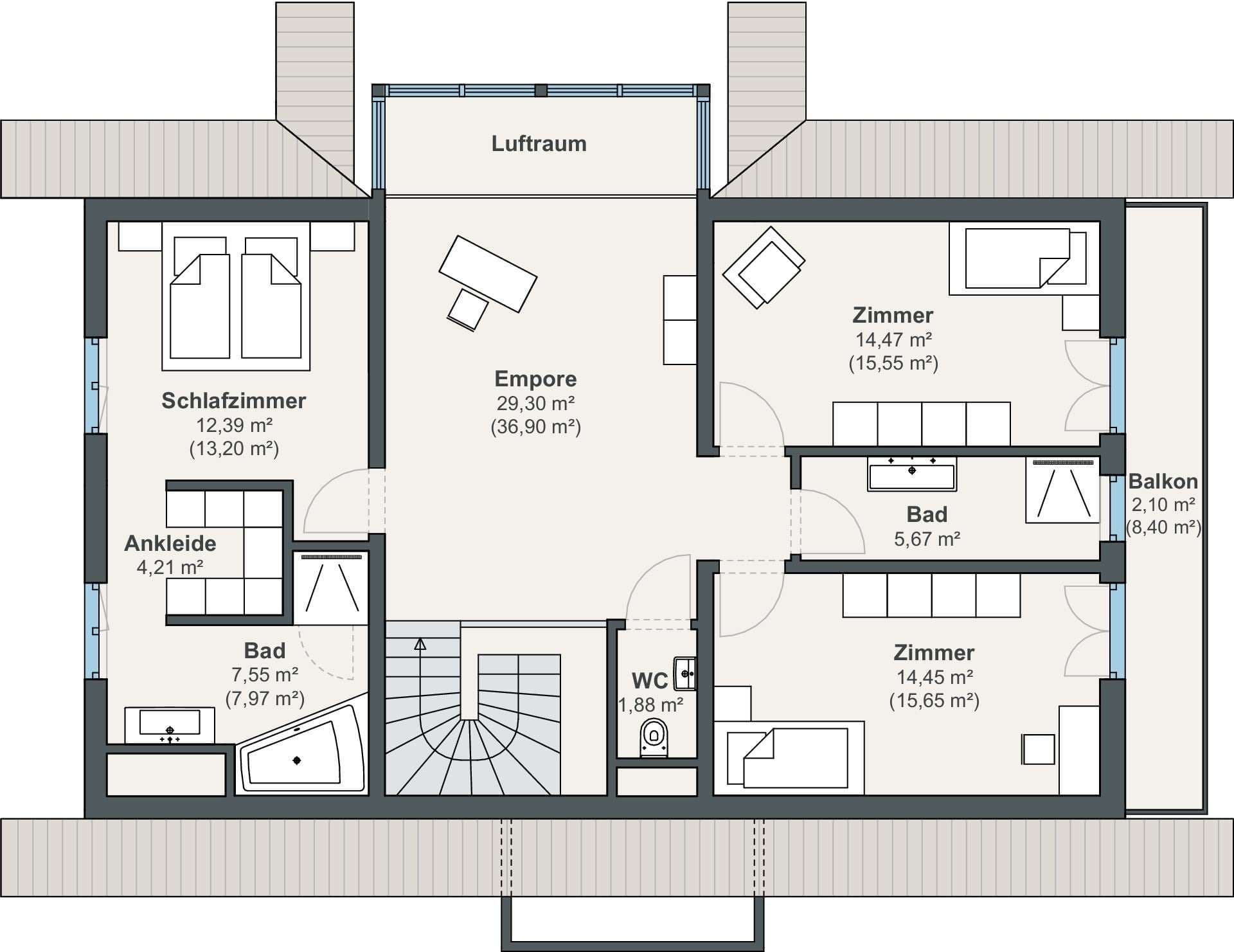
no description
Aus Liebe zum Holz Grundriss (DG)

Kataloge

WeberHaus: OPTION
WeberHaus

WeberHaus: OPTION


WeberHaus: Objektbau Katalog
WeberHaus

WeberHaus: Objektbau Katalog


WeberHaus: Hauskatalog
WeberHaus

WeberHaus: Hauskatalog


House and TreeParksHouse and PinMusterhausHouse on HandAnbieter