1. AnbieterArrow Icon
  2. WeberHausArrow Icon
  3. Auch beim zweiten Mal wieder ein WeberHaus
Slide 1
Slide 2
Slide 3
Slide 4
Slide 5
Logo WeberHaus
WeberHausAuch beim zweiten Mal wieder ein WeberHaus
homeKlassische Familienhäuser
livingArea156 m²
energyStandardEffizienzhaus 40 Plus
Preis anfragen
Katalog bestellen

Auch beim zweiten Mal wieder ein WeberHaus

Der Bauherr kannte die Qualität und Ausführung schon sehr gut, denn auch sein erstes Haus kam aus Rheinau-Linx. Überzeugt von Produkt und Service stand für ihn außer Frage, auch sein zweites Bauvorhaben von WeberHaus durchführen zu lassen. Entstanden ist ein Haus mit schickem Satteldach, energieeffizienter Solaranlage und der smarten WeberLogic-Haussteuerung. So komfortabel genießt das Paar zufrieden den schmalen aber smarten Grundriss, der mit rund 155 Quadratmetern ausreichend Platz zur eigenen Selbstverwirklichung bietet.

Hausdaten

Hausart Icon
HausartEinfamilienhaus
Bauweise Icon
BauweiseHolz-Tafelbau
Anzahl Räume Icon
Anzahl Räume7
Baustil Icon
BaustilKlassische Familienhäuser
Fassade Icon
FassadePutz
Außenmaße Icon
Außenmaße12.47 m x 7.47 m
Wohnfläche Icon
Wohnfläche156.15 m²
Dachform Icon
DachformSattel-/Giebeldach
Etagen Icon
Etagen2
Energiestandard Icon
EnergiestandardEffizienzhaus 40 Plus
Immobilientyp Icon
ImmobilientypKundenhaus
Dachneigung Icon
Dachneigung32°
Kniestock Icon
Kniestock1.7 m
Mittlerer U-Wert Icon
Mittlerer U-Wert0.11 W/m²K
Hauseigenschaften Icon
HauseigenschaftenTerasse
Hausdämmstoff Icon
HausdämmstoffMineralfaser (Glaswolle, Steinwolle)
Heizungsart Icon
HeizungsartLüftungsheizung
Pfeil nach unten linksWir schaffen Platz für Ihre Träume

Grundriss

no description
Auch beim zweiten Mal wieder ein WeberHaus Grundriss (EG)Wohnfläche EG: 79,44 m²
no description
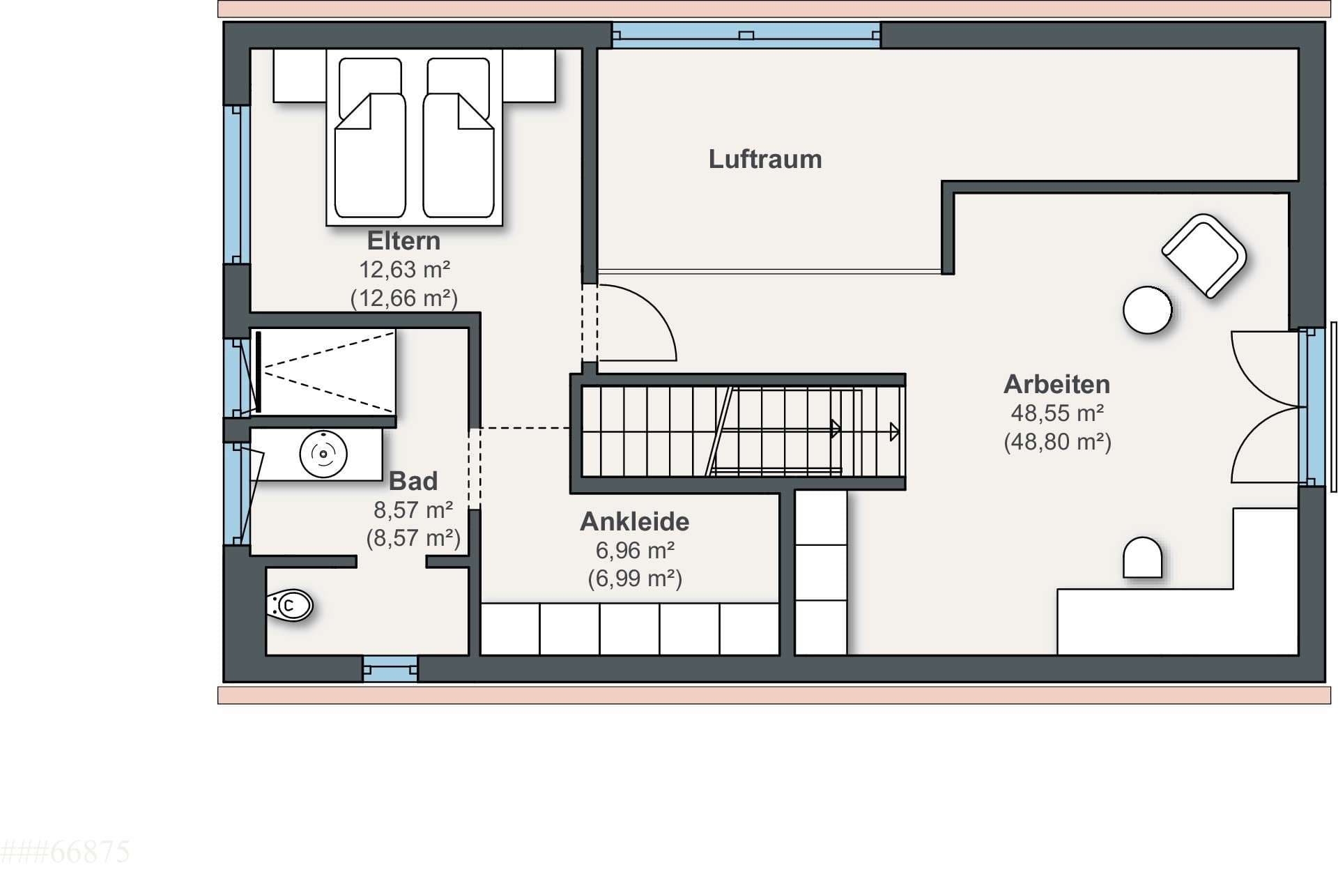
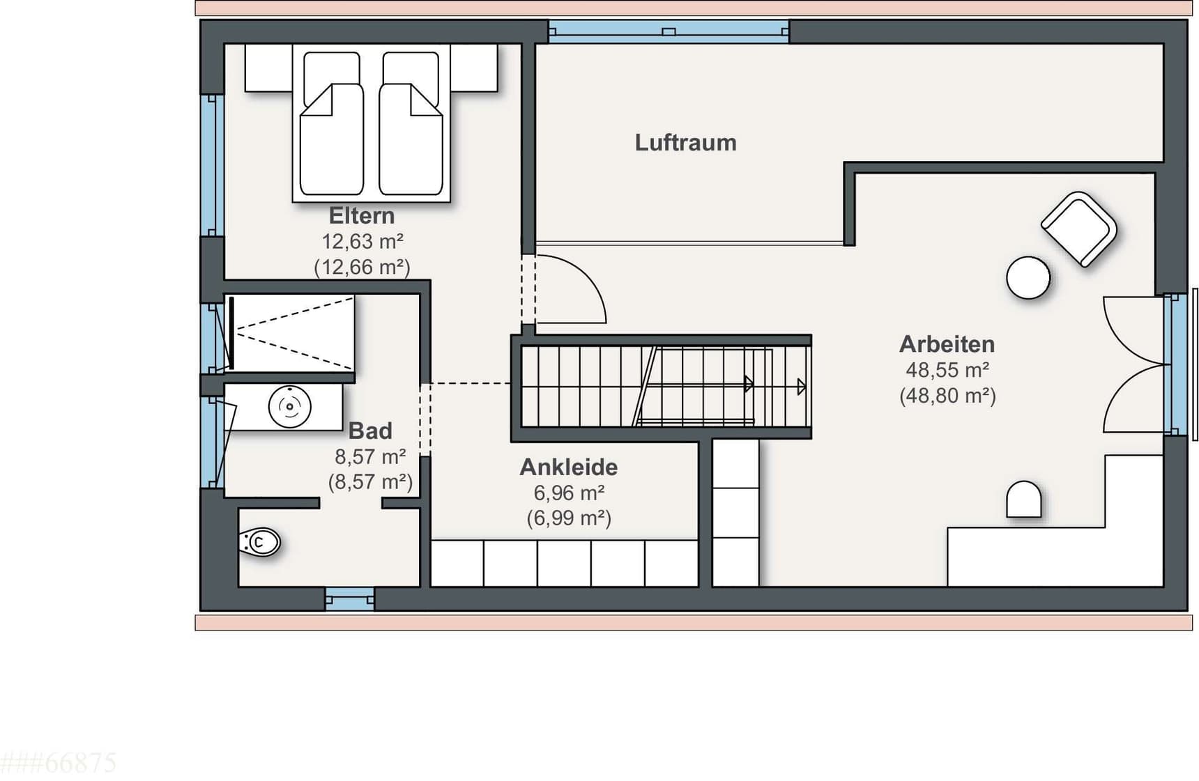
Auch beim zweiten Mal wieder ein WeberHaus Grundriss (DG)

Kataloge

WeberHaus: OPTION
WeberHaus

WeberHaus: OPTION


WeberHaus: Objektbau Katalog
WeberHaus

WeberHaus: Objektbau Katalog


WeberHaus: Hauskatalog
WeberHaus

WeberHaus: Hauskatalog


House and TreeParksHouse and PinMusterhausHouse on HandAnbieter