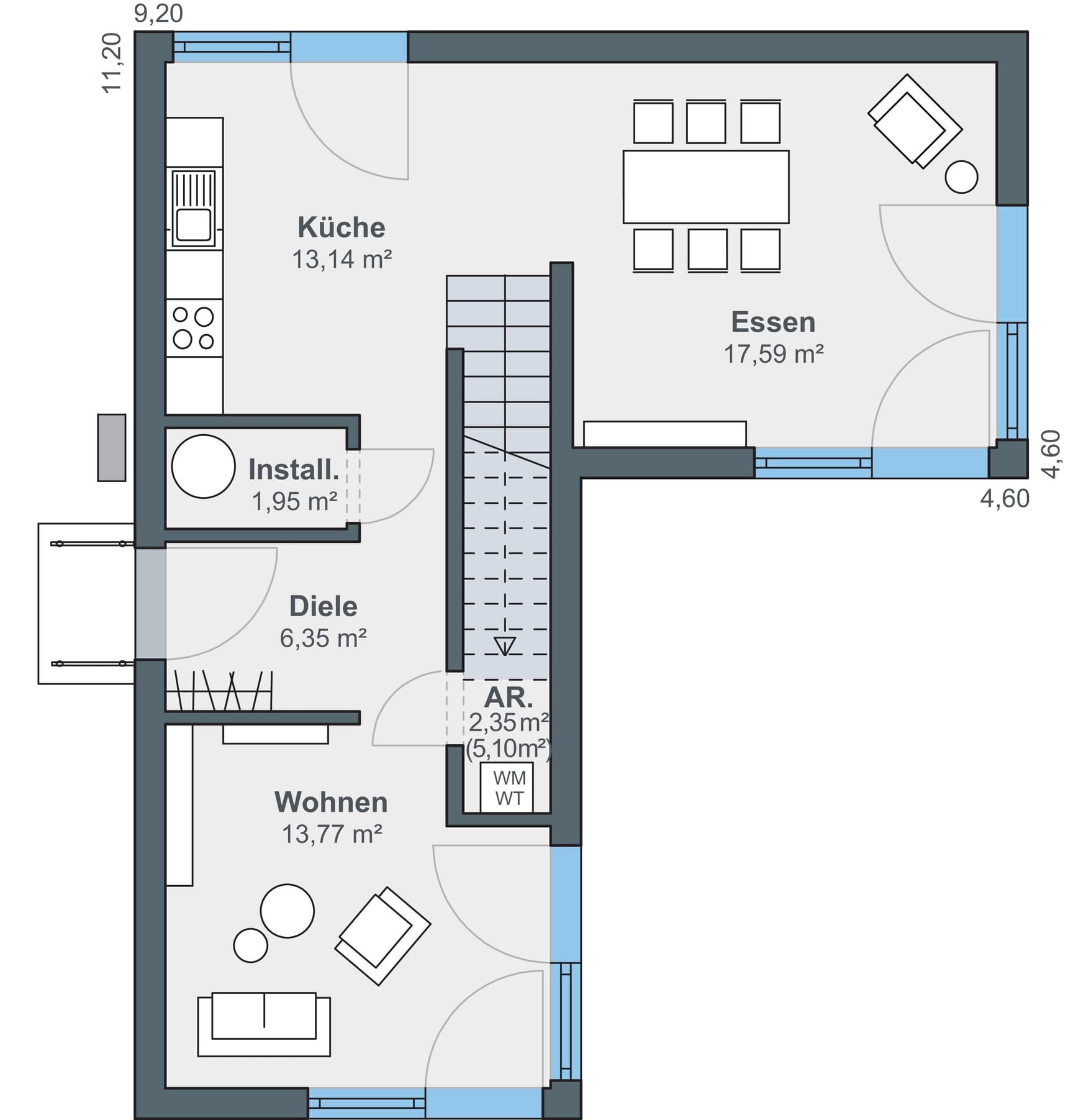
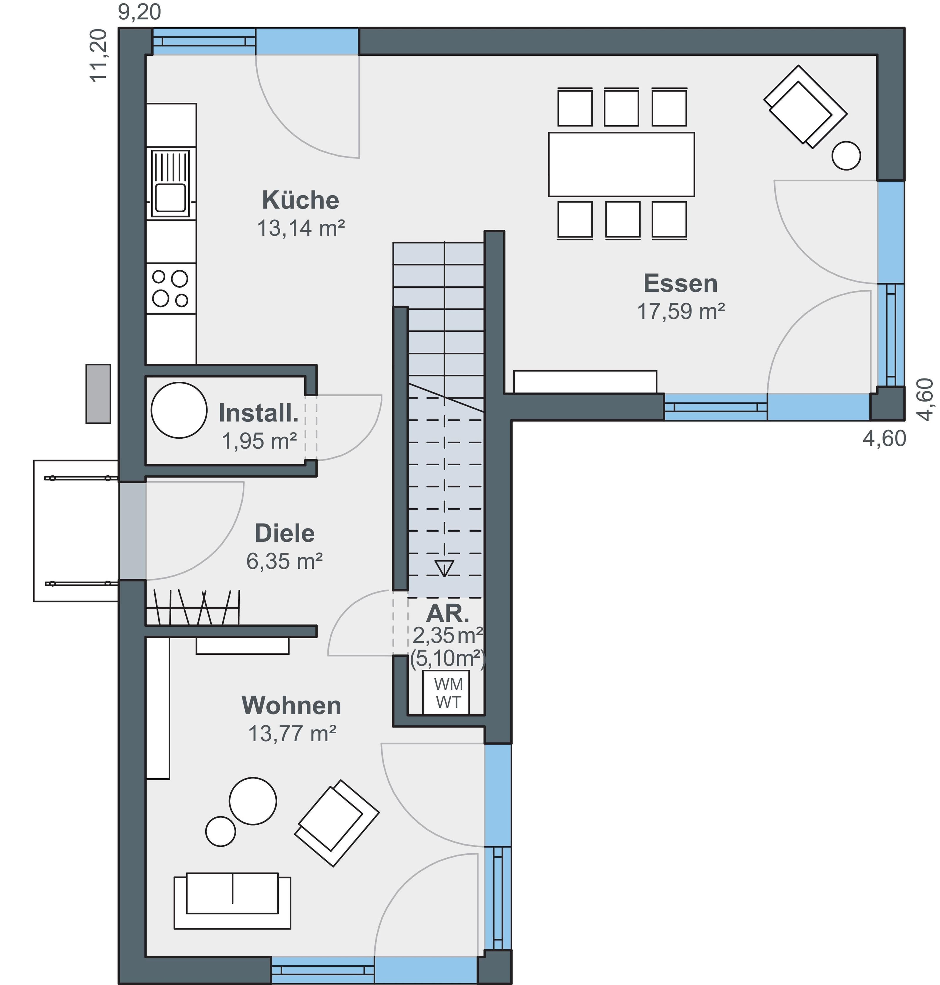
Dieser Entwurf aus der Baureihe OPTION stellt eine zweigeschossige Variante mit einem praktischen Anbaumodul vor, das flexibel neben dem Essbereich oder wahlweise neben der Küche positioniert werden kann. Wie alle Häuser dieser Serie überzeugt auch dieses Modell durch seine klare Formensprache und minimalistische Architektur, die sich auf das Wesentliche beschränkt. Die elegante Holzfassade verleiht dem Haus eine warme und ruhige Ausstrahlung, während die großen Fenster lichtdurchflutete Räume schaffen. Das zweigeschossige Haus mit Anbaumodul bietet ein durchdachtes Raumkonzept, ideal für Singles oder Paare, mit einem großzügigen Schlafzimmer und einem separaten Home-Office. Der funktionale Grundriss und das klare Design sorgen für eine harmonische Atmosphäre, die auf Komfort und moderne Eleganz ausgerichtet ist – ohne unnötigen Schnickschnack.
Aktionspreis: 289.500,-€ (Preis-Basis ist die Ausbaustufe “Bad komplett” inklusive Bodenplatte)
Preisstand: 01.05.2025

