1. AnbieterArrow Icon
  2. TALBAU-Haus GmbHArrow Icon
  3. e.167 Walmdachvilla
Slide 1
Slide 2
no description
TALBAU-Haus GmbHe.167 Walmdachvilla
homeStadtvillen
livingArea162 m²
Preis anfragen
Katalog bestellen

e.167 Walmdachvilla

Stadtvilla e.167

Die außergewöhnliche Kubatur der Walmdachvilla sticht direkt ins Auge. Besonders markant ist hierbei das aufgesetzte, kleinere Dachgeschoss. Die Grundform erinnert so an den umgedrehten Buchstaben „T“.

Bewohner betreten die Villa über einen abgetrennten Hauseingangsbereich, den sogenannten Windfang. Die vorhandenen Stellflächen bieten ausreichend Platz für eine Garderobe sowie Schuhschränke. Ebenfalls über den Windfang erreichbar ist die Gäste-Toilette und das Büro.

Das großzügige Erdgeschoss wurde mit den Außenmaßen 14m auf 12m geplant. Neben dem offenen Wohn-, Ess- und Kochbereich befindet sich auf der Ebene auch das Elternschlafzimmer mit separatem Badezimmer. So erfüllt das Grundrisskonzept auch die Anforderungen des ebenerdigen Wohnens.

Eine weitere Besonderheit ist die Anordnung der halbgewendelten Innentreppe. Diese wurde zentral im Grundriss angeordnet. Der so entstehende Platz unter der Treppe wird als kleiner Abstellraum für Staubsauger und Putzmittel genutzt. 

Der offene Wohnbereich wird an schönen Tagen um die angrenzende Sonnenterrasse erweitert. Neben dem Wohnen ist auch das Arbeiten von Zuhause aus möglich. Hierfür wurde ein separates Arbeitszimmer eingeplant, welches nach Bedarf auch für die Übernachtung von Gästen umfunktioniert werden kann.

Da die Walmdachvilla auf Bodenplatte konzipiert wurde, befindet sich der Technik- und Hauswirtschaftsraum ebenfalls auf der ebenerdigen Wohnetage. Natürlich kann der Entwurf auch mit Keller realisiert werden. Hierbei würde der kleine Abstellraum unter der Treppe entfallen und der Kellerabgang würde sich an dieser Stelle befinden. An die Stelle des Hauswirtschafts- und Technikraums kann das Elternbadezimmer geplant werden. Das bisherige Badezimmer würde sich gut als Ankleidezimmer nutzen lassen.

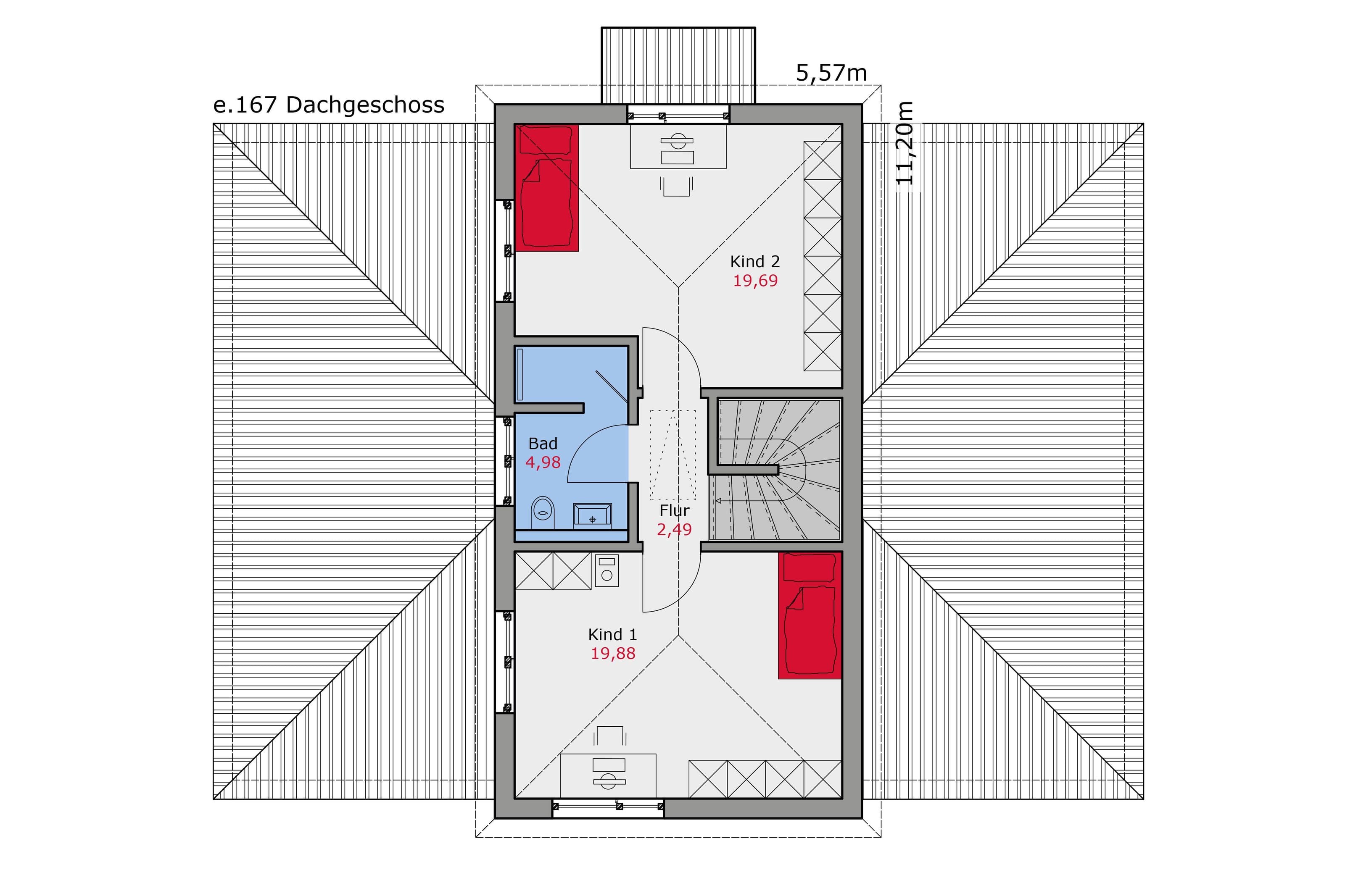
Im Dachgeschoss befindet sich das Reich der Kinder. Die nahezu gleichgroßen Kinderzimmer liegen rechter und linker Hand des gemeinsamen Flures. In der Mitte befindet sich ein separates Kinderbadezimmer mit Waschbecken, WC und bodenebener Regendusche.

Natürlich gilt auch für den Grundriss des Dachgeschosses, dass dieser nach belieben angepasst werden kann. Möglich wäre es auch anstatt der zwei Kinderzimmer, vier Kinderzimmer zu planen und schon würde sich der Grundriss auch für eine sechsköpfige Familie eignen.

 

Hausdaten

Hausart Icon
HausartEinfamilienhaus
Bauweise Icon
BauweiseHolz-Tafelbau
Anzahl Räume Icon
Anzahl Räume6
Baustil Icon
BaustilStadtvillen
Außenmaße Icon
Außenmaße13.97 m x 10 m
Wohnfläche Icon
Wohnfläche162 m²
Dachform Icon
DachformWalm-/Zeltdach
Etagen Icon
Etagen2
Immobilientyp Icon
ImmobilientypPlanungsidee
Hausdämmstoff Icon
HausdämmstoffHolzfaser- und Zellulosedämmstoffe
Pfeil nach unten linksWir schaffen Platz für Ihre Träume

Grundriss

e.167-erdgeschoss.jpg
e.167 Walmdachvilla Grundriss (EG)Wohnfläche EG: 116 m²
e.167-dachgeschoss.jpg
e.167 Walmdachvilla Grundriss (DG)Wohnfläche DG: 47 m²

Kataloge

TALBAU-Haus: Prospekt
TALBAU-Haus GmbH

TALBAU-Haus: Prospekt


TALBAU-Haus: Hauskatalog
TALBAU-Haus GmbH

TALBAU-Haus: Hauskatalog


House and TreeParksHouse and PinMusterhausHouse on HandAnbieter