1. AnbieterArrow Icon
  2. TALBAU-Haus GmbHArrow Icon
  3. e.165 Stadtvilla mit Balkon
Slide 1
Slide 2
no description
TALBAU-Haus GmbHe.165 Stadtvilla mit Balkon
homeStadtvillen
livingArea173 m²
Preis anfragen
Katalog bestellen

e.165 Stadtvilla mit Balkon

Stadtvilla e.165

Die Erscheinung des fast quadratischen Hauskörpers wird durch das Walmdach zu einem harmonischen Gesamtbild abgerundet. Die einfachen Fassadenrücksprünge im Erdgeschoss schaffen einen witterungsgeschützten Eingangsbereich sowie eine überdachte Freisitzfläche auf der Terrasse.

Der Dielenbereich ist mit ausreichend Stellfläche geplant, so dass eine Garderobe sowie Schuhschränke einfach gestellt werden können. Nahtlos geht es in die offene Küche über. Kochen und Essen wurde in einer Flucht mit direktem Blick in den Garten angeordnet.

Die geradläufige Treppe führt vom offenen Wohnbereich direkt zu den privaten Rückzugsräumen der Familie. Linker Hand der Treppe befindet sich das gemütliche Wohnzimmer.

In der ersten Etage wurde ein zusätzliches Zimmer geplant, welches flexibel als Arbeits- sowie als Gästezimmer genutzt werden kann. Das kleine Dusch-Badezimmer mit ebenerdiger Dusche komplettiert den Grundriss.

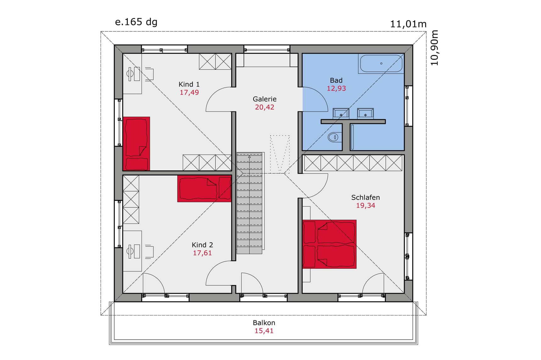
Die Anordnung der Schlafräume im Obergeschoss erinnert unser Musterhaus in Fellbach. Hierbei liegen auf einer Seite die gleichgroßen Kinderzimmer. Auf der gegenüberliegenden Flurseite befindet sich das Elternschlafzimmer sowie das gemeinsame Familienbadezimmer mit praktischer T-Wand Konstruktion. 

Eine Badezimmerplanung mit T-Wand ermöglicht, dass sichtgeschützt Nischen entstehen. So versteckt sich zum Beispiel auf einer Seite die Toilette. Die andere Seite wird gerne als bodenebene Dusche ausgeführt. An der Front findet sich Platz um zwei Waschbecken zu montieren und auch eine freistehende Badewanne kann so realisiert werden.

Auf Wunsch kann das Hauptschlafzimmer natürlich auch mit einer Ankleide konzipiert werden. Das Ankleidezimmer als Verbindungsraum zwischen Bade- und Schlafzimmer ist eine weitere gern genutzte Planungsoption.

Der knapp 15 qm große Balkon ist über den gemeinsamen Flur sowie über das Hauptschlafzimmer und ein Kinderzimmer zu betreten.

Die Wohnfläche der Stadtvilla lässt sich ohne Abstriche genießen, da das Obergeschoss ohne Dachschrägen bewohnbar ist.

Die Haustechnik sowie Waschmaschine und Trockner finden ihren Platz im geräumigen Keller des Einfamilienhauses. Neben dem großzügigen Technikraum gibt es noch einen weiteren Kellerraum sowie einen 40 qm großen Hobbyraum zur freien Entfaltung.

Hausdaten

Hausart Icon
HausartEinfamilienhaus
Bauweise Icon
BauweiseHolz-Tafelbau
Anzahl Räume Icon
Anzahl Räume6.5
Baustil Icon
BaustilStadtvillen
Außenmaße Icon
Außenmaße11.01 m x 10.9 m
Wohnfläche Icon
Wohnfläche173 m²
Dachform Icon
DachformWalm-/Zeltdach
Etagen Icon
Etagen2
Immobilientyp Icon
ImmobilientypPlanungsidee
Hausdämmstoff Icon
HausdämmstoffHolzfaser- und Zellulosedämmstoffe
Pfeil nach unten linksWir schaffen Platz für Ihre Träume

Grundriss

e.165-untergeschoss.jpg
e.165 Stadtvilla mit Balkon Grundriss (Keller)Wohnfläche KG: 90 m²
e.165-erdgeschoss.jpg
e.165 Stadtvilla mit Balkon Grundriss (EG)Wohnfläche EG: 87 m²
e.165-dachggeschoss.jpg
e.165 Stadtvilla mit Balkon Grundriss (DG)Wohnfläche DG: 86 m²

Kataloge

TALBAU-Haus: Prospekt
TALBAU-Haus GmbH

TALBAU-Haus: Prospekt


TALBAU-Haus: Hauskatalog
TALBAU-Haus GmbH

TALBAU-Haus: Hauskatalog


House and TreeParksHouse and PinMusterhausHouse on HandAnbieter